Bénéficiez des services de nos partenaires locaux soigneusement sélectionnés
pour vous accompagner dans votre parcours d'achat immobilier

Maison ancienne spacieuse avec dépendances héry (89), à 15 min d’auxerre

— Hery 89550 —
237 000 €
230 m² / 760 m²
7 pièces
parkingjardin

Nos partenaires locaux
Maison ancienne spacieuse avec dépendances Héry (89), à 15 min d’Auxerre
Située à Héry, charmant bourg dynamique avec commerces et école, à seulement 15 minutes au nord d’Auxerre et 17 minutes de la gare de Laroche-Migennes, cette maison de caractère d’environ 230 m2 habitables offre de beaux volumes et un fort potentiel.
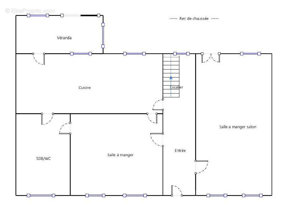
Au rez-de-chaussée, vous trouverez :


Une entrée,


Un séjour chaleureux avec insert,


Une salle à manger,


Une cuisine aménagée,


Une salle d’eau avec WC,


Une véranda lumineuse.


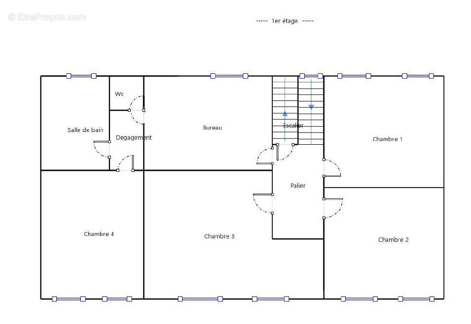
À l’étage :


Un palier desservant 4 chambres,


Un bureau,


Une salle de bains,


Un WC indépendant.


Au 2e étage, un vaste grenier aménageable d’environ 106 m2 au sol offre de multiples possibilités d’aménagement.
En complément, un second bâtiment d’environ 80 m2 comprenant :


Deux garages avec portes motorisées,


Un atelier,


Une cave,


Un grenier sur l’ensemble.


Le tout sur un terrain arboré, sans vis-à-vis, avec un puits.
Une maison idéale pour une famille, un projet de gîte ou une activité professionnelle à domicile. À découvrir sans tarder !
Voir plus

Référence: 2115
Honoraires à la charge du vendeur.
DPE
A
B
C
D
E
F
G
GES
A
B
C
D
E
F
G

Prêt immobilier

Vous souhaitez connaître votre capacité d’emprunt et trouver le meilleur crédit immobilier ?
Réaliser une simulation gratuite

Maison à HERY
Maison à HERY
Maison à HERY
Maison à HERY
Maison à HERY
Maison à HERY
Maison à HERY
Maison à HERY
Maison à HERY
Maison à HERY
Maison à HERY
Maison à HERY
Maison à HERY
Maison à HERY
Maison à HERY
Maison à HERY
Maison à HERY
Maison à HERY
Maison à HERY
Maison à HERY
Ce site est protégé par reCAPTCHA la Politique de confidentialité et les Conditions d’utilisation de Google s’appliquent.
Obtenir un prêt immobilier au meilleur taux ?

En poursuivant votre navigation sans modifier vos paramètres, vous acceptez l'utilisation de cookies susceptibles de réaliser des statistiques de visite. Cliquez ici pour plus d'informations