Bénéficiez des services de nos partenaires locaux soigneusement sélectionnés
pour vous accompagner dans votre parcours d'achat immobilier

Voir tous les partenaires locaux

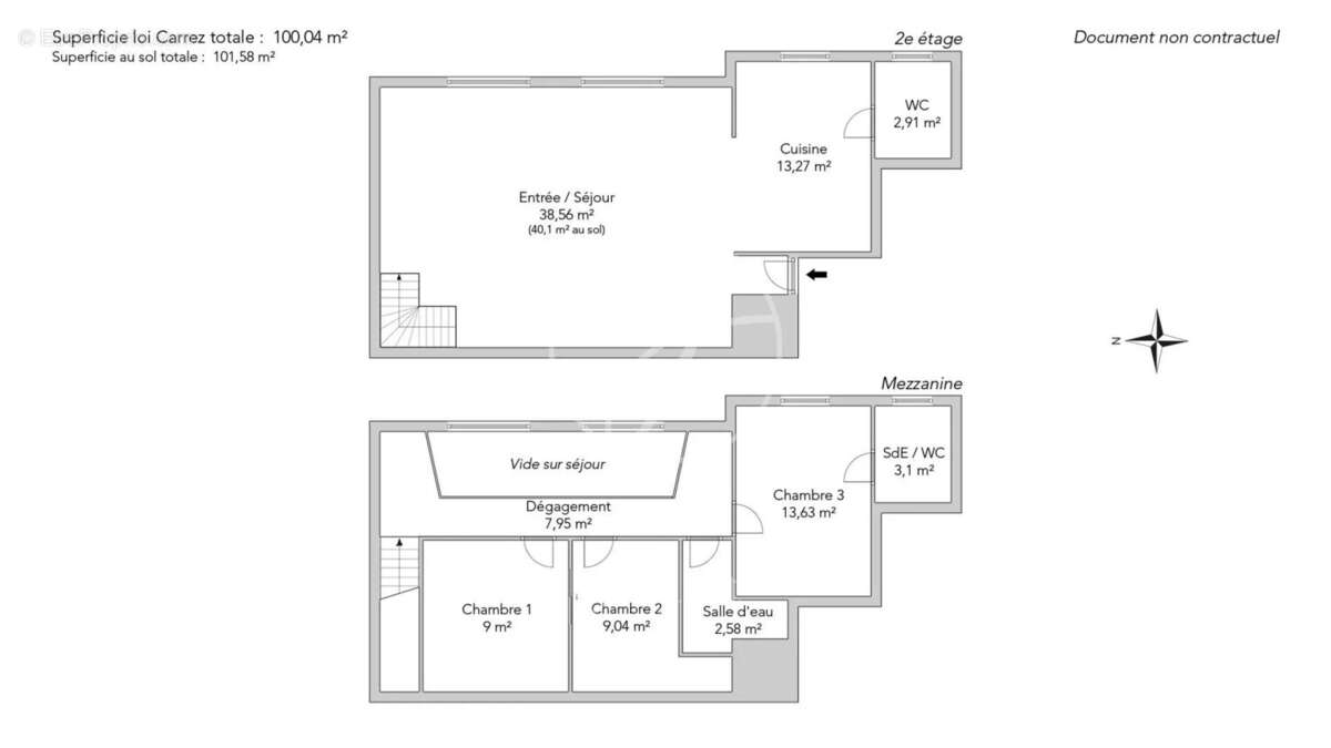
Paris 16e - jasmin - atelier à vendre - 5 pièces - 100,04m² carrez - 3 chambres.

— Paris-16e 75016 —
1 350 000 €
100 m²
5 pièces
ascenseur

Nos partenaires locaux
Idéalement situé dans le quartier Jasmin, au sein d’un immeuble remarquable des années 1930 se niche cet atelier d'artiste. Avec son séjour cathédral et une hauteur sous plafond impressionnante de 6 mètres.
Ce bien rare de 100,04m² loi Carrez, se compose d’une entrée, d’un espace de réception de 45 m² baigné de lumière, et d’une grande cuisine dînatoire parfaitement équipée.
A un second niveau, trois chambres complétées par deux salles de douche avec toilettes. Une buanderie fonctionnelle vient parfaire cet agencement pensé pour le quotidien.
Une cave complète ce bien.
Voir plus

Référence: 5640JASPEI
Barème des honoraires
DPE
A
B
C
D
E
F
G
GES
A
B
C
D
E
F
G

Prêt immobilier

Vous souhaitez connaître votre capacité d’emprunt et trouver le meilleur crédit immobilier ?
Réaliser une simulation gratuite

Appartement à PARIS-16E
Appartement à PARIS-16E
Appartement à PARIS-16E
Appartement à PARIS-16E
Appartement à PARIS-16E
Appartement à PARIS-16E
Appartement à PARIS-16E
Appartement à PARIS-16E
Appartement à PARIS-16E
Appartement à PARIS-16E
Appartement à PARIS-16E
Appartement à PARIS-16E
Appartement à PARIS-16E
Appartement à PARIS-16E
Appartement à PARIS-16E
Appartement à PARIS-16E
Appartement à PARIS-16E
Ce site est protégé par reCAPTCHA la Politique de confidentialité et les Conditions d’utilisation de Google s’appliquent.
Obtenir un prêt immobilier au meilleur taux ?

En poursuivant votre navigation sans modifier vos paramètres, vous acceptez l'utilisation de cookies susceptibles de réaliser des statistiques de visite. Cliquez ici pour plus d'informations