Pas de parking à Pageas pour le moment. Découvrez dès maintenant les parkings dans le département Haute-Vienne.

Exclusivité - nice - appartement d'angle et traversant de 3 pièces avec terrasse de 30 m² dans résidence récente..

— Nice 06200 —
310 000 €
63 m²
3 pièces
parkingbalcon/terrasseascenseuraccès handicapé

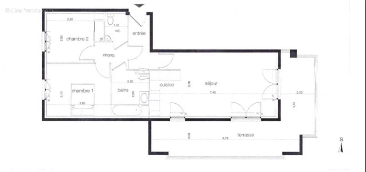
EXCLUSIVITÉ - NICE - Situé dans le secteur Spagnol nous vous proposons à la vente cet agréable appartement d'angle et traversant d'une surface de 64 m².

Situé au 2ème étage sur 5 avec ascenseur, dans une résidence récente (2013), l'appartement est composé comme suit : entrée, séjour-cuisine ouvert sur une grande terrasse d'angle de 30 m², 2 chambres, salle de bain et WC indépendant. Un garage en supplément pour 30 000€.

L'appartement est au calme tout en restant à proximité immédiate des grands axes, de l'autoroute et de l'aéroport. Les commerces se trouvent à quelques minutes à pieds ainsi que les transports en communs.

Quote-part des charges: 234€ /mois inclus chauffage et eau chaude. Nombre de lots principaux: 24 Pas de procédure en cours à notre connaissance.

Les informations sur les risques auxquels ce bien est exposé sont disponibles sur le site Géorisques: georisques.gouv.fr
Voir plus

Référence: ARL-1032-AN
Barème des honoraires
DPE
A
B
C
D
E
F
G
GES
A
B
C
D
E
F
G

Prêt immobilier

Vous souhaitez connaître votre capacité d’emprunt et trouver le meilleur crédit immobilier ?
Réaliser une simulation gratuite

Appartement à NICE
Appartement à NICE
Appartement à NICE
Appartement à NICE
Appartement à NICE
Appartement à NICE
Appartement à NICE
Appartement à NICE
Appartement à NICE
Appartement à NICE
Appartement à NICE
Appartement à NICE
Appartement à NICE
Appartement à NICE
Ce site est protégé par reCAPTCHA la Politique de confidentialité et les Conditions d’utilisation de Google s’appliquent.
Obtenir un prêt immobilier au meilleur taux ?

En poursuivant votre navigation sans modifier vos paramètres, vous acceptez l'utilisation de cookies susceptibles de réaliser des statistiques de visite. Cliquez ici pour plus d'informations