Bénéficiez des services de nos partenaires locaux soigneusement sélectionnés
pour vous accompagner dans votre parcours d'achat immobilier

A vendre - exclusivite - brest studio recouvrance

— Brest 29200 —
59 980 €
20 m²
1 pièce

Nos partenaires locaux
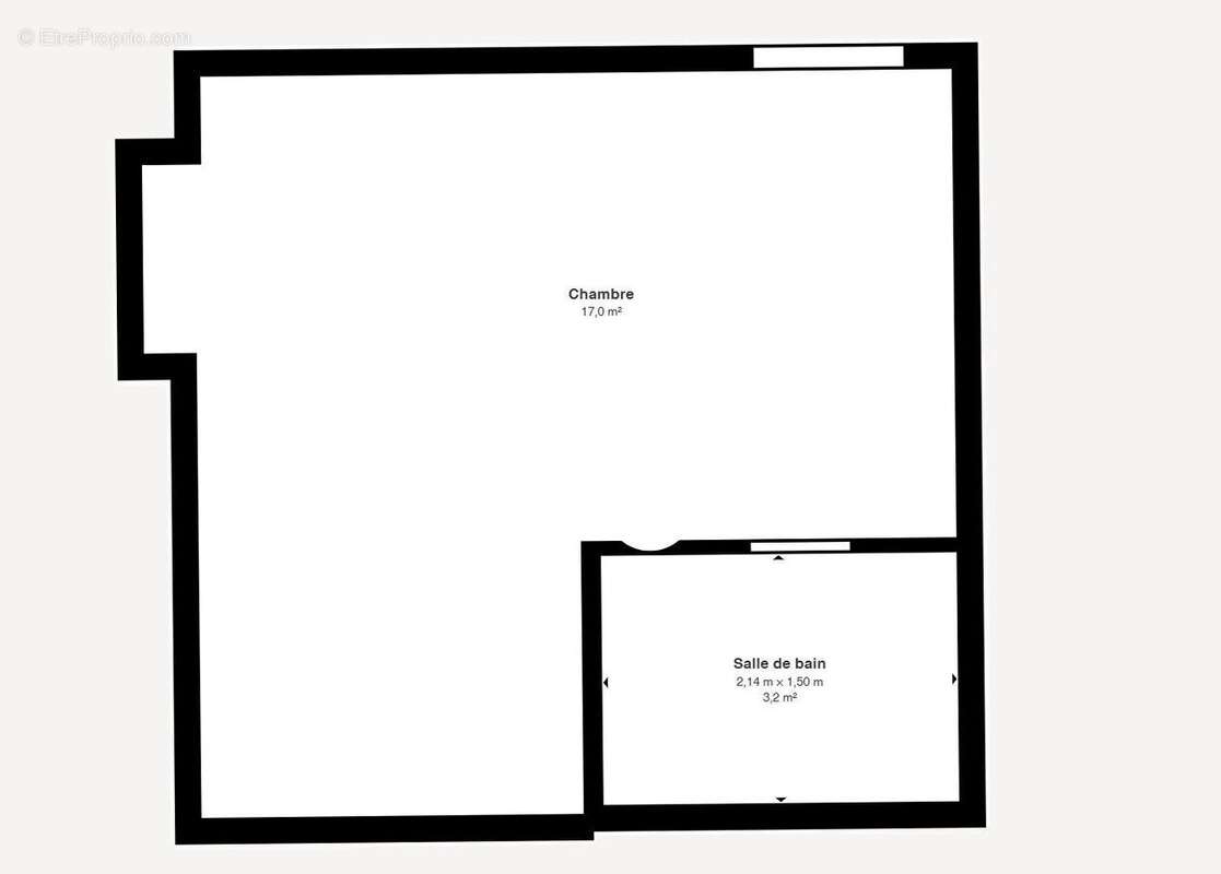
EXCLUSIVITÉ - BREST - RECOUVRANCE. Réf : PZ00280-ZR A proximité de l'arrêt de tramway Recouvrance à Brest, découvrez ce studio dans un petit immeuble. Il se compose d'une cuisine aménagée, d'une salle d'eau avec de WC. Le bien est équipé d'un chauffage individuel électrique, de fenêtres en PVC double vitrage. Une cave complète l'appartement. Les résidents bénéficient également d'un jardin commun, idéal pour profiter des beaux jours. L'immeuble, sécurisé par digicode et interphone, comprend trois étages. L'appartement nécessite des travaux de rafraîchissement, ce qui en fait une belle opportunité pour un investisseur. L'appartement se trouve en bord de mer. Tous les types d'écoles sont implantés à moins de 10 minutes à pied, tout comme trois structures d'accueil pour les tout-petits. Niveau transports, on trouve 10 lignes de bus ainsi que la ligne de tramway A (Recouvrance) à proximité. L'aéroport Brest-Bretagne est accessible à 10 km. Vous trouverez deux bassins de natation et un conservatoire à quelques minutes du logement. Il y a également des restaurants, des commerces, deux supermarchés, des boulangeries, des supérettes et deux poissonneries. Énergie, consommation ou émissions de gaz à effet de serre, voilà des facteurs importants à avoir en tête lorsque l'on songe à acheter. Cet appartement est classé E en ce qui concerne les performances énergétiques (classe énergie) (382 kWh/m²/an) et B pour ce qui est de la classe climat (de l'ordre de 12 Kg CO2/m²/an). Le montant des dépenses annuelles d'énergie pour un usage standard est estimé entre 650 euros et 930 euros. Les informations sur les risques auxquels ce bien est exposé sont disponibles sur le site Géorisques : www.georisques.gouv.fr. Ce bien est disponible en visite virtuelle. Contactez notre agence immobilière Barraine IMMO - Plouzané pour toute information ou demande de visite. (9.45 % honoraires TTC à la charge de l'acquéreur.) Copropriété de 17 lots - dont 17 lots habitation. (Pas de procédure en cours). Charges annuelles : 468 euros.
Voir plus

Référence: PZ00280-ZR
Bien en copropriété. Nombre de lots : 17. Charges de copropriété : 468 €.
Honoraires d'agence de 9.449999999999999% à la charge de l'acquéreur
Barème des honoraires
DPE
A
B
C
D
E
F
G
GES
A
B
C
D
E
F
G

Prêt immobilier

Vous souhaitez connaître votre capacité d’emprunt et trouver le meilleur crédit immobilier ?
Réaliser une simulation gratuite

Appartement à BREST
Appartement à BREST
Appartement à BREST
Appartement à BREST
Appartement à BREST
Appartement à BREST
Appartement à BREST
Appartement à BREST
Appartement à BREST
Appartement à BREST
Appartement à BREST
Appartement à BREST
Appartement à BREST
Appartement à BREST
Ce site est protégé par reCAPTCHA la Politique de confidentialité et les Conditions d’utilisation de Google s’appliquent.
Obtenir un prêt immobilier au meilleur taux ?

En poursuivant votre navigation sans modifier vos paramètres, vous acceptez l'utilisation de cookies susceptibles de réaliser des statistiques de visite. Cliquez ici pour plus d'informations