Meudon bellevue maison des années 30 modernisée

— Meudon 92190 —
1 330 000 €
6 pièces

NOUVEAUTE EN EXCLUVITE -
Sur l'une des plus belles avenues de MEUDON BELLEVUE, AU CALME, proche écoles publiques et privées (LA SOURCE), commerces et gare à pied, dans un cadre résidentiel et recherché, sur un terrain de 314m², cette maison au charme discret des années 30 a été agrandie (180m² utiles) et modernisée dans un esprit contemporain.

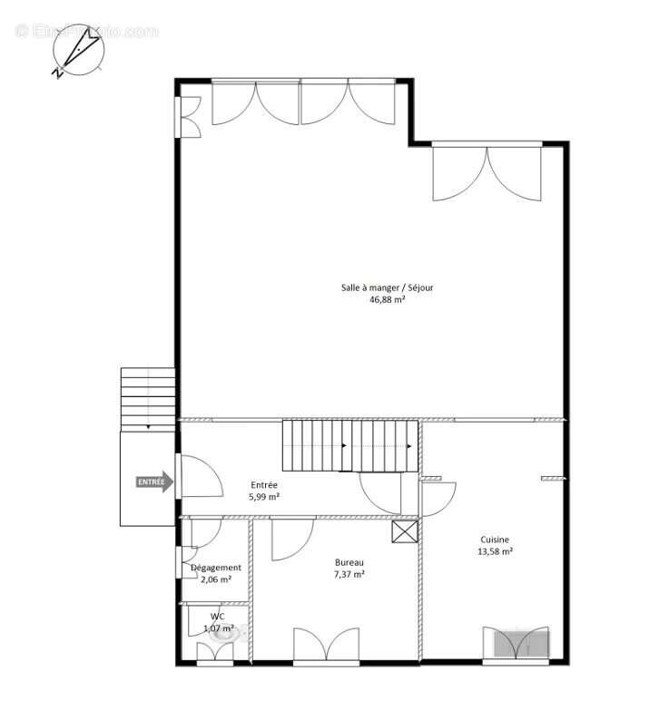
Elle vous propose en accès direct sur jardin un grand espace de vie (47m²) avec espace repas et cuisine attenante, un bureau, dégagement et toilettes.

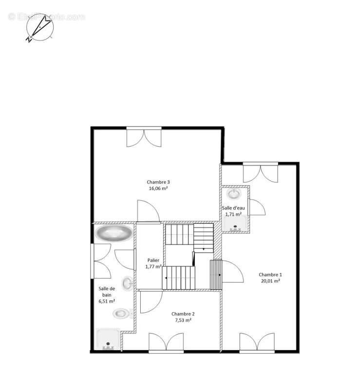
A l'étage, 3 chambres dont 2 grandes (20 et 16m²), la 3ème avec mezzanine, une avec salle d'eau, une salle de bains séparée, WC.

Un sous-sol semi-enterrée avec pièce/chambre d'appoint en accès direct sur jardin avec buanderie, cave à vin, cave. Grenier.

Une DEPENDANCE AMENAGEABLE.

AUCUN VIS A VIS / AU CALME
Stationnement sur terrain.

Emplacement extérieur pour voiture.
Chauffage GAZ
Taxe Foncière 2732€

DPE D

Honoraires d'agence 4% inclus dans le prix affiché charge acquéreurs.
Votre contact Aurore PANNETIER [Coordonnées masquées] -
UNE EXCLUSIVITE A.M.C.V. APPARTEMENTS ET MAISONS
CHAVILLE VIROFLAY

Les informations sur les risques auxquels ce bien est exposé sont disponibles sur le site Géorisques : www.georisques.gouv.fr
Voir plus

Référence: 85934566
Barème des honoraires
DPE
A
B
C
D
E
F
G

Prêt immobilier

Vous souhaitez connaître votre capacité d’emprunt et trouver le meilleur crédit immobilier ?
Réaliser une simulation gratuite

Maison à MEUDON
Maison à MEUDON
Maison à MEUDON
Maison à MEUDON
Maison à MEUDON
Maison à MEUDON
Maison à MEUDON
Maison à MEUDON
Maison à MEUDON
Maison à MEUDON
Maison à MEUDON
Maison à MEUDON
Maison à MEUDON
Maison à MEUDON
Maison à MEUDON
Maison à MEUDON
Maison à MEUDON
Ce site est protégé par reCAPTCHA la Politique de confidentialité et les Conditions d’utilisation de Google s’appliquent.
Obtenir un prêt immobilier au meilleur taux ?

En poursuivant votre navigation sans modifier vos paramètres, vous acceptez l'utilisation de cookies susceptibles de réaliser des statistiques de visite. Cliquez ici pour plus d'informations