Appartement saint felix 3 pièce(s) 68.78 m2

— Saint-Felix 74540 —
299 000 €
69 m²
3 pièces
parkingascenseur

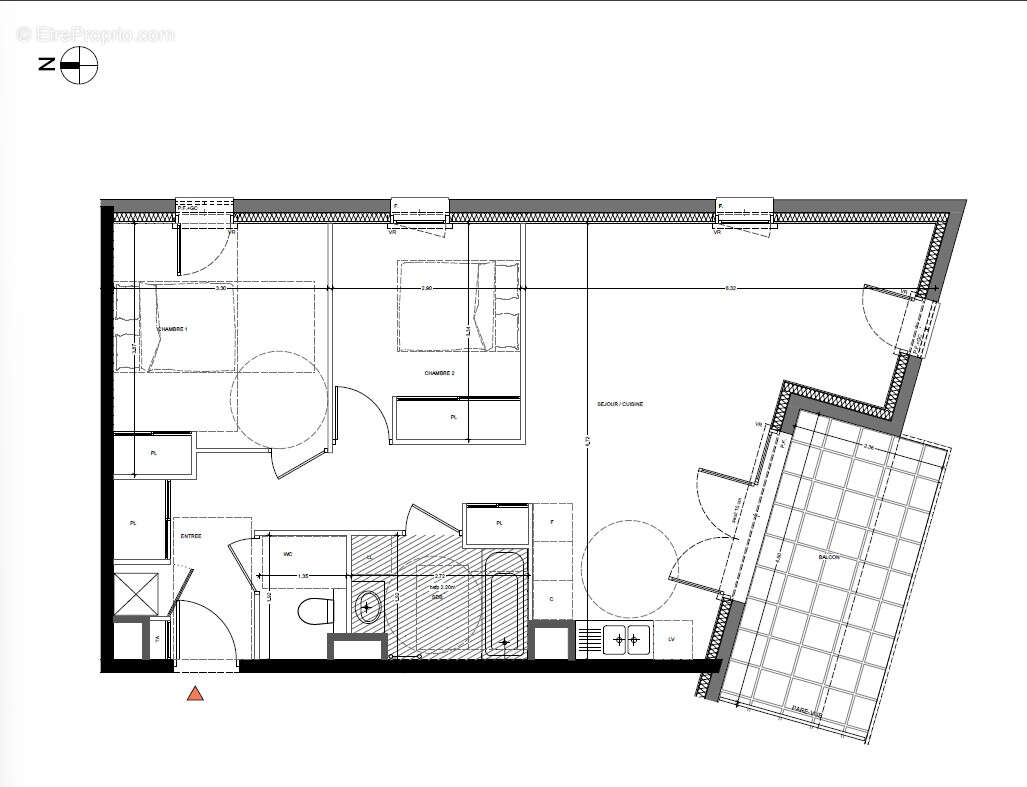
Appartement T3 - 68,78 m² - Saint-Félix (Rue du Brouillet) Au 2ème étage d'une résidence avec ascenseur, appartement de 68,78 m² comprenant : une entrée, un séjour avec cuisine ouverte donnant sur un balcon de 10,86 m² exposé sud, deux chambres, une salle de bains et des toilettes séparées. Les prestations incluent un chauffage par pompe à chaleur air/eau, un carrelage en grès cérame 60x60 cm dans la pièce de vie, un parquet contrecollé dans les chambres ainsi que des menuiseries PVC plaxé à double vitrage thermique et acoustique. Le logement bénéficie d'une bonne luminosité et d'un environnement calme, à proximité immédiate du centre ville et des commodités. Accès rapide : 15 minutes d'Annecy, 18 minutes d'Aix-les-Bains, 30 minutes de Chambéry, 45 minutes de Genève, accès autoroute à 4 minutes. Stationnement double en sus. Référence : A201 Copropriété de 28 lots ().
Voir plus

Référence: 267
Honoraires à la charge du vendeur.

Prêt immobilier

Vous souhaitez connaître votre capacité d’emprunt et trouver le meilleur crédit immobilier ?
Réaliser une simulation gratuite

Appartement à SAINT-FELIX
Appartement à SAINT-FELIX
Appartement à SAINT-FELIX
Ce site est protégé par reCAPTCHA la Politique de confidentialité et les Conditions d’utilisation de Google s’appliquent.
Obtenir un prêt immobilier au meilleur taux ?

En poursuivant votre navigation sans modifier vos paramètres, vous acceptez l'utilisation de cookies susceptibles de réaliser des statistiques de visite. Cliquez ici pour plus d'informations