Bénéficiez des services de nos partenaires locaux soigneusement sélectionnés
pour vous accompagner dans votre parcours d'achat immobilier

Commerce 125m² à paris-14e

— Paris-14e 75014 —
964 000 €
125 m²

Nos partenaires locaux
Local commercial – Avenue du Maine – Paris 14ème

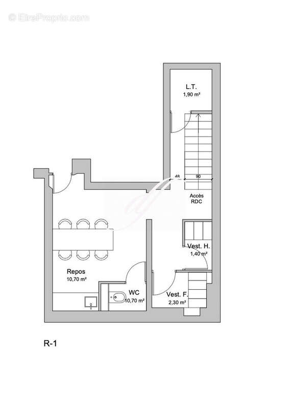
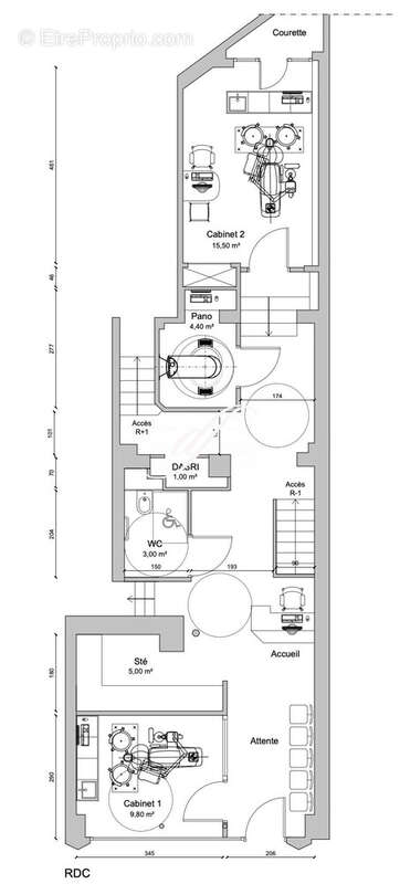
À proximité immédiate de la Mairie du 14ème, nous vous proposons à la vente les murs d'un local commercial de 125 m² (dont 122 m² Carrez) répartis sur trois niveaux.
Situé sur l'avenue du Maine, ce local bénéficie d'un environnement dynamique et recherché. Actuellement occupé par un cabinet dentaire, il dispose d'une configuration optimisée et sécurisée, offrant de nombreuses possibilités d'aménagement. Idéal pour une activité médicale, paramédicale, de bureaux ou toute autre profession libérale.

Prix de vente : 964 000 € FAI

Pour toute information complémentaire ou pour organiser une visite, contactez-moi au [Coordonnées masquées].

Honoraires inclus de 7.11% HT à la charge de l'acquéreur. Prix hors honoraires 900 000 €. DPE en cours. Les informations sur les risques auxquels ce bien est exposé sont disponibles sur le site Géorisques : georisques.gouv.fr.

Votre conseiller De ferla immobilier : Alexandre Boscher
Agent commercial (Entreprise individuelle)
Voir plus

Référence: VP468-DEFERLA
Honoraires d'agence de 7.11% à la charge de l'acquéreur
Barème des honoraires

Prêt immobilier

Vous souhaitez connaître votre capacité d’emprunt et trouver le meilleur crédit immobilier ?
Réaliser une simulation gratuite

Commerce à PARIS-14E
Commerce à PARIS-14E
Commerce à PARIS-14E
Commerce à PARIS-14E
Ce site est protégé par reCAPTCHA la Politique de confidentialité et les Conditions d’utilisation de Google s’appliquent.
Obtenir un prêt immobilier au meilleur taux ?

En poursuivant votre navigation sans modifier vos paramètres, vous acceptez l'utilisation de cookies susceptibles de réaliser des statistiques de visite. Cliquez ici pour plus d'informations