Bénéficiez des services de nos partenaires locaux soigneusement sélectionnés
pour vous accompagner dans votre parcours d'achat immobilier

Penthouse d’exception dernier étage

— Bourgoin-Jallieu 38300 —
492 000 €
112 m²
4 pièces
parkingbalcon/terrasse

Nos partenaires locaux
Penthouse d’exception Dernier étage, vues dégagées, prestations rares. Au sommet d’un immeuble contemporain répondant aux dernières normes RE2020, se déploie un appartement unique, pensé comme une véritable maison sur le toit.
Les volumes, baignés de lumière grâce à de larges baies vitrées, s’ouvrent sur une magnifiques terrasse privative qui prolonge l’espace de vie et offre une respiration unique en plein ciel.
Chaque détail a été pensé avec soin : matériaux nobles, lignes épurées, confort thermique et acoustique de dernière génération. La circulation fluide entre les pièces et la générosité des espaces créent un lieu à la fois convivial et intimiste.
L’adresse, rare et recherchée, combine calme, accessibilité et qualité de vie, à deux pas des commerces et des meilleures écoles. Un bien d’exception pour des amoureux de l’architecture contemporaine et de la vie citadine, à la recherche d’un cadre privilégié.
Caractéritiques :
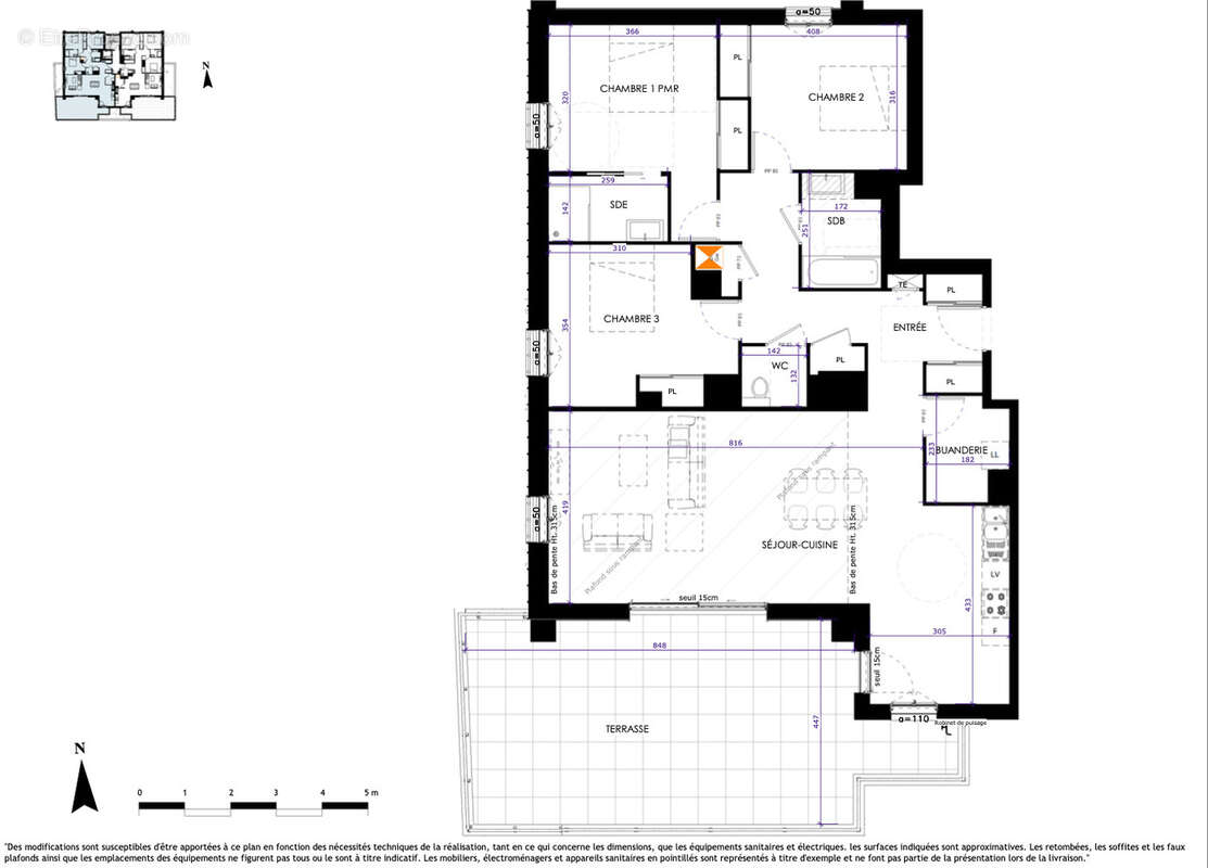
BUANDERIE 3.7 m2
CHAMBRE 1 PMR 14.3 m2
CHAMBRE 2 11.8 m2
CHAMBRE 3 12.6 m2
ENTRÉE 13.7 m2
SDB 4.0 m2
SDE 3.7 m2
SÉJOUR-CUISINE 46.2 m2
WC 1.9 m2
TOTAL
111.9 m2
TERRASSE 40.0 m2
- A noter que l’appartement bénéfice de l’accès pour les personnes à mobilité réduite (PMR).
- Deux Garages + une place de parking sécurisées sont proposés en option.
- Le bien bénéficie des FRAIS de NOTAIRE REDUITS.
Ne manquez pas cette opportunité unique - contactez-nous dès aujourd'hui pour organiser une visite et découvrir tout le potentiel qu'elle offre !
Laissez-vous surprendre par cette réalisation unique et son atmosphère élégante et contemporaine.
Notre agence reste à votre entière disposition pour toute information supplémentaire.

Contactez Landry RABATEL

[Coordonnées masquées]

ou [Coordonnées masquées]

(RSAC : 903 442 739)
Voir plus

Honoraires à la charge du vendeur.
Barème des honoraires

Prêt immobilier

Vous souhaitez connaître votre capacité d’emprunt et trouver le meilleur crédit immobilier ?
Réaliser une simulation gratuite

Appartement à BOURGOIN-JALLIEU
Appartement à BOURGOIN-JALLIEU
Appartement à BOURGOIN-JALLIEU
Appartement à BOURGOIN-JALLIEU
Appartement à BOURGOIN-JALLIEU
Appartement à BOURGOIN-JALLIEU
Ce site est protégé par reCAPTCHA la Politique de confidentialité et les Conditions d’utilisation de Google s’appliquent.
Obtenir un prêt immobilier au meilleur taux ?

En poursuivant votre navigation sans modifier vos paramètres, vous acceptez l'utilisation de cookies susceptibles de réaliser des statistiques de visite. Cliquez ici pour plus d'informations