Bénéficiez des services de nos partenaires locaux soigneusement sélectionnés
pour vous accompagner dans votre parcours d'achat immobilier

Appartement 4 pièces - viiième paris

— Paris-8e 75008 —
1 150 000 €
84 m²
4 pièces
ascenseur

Nos partenaires locaux
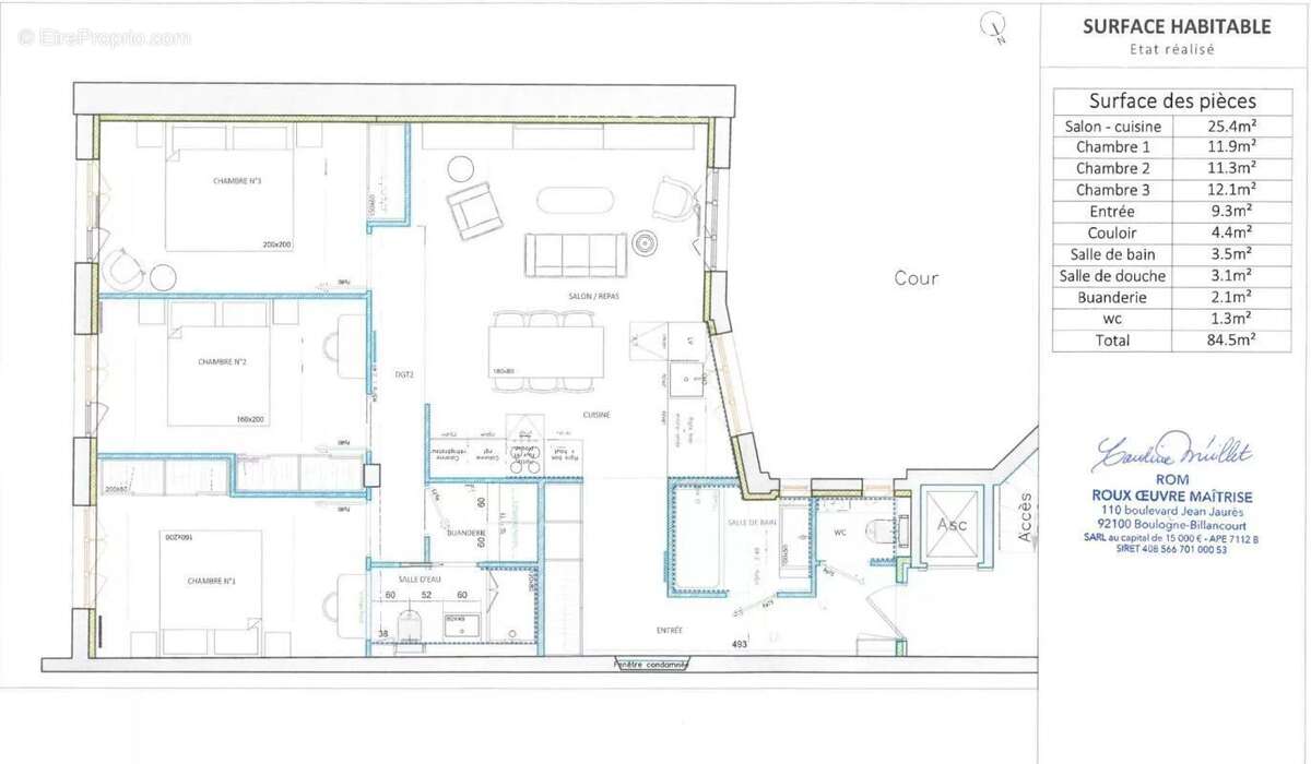
Saint-Augustin : rue Laborde, au 6 ème étage avec ascenseur d'un immeuble pierre de taille de bon standing, un appartement 4/5 pièces de 84,70 m2 loi Carrez comprenant; une entrée, un vaste séjour avec une cuisine ouverte aménagée et équipée, 3 chambres, une salle de bains avec WC, une salle d'eau et un WC séparé.
Appartement entièrement refait à neuf, au calme, lumineux, traversant (exposé Sud) et avec de très nombreux rangements.

Référence: 85957474
Honoraires d'agence de 3.6% à la charge de l'acquéreur
DPE
A
B
C
D
E
F
G
GES
A
B
C
D
E
F
G

Prêt immobilier

Vous souhaitez connaître votre capacité d’emprunt et trouver le meilleur crédit immobilier ?
Réaliser une simulation gratuite

Appartement à PARIS-8E
Appartement à PARIS-8E
Appartement à PARIS-8E
Appartement à PARIS-8E
Appartement à PARIS-8E
Appartement à PARIS-8E
Appartement à PARIS-8E
Appartement à PARIS-8E
Appartement à PARIS-8E
Ce site est protégé par reCAPTCHA la Politique de confidentialité et les Conditions d’utilisation de Google s’appliquent.
Obtenir un prêt immobilier au meilleur taux ?

En poursuivant votre navigation sans modifier vos paramètres, vous acceptez l'utilisation de cookies susceptibles de réaliser des statistiques de visite. Cliquez ici pour plus d'informations