Ref 126 : ramatuelle - club 55 - terrain avec permis - a pied de la plage

— Ramatuelle 83350 —
2 695 000 €
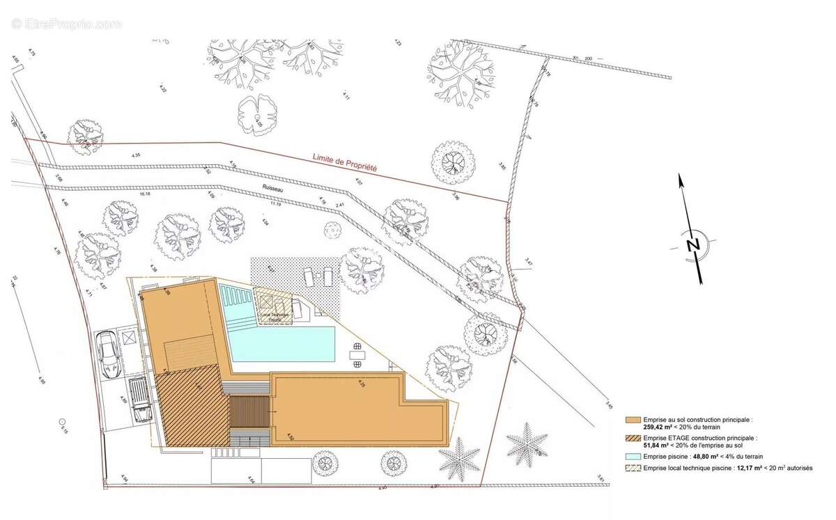
1 380 m²

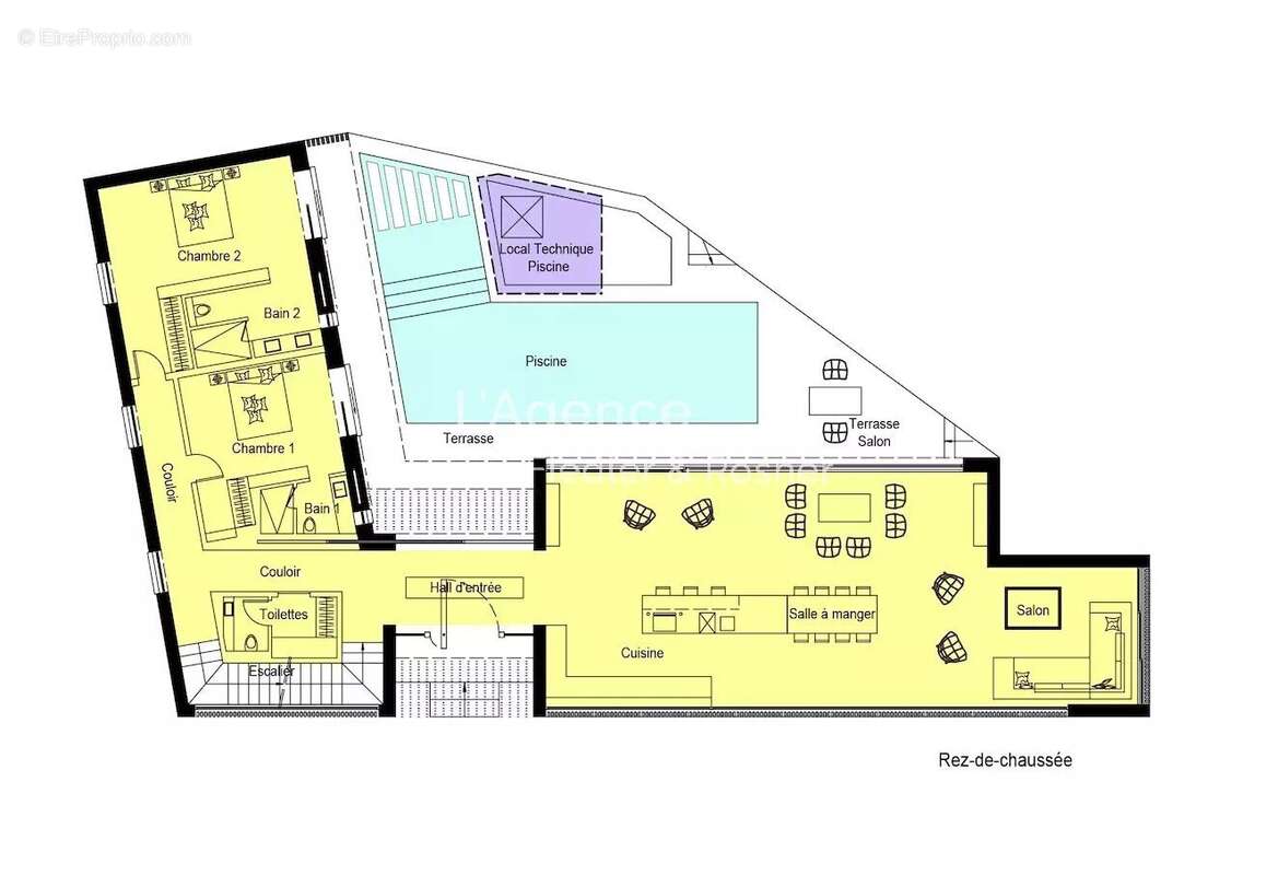
Terrain plat de 1380 m2 - Permis de construire pour une Villa de 403 m2 - 3 + 2 chambres - 5 salles de bains - Salle de sport - Piscine

Permis purgé de tous recours

Emplacement incroyable pour ce terrain plat situé dans un domaine privé à 50 mètres du Club 55

Permis obtenu pour une villa composée comme suit :

Une entrée desservant un salon, cuisine, salle-à-manger, 2 chambres, 2 salles de bains

A l'étage, la chambre de Maître avec salle de bains, 2 terrasses, aperçu mer

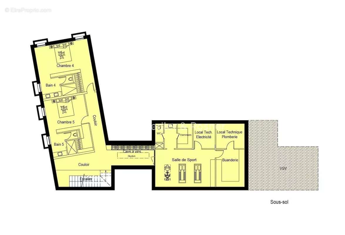
Au sous-sol avec ouvertures, 2 chambres, 2 salles de bains, cave à vins, salle de sport, buanderie, hammam

Piscine

“Les informations sur les risques auxquels ce bien est exposé sont disponibles sur le site Géorisques : www.georisques.gouv.fr”.
Voir plus

Référence: 126
Barème des honoraires

Prêt immobilier

Vous souhaitez connaître votre capacité d’emprunt et trouver le meilleur crédit immobilier ?
Réaliser une simulation gratuite

Terrain à RAMATUELLE
Terrain à RAMATUELLE
Terrain à RAMATUELLE
Terrain à RAMATUELLE
Terrain à RAMATUELLE
Terrain à RAMATUELLE
Terrain à RAMATUELLE
Terrain à RAMATUELLE
Terrain à RAMATUELLE
Terrain à RAMATUELLE
Terrain à RAMATUELLE
Ce site est protégé par reCAPTCHA la Politique de confidentialité et les Conditions d’utilisation de Google s’appliquent.
Obtenir un prêt immobilier au meilleur taux ?

En poursuivant votre navigation sans modifier vos paramètres, vous acceptez l'utilisation de cookies susceptibles de réaliser des statistiques de visite. Cliquez ici pour plus d'informations