Maison 73m² - prunelli-di-fiumorbu

— Prunelli-Di-Fiumorbo 20243 —
265 000 €
73 m² / 244 m²
3 pièces
parkingbalcon/terrassejardin

EXCLUSIVITÉ ALTA COSTA SERENA

Maison d’environ 73 m² habitables, rénovée, située en bord de route, alliant confort et praticité au quotidien.
Son emplacement est particulièrement intéressant : la mer se trouve à seulement 5 minutes en voiture, tout comme les commerces, le collège et le lycée ce qui en fait un cadre de vie adapté aussi bien aux familles qu’aux jeunes couples.

Caractéristiques :

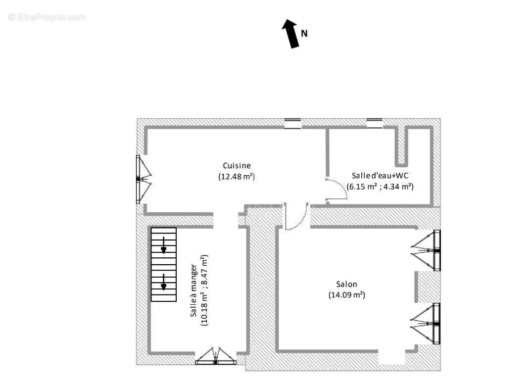
Rez-de-chaussée : Une entrée desservant une cuisine neuve installée en 2025, une salle d’eau avec WC, un salon chaleureux, ainsi qu’une chambre permettant l’accès à l’étage.

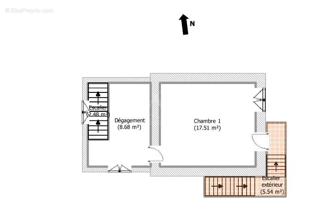
Étage : Un espace bureau et une grande chambre offrant de belles surfaces exploitables.

Extérieur : Le terrain est entièrement clos et sécurisé par un portail électrique. En 2025, des aménagements complémentaires sont venus valoriser le bien : création d’une pergola en châtaignier, ajout d’un cabanon d’environ 10 m² avec terrasse en bois, idéal pour les moments de détente ou de réception.

Cette maison représente une belle opportunité: elle combine rénovation récente, ajouts de qualité et situation géographique intéressante, à proximité immédiate de toutes les commodités et des plages.
Voir plus

Référence: 00272JLV
DPE
A
B
C
D
E
F
G
GES
A
B
C
D
E
F
G

Prêt immobilier

Vous souhaitez connaître votre capacité d’emprunt et trouver le meilleur crédit immobilier ?
Réaliser une simulation gratuite

Maison à PRUNELLI-DI-FIUMORBO
Maison à PRUNELLI-DI-FIUMORBO
Maison à PRUNELLI-DI-FIUMORBO
Maison à PRUNELLI-DI-FIUMORBO
Maison à PRUNELLI-DI-FIUMORBO
Maison à PRUNELLI-DI-FIUMORBO
Maison à PRUNELLI-DI-FIUMORBO
Maison à PRUNELLI-DI-FIUMORBO
Maison à PRUNELLI-DI-FIUMORBO
Maison à PRUNELLI-DI-FIUMORBO
Maison à PRUNELLI-DI-FIUMORBO
Maison à PRUNELLI-DI-FIUMORBO
Maison à PRUNELLI-DI-FIUMORBO
Maison à PRUNELLI-DI-FIUMORBO
Maison à PRUNELLI-DI-FIUMORBO
Maison à PRUNELLI-DI-FIUMORBO
Maison à PRUNELLI-DI-FIUMORBO
Ce site est protégé par reCAPTCHA la Politique de confidentialité et les Conditions d’utilisation de Google s’appliquent.
Obtenir un prêt immobilier au meilleur taux ?

En poursuivant votre navigation sans modifier vos paramètres, vous acceptez l'utilisation de cookies susceptibles de réaliser des statistiques de visite. Cliquez ici pour plus d'informations