Bénéficiez des services de nos partenaires locaux soigneusement sélectionnés
pour vous accompagner dans votre parcours d'achat immobilier

Maison 86m² à pont-l'eveque

— Pont-L'eveque 14130 —
323 900 €
86 m² / 36 m²
4 pièces
parkingjardin

Nos partenaires locaux
Iad France - Émilie Fantazi vous propose : * MAISON A VISITER SANS TARDER *

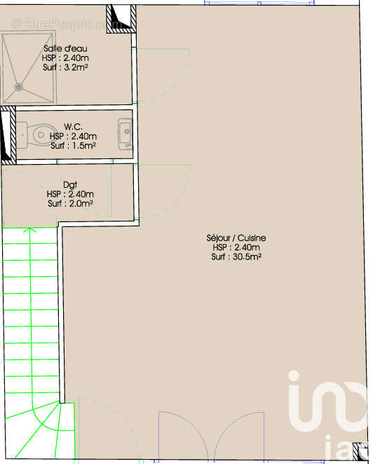
Découvrez cette maison comprenant au rez-de-chaussée :
- Un séjour avec cuisine ouverte,
- Une salle d'eau,
- Un WC séparé avec lave-mains.

Au 1er étage :
- 2 chambres,
- un bureau,
- une salle de bains,
- un WC.

Au dernier étage se trouve une grande chambre et sa salle de bains.

Les + :
- Garage
- Buanderie
- DPE A

Cette maison vous séduira par son agencement optimisé et ses finitions modernes.

Idéale pour une famille, une résidence secondaire ou un investissement locatif, au sein d'une commune vivante et agréable (commerces, écoles, transports...) à 3h de Paris et moins de 30min de la mer.

Honoraires d'agence à la charge du vendeur.
Information d'affichage énergétique sur ce bien : classe ENERGIE A indice 42 et classe CLIMAT A indice 1. Les informations sur les risques auxquels ce bien est exposé, y compris l'obligation légale de débroussaillement, sont disponibles sur le site Géorisques : http://www.georisques.gouv.fr.
La présente annonce immobilière a été rédigée sous la responsabilité éditoriale de Mme Émilie Fantazi mandataire indépendant en immobilier (sans détention de fonds), agent commercial de la SAS I@D France immatriculé au RSAC de CAEN sous le numéro 897584991, titulaire de la carte de démarchage immobilier pour le compte de la société I@D France SAS.
Informations LOI ALUR :
Honoraires charge vendeur. (gedeon_6727_31812196)
Voir plus

Référence: 1834866
Honoraires à la charge du vendeur.
DPE
A
B
C
D
E
F
G
GES
A
B
C
D
E
F
G

Prêt immobilier

Vous souhaitez connaître votre capacité d’emprunt et trouver le meilleur crédit immobilier ?
Réaliser une simulation gratuite

Photo 1 - Maison à PONT-L'EVEQUE
Photo 1
Photo 2 - Maison à PONT-L'EVEQUE
Photo 2
Photo 3 - Maison à PONT-L'EVEQUE
Photo 3
Photo 4 - Maison à PONT-L'EVEQUE
Photo 4
Photo 5 - Maison à PONT-L'EVEQUE
Photo 5
Photo 6 - Maison à PONT-L'EVEQUE
Photo 6
Photo 7 - Maison à PONT-L'EVEQUE
Photo 7
Photo 8 - Maison à PONT-L'EVEQUE
Photo 8
Photo 9 - Maison à PONT-L'EVEQUE
Photo 9
Ce site est protégé par reCAPTCHA la Politique de confidentialité et les Conditions d’utilisation de Google s’appliquent.
Obtenir un prêt immobilier au meilleur taux ?

En poursuivant votre navigation sans modifier vos paramètres, vous acceptez l'utilisation de cookies susceptibles de réaliser des statistiques de visite. Cliquez ici pour plus d'informations