Appartement t2 en duplex avec loggia

— Cazaubon 32150 —
44 000 €
42 m²
2 pièces
parking

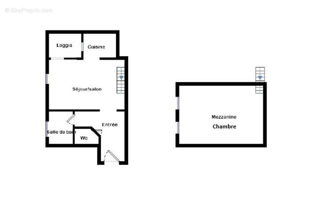
Découvrez cet appartement de 42.19 m² (Carrez) en duplex, situé au 1er étage d'une petite résidence paisible à seulement 900 mètres de l'établissement thermal de Barbotan. Idéal pour un pied-à-terre ou un investissement, il offre un espace fonctionnel et confortable.

Le logement se compose :

D'une entrée avec placard mural

D'un WC séparé

D'une salle de bain

D'une pièce de vie lumineuse de 13,51 m²

D'un coin cuisine de 3,61 m²

D'une chambre spacieuse de 17.07 m²

Vous apprécierez également une loggia agréable de 4.82 m² pour profiter des beaux jours.

Les équipements incluent : double vitrage, radiateurs électriques performants, volets roulants électriques, cumulus électrique, ainsi qu'une place de parking privative.

Informations complémentaires :

Taxe foncière : 704 E

Charges mensuelles : 69 E

N'hésitez pas à venir découvrir ce charmant appartement dans un cadre calme et privilégié.

Les informations sur les risques auxquels ce bien est exposé sont disponibles sur le site Géorisques : www. georisques. gouv. fr.

Pour plus d'informations et pour une visite, contactez Hervé DESPLAT : CLAIRIMMO Barbotan - 3 avenue des Thermes 32150 CAZAUBON - Service Transaction : [Coordonnées masquées] Service Location : [Coordonnées masquées] email : [Coordonnées masquées] RCS 851 986 620 Agent commercial indépendant du réseau national Clairimmo N° RSAC : 495 108 755
Voir plus

Référence: 11728DQ612
Bien en copropriété. Nombre de lots : 123. Charges de copropriété : 65 €.
Honoraires à la charge du vendeur.
DPE
A
B
C
D
E
F
G
GES
A
B
C
D
E
F
G

Prêt immobilier

Vous souhaitez connaître votre capacité d’emprunt et trouver le meilleur crédit immobilier ?
Réaliser une simulation gratuite

Appartement à CAZAUBON
Appartement à CAZAUBON
Appartement à CAZAUBON
Appartement à CAZAUBON
Appartement à CAZAUBON
Appartement à CAZAUBON
Appartement à CAZAUBON
Appartement à CAZAUBON
Appartement à CAZAUBON
Appartement à CAZAUBON
Appartement à CAZAUBON
Appartement à CAZAUBON
Appartement à CAZAUBON
Appartement à CAZAUBON
Appartement à CAZAUBON
Ce site est protégé par reCAPTCHA la Politique de confidentialité et les Conditions d’utilisation de Google s’appliquent.
Obtenir un prêt immobilier au meilleur taux ?

En poursuivant votre navigation sans modifier vos paramètres, vous acceptez l'utilisation de cookies susceptibles de réaliser des statistiques de visite. Cliquez ici pour plus d'informations