Bénéficiez des services de nos partenaires locaux soigneusement sélectionnés
pour vous accompagner dans votre parcours d'achat immobilier

Maison ancienne avec dépendance

— Clevilliers 28300 —
160 500 €
94 m² / 524 m²
4 pièces
parking

Nos partenaires locaux
sous offre

EXCLUSIVITE A SAISIR :

Située au cœur du village de Clévilliers, à seulement 20 minutes de Chartres et proche de Dreux, cette charmante maison de campagne vous séduira par son authenticité et son potentiel. Les écoles maternelle et primaire sont accessibles à pied, avec ramassage scolaire pour le collège et le lycée vers Saint-Prest et Chartres. L'axe RN154 est à 5 minutes pour un accès facile aux grands axes.

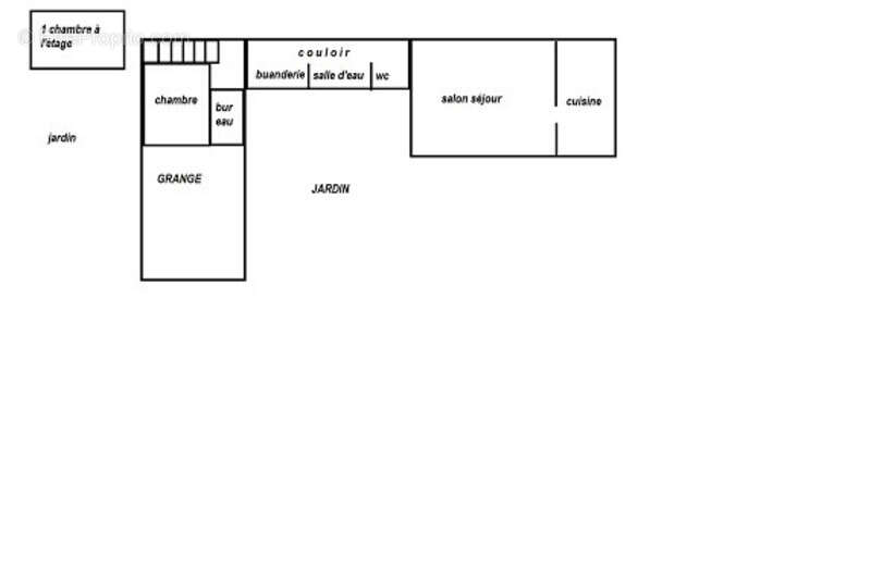
GRANGE attenante à la maison sur 45 m² au sol. Possibilité de créer un étage pour stockage. Toiture en ardoises en très bon état (réalisée en 1992), peut être aménagée en surface habitable supplémentaire, atelier ou garage. Idéale pour une profession libérale.

En continuité, édifiée vers 1929, maison ancienne offre environ 94 m² habitables répartis sur deux niveaux.

Dès l'entrée, vous serez charmé par l'ambiance chaleureuse et authentique des lieux : tomettes anciennes, poutres apparentes, hauteur sous plafond, tout concourt à créer une atmosphère d'antan. Une jolie glycine vous accueille dès son entrée et apporte un cachet indéniable à la façade de cette maison ancienne.

Une cuisine spacieuse de plus de 15 m² aménagée et équipée, s'ouvre sur un salon/séjour lumineux de 20 m² avec cheminée insert et plafond cathédrale. Possibilité d'ouvrir le mur entre les deux pièces par un IPM pour créer une vaste pièce de vie. De jolies tomettes bien entretenues et des poutres au plafond apporte un charme indéniable.

Une mezzanine surplombe le séjour, apportant charme et volume, et dessert une chambre ou bureau mansardée de 9 m².

Au rez-de-chaussée :

Une chambre parentale de 12 m² avec placards,

Un bureau ou chambre d'enfant,

Une salle d'eau avec douche à l'Italienne,

Des toilettes.

A l'étage : une chambre de 14 m² sous mansarde loi carrez (environ 20 m² au sol)

Le terrain clos de 524 m² offre des espaces bien délimités à l'avant et à l'arrière, garantissant calme et intimité, sans vis-à-vis. Possibilité d'y installer une piscine.

Cette maison est reliée au tout-à-l'égout et chauffée par des radiateurs électriques.

Des travaux de rafraichissement sont à prévoir pour la remettre au goût du jour. Les honoraires sont à la charge du vendeur.
Logement à consommation énergétique excessive : classe F
Les informations sur les risques auxquels ce bien est exposé sont disponibles sur le site Géorisques : www. georisques. gouv. fr.

Contactez Catherine GODET Entrepreneur Individuel, Agent commercial OptimHome (RSAC N°821 073 392 Greffe de CHARTRES) [Coordonnées masquées] (réf. 583850 )
Voir plus

Référence: 830038522688
Honoraires à la charge du vendeur.
DPE
A
B
C
D
E
F
G
GES
A
B
C
D
E
F
G

Prêt immobilier

Vous souhaitez connaître votre capacité d’emprunt et trouver le meilleur crédit immobilier ?
Réaliser une simulation gratuite

Maison à CLEVILLIERS
Maison à CLEVILLIERS
Maison à CLEVILLIERS
Maison à CLEVILLIERS
Maison à CLEVILLIERS
Maison à CLEVILLIERS
Maison à CLEVILLIERS
Maison à CLEVILLIERS
Maison à CLEVILLIERS
Maison à CLEVILLIERS
Maison à CLEVILLIERS
Maison à CLEVILLIERS
Maison à CLEVILLIERS
Maison à CLEVILLIERS
Maison à CLEVILLIERS
Maison à CLEVILLIERS
Maison à CLEVILLIERS
Maison à CLEVILLIERS
Maison à CLEVILLIERS
Maison à CLEVILLIERS
Maison à CLEVILLIERS
Maison à CLEVILLIERS
Maison à CLEVILLIERS
Ce site est protégé par reCAPTCHA la Politique de confidentialité et les Conditions d’utilisation de Google s’appliquent.
Obtenir un prêt immobilier au meilleur taux ?

En poursuivant votre navigation sans modifier vos paramètres, vous acceptez l'utilisation de cookies susceptibles de réaliser des statistiques de visite. Cliquez ici pour plus d'informations