Pavillon individuel 3 chambres – en construction - personnalisable à l'intérieur

— Tremblay-En-France 93290 —
288 000 €
115 m² / 217 m²
5 pièces
parkingbalcon/terrasse

Le Thillay – Quartier pavillonnaire calme

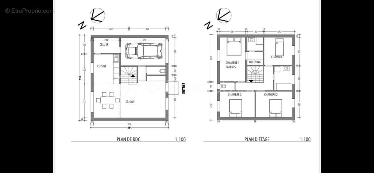
Surface habitable : Environ 115 m² – Parcelle clôturée : 217 m² – Garage fermé

À vendre : pavillon individuel neuf, en cours de construction et prévu habitable mi-2026.

La maison sera livrée avec :
Toiture terminée
Ravalement réalisé
Clôture posée
Menuiseries extérieures installées (fenêtres et porte d'entrée)
Garage fermé

À l'intérieur : un plateau brut à aménager selon vos goûts, vos besoins et votre budget.

Mieux qu'un contrat de construction classique
• Pas d'attente interminable : projet déjà bien entamé, livraison possible dès 2026.
• Liberté totale pour concevoir votre intérieur sur-mesure : cuisine, salle de bains, revêtements, agencements…
• Possibilité d'obtenir un devis pour la suite des travaux, selon vos envies
• Assurances du constructeur sur le gros-oeuvre terminé, et liberté de gérer la suite du projet

Caractéristiques principales :
• 4 chambres
• Garage fermé
• Terrain clôturé de 217 m² avec jardin privatif
• Quartier pavillonnaire très calme
• À proximité immédiate de l'aéroport Paris-Charles de Gaulle et des axes routiers

Idéal pour :
• Primo-accédants à la recherche d'un projet sur mesure
• Amateurs de constructions neuves avec délai court
• Acheteurs souhaitant personnaliser leur maison tout en évitant les contraintes d'un chantier à partir de zéro

Cette annonce référence 299334 vous est présentée par votre agent commercial BSK Immobilier ANTHONY LOPES (EI) immatriculé au RSAC de BOBIGNY (93000) sous le numéro 88488621900010.

Prix du bien : 288 000,00 €
Les honoraires d'agence sont à la charge du vendeur.

Non soumis au DPE.

Les informations sur les risques auxquels ce bien est exposé sont disponibles sur le site Géorisques : www.georisques.gouv.fr
Voir plus

Référence: 299334
Honoraires à la charge du vendeur.

Prêt immobilier

Vous souhaitez connaître votre capacité d’emprunt et trouver le meilleur crédit immobilier ?
Réaliser une simulation gratuite

Maison à TREMBLAY-EN-FRANCE
Maison à TREMBLAY-EN-FRANCE
Maison à TREMBLAY-EN-FRANCE
Maison à TREMBLAY-EN-FRANCE
Maison à TREMBLAY-EN-FRANCE
Ce site est protégé par reCAPTCHA la Politique de confidentialité et les Conditions d’utilisation de Google s’appliquent.
Obtenir un prêt immobilier au meilleur taux ?

En poursuivant votre navigation sans modifier vos paramètres, vous acceptez l'utilisation de cookies susceptibles de réaliser des statistiques de visite. Cliquez ici pour plus d'informations