Pas de commerce à Longeau-Percey pour le moment. Découvrez dès maintenant les commerces dans le département Haute-Marne.
Bénéficiez des services de nos partenaires locaux soigneusement sélectionnés
pour vous accompagner dans votre parcours d'achat immobilier

Local industriel/entrepôt

— Nogent-Le-Rotrou 28400 —
215 000 €
920 m²

Nos partenaires locaux
28400 NOGENT LE ROTROU – LOCAL PROFESSIONNEL 920 m²
effiCity, l'agence leader de l'estimation en ligne vous propose ce local professionnel avec bail de location en cours sur un site sécurisé.
IDEAL INVESTISSEUR
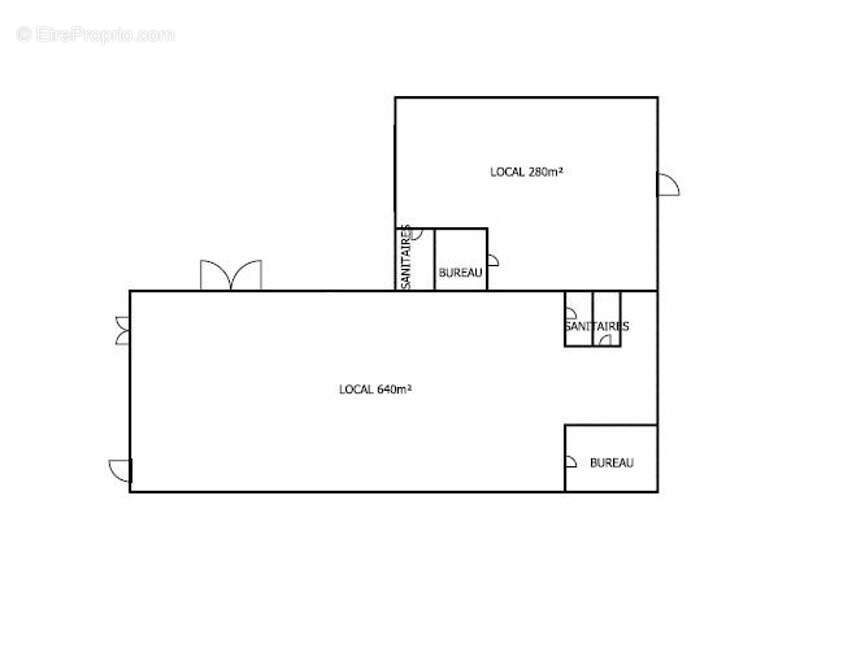
Ce bâtiment est divisé en 2 cellules.
-La première cellule d'une surface de 640m² se compose d'une vaste pièce principale et d'un bureau, d'une douche, d'un WC avec lave mains.
-La seconde cellule d'une surface de 280m² distribue une grande pièce principale, un bureau et des WC avec lave mains. Bail jusqu'à fin avril 2026.

Les atouts : Clôture grillagée plus barbelé – caméra de vidéosurveillance – chaque bâtiment dispose de ces propres compteurs eau et électricité
Les plus : 20 minutes de l'autoroute A11
Bonne rentabilité : 7%
Taxes foncières : 3900€
Pour les visites et les renseignements contactez : Alexandre Morel au [Coordonnées masquées] par mail : [Coordonnées masquées]
Les informations sur les risques auxquels ce bien est exposé sont disponibles sur le site Georisque : georisques. gouv. fr
Alexandre Morel - EI - est Agent Commercial mandataire en immobilier, immatriculé au Registre Spécial des Agents Commerciaux du Tribunal de Commerce de Chartres sous le n°800925448.
Siège social du mandant : effiCity, 48 avenue de Villiers - 75017 PARIS - Société par Actions Simplifiée, société au capital de 132 373,05 euros, immatriculée au RCS Paris 497 617 746 et titulaire de la Carte professionnelle CPI 75[Coordonnées masquées]02 025 - CCI Paris IDF - Caisse de Garantie : GALIAN Assurances 89 rue de la Boétie 75008 Paris
Voir plus

Référence: 192394
Honoraires à la charge du vendeur.
Barème des honoraires

Prêt immobilier

Vous souhaitez connaître votre capacité d’emprunt et trouver le meilleur crédit immobilier ?
Réaliser une simulation gratuite

Commerce à NOGENT-LE-ROTROU
Commerce à NOGENT-LE-ROTROU
Commerce à NOGENT-LE-ROTROU
Commerce à NOGENT-LE-ROTROU
Commerce à NOGENT-LE-ROTROU
Commerce à NOGENT-LE-ROTROU
Commerce à NOGENT-LE-ROTROU
Commerce à NOGENT-LE-ROTROU
Ce site est protégé par reCAPTCHA la Politique de confidentialité et les Conditions d’utilisation de Google s’appliquent.
Obtenir un prêt immobilier au meilleur taux ?

En poursuivant votre navigation sans modifier vos paramètres, vous acceptez l'utilisation de cookies susceptibles de réaliser des statistiques de visite. Cliquez ici pour plus d'informations