Bénéficiez des services de nos partenaires locaux soigneusement sélectionnés
pour vous accompagner dans votre parcours d'achat immobilier

Appartement 92m² à aix-en-provence

— Aix-En-Provence 13090 —
220 000 €
92 m²
5 pièces
parkingbalcon/terrasseascenseur

Nos partenaires locaux
' Une bouffée d'air '


13090 AIX-EN-PROVENCE / JAS- DE- BOUFFAN


À Rénover ! Type 4/5 de 92m² avec terrasse de 10m² et balcon,
au calme et sans vis-à-vis
+ Double box de 24m²en SUS + Cave


Idéalement situé à la périphérie d'Aix-en-Provence, proche de nombreuses commodités du quotidien,
des établissements scolaires et des transports en commun.


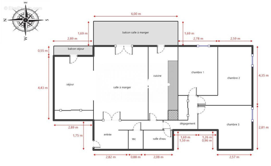
The AGENCY vous propose en exclusivité ce type 4/5 de 92,08 m² Loi Carrez en rez-de-chaussée surélevé.


Celui-ci se compose de la manière suivante :


Côté jour :
Un hall d'entrée, une cuisine indépendante, meublée et équipée,
un salon, une salle à manger (pouvant reprendre sa fonction de 4ème chambre).

Côté nuit :
Trois chambres, une salle d'eau et un WC indépendant.


Une cave de 2,69m² en sous-sol complète le bien.


Possibilité d'acquérir un double box en enfilade en sous-sol en SUS.


Charges (Apt + Box) : 260.00€/ mois
(Comprenant eau froide, entretien des parties communes et espaces verts, électricité des communs,
honoraire du syndic et assurances de la copropriété)


Taxe foncière (Apt + Box) : 1 272.00€ /an

'The Agency , La Révolution Immobilière ...'


Honoraires à la charge du vendeur et de l'acquéreur. Honoraires inclus de 4.76% TTC à la charge de l'acquéreur. Prix hors honoraires 210 000 €. Dans une copropriété de 150 lots. Quote-part moyenne du budget prévisionnel 10 920 €/an. Aucune procédure n'est en cours. Classe énergie B, Classe climat A Montant estimé des dépenses annuelles d'énergie pour un usage standard : entre 720.00 € et 1030.00 € sur les années 2021, 2022 et 2023 (abonnements compris). Les informations sur les risques auxquels ce bien est exposé sont disponibles sur le site Géorisques : georisques.gouv.fr.

Votre conseiller The Agency : Marion BENMAOR
Agent commercial (Entreprise individuelle)
RSAC 881240188
RCP AR839642
Voir plus

Référence: VA3376-THEAGENCY
Bien en copropriété. Nombre de lots : 150. Charges de copropriété : 10920 €.
Honoraires d'agence de 4.76% à la charge de l'acquéreur
Barème des honoraires
DPE
A
B
C
D
E
F
G
GES
A
B
C
D
E
F
G

Prêt immobilier

Vous souhaitez connaître votre capacité d’emprunt et trouver le meilleur crédit immobilier ?
Réaliser une simulation gratuite

Appartement à AIX-EN-PROVENCE
Appartement à AIX-EN-PROVENCE
Appartement à AIX-EN-PROVENCE
Appartement à AIX-EN-PROVENCE
Appartement à AIX-EN-PROVENCE
Appartement à AIX-EN-PROVENCE
Appartement à AIX-EN-PROVENCE
Ce site est protégé par reCAPTCHA la Politique de confidentialité et les Conditions d’utilisation de Google s’appliquent.
Obtenir un prêt immobilier au meilleur taux ?

En poursuivant votre navigation sans modifier vos paramètres, vous acceptez l'utilisation de cookies susceptibles de réaliser des statistiques de visite. Cliquez ici pour plus d'informations