Maison en construction dans un secteur calme à aleria

— Aghione 20270 —
267 500 €
100 m² / 8 557 m²
4 pièces
jardin

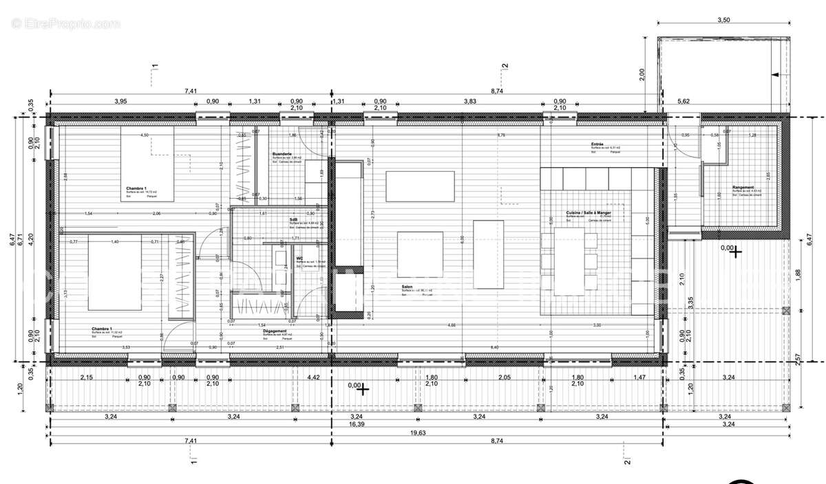
Corse Patrimoine Immobilier vous présente en exclusivité, une maison hors d'eau-hors d'air de 100 m2 sans aucun vis-à-vis !
Édifiée sur une parcelle de 8557 m2 dans un secteur calme et paisible, ce bien sans vis-à-vis saura vous offrir un cadre de vie idéal !
Un atelier de 20m2 est également édifié sur la parcelle.

Proche d'Aleria et Ghisonaccia, vous résiderez entre calme et accès proche à toutes commodités !
Un projet de résidence principale, chambre d'hôte ... ? Voici le bien idéal !

Contactez-nous pour plus d'informations !

Les informations sur les risques auxquels ce bien est exposé sont disponibles sur le site Géorisques : www.georisques.gouv.fr
Voir plus

Honoraires d'agence de 7% à la charge de l'acquéreur
Barème des honoraires

Prêt immobilier

Vous souhaitez connaître votre capacité d’emprunt et trouver le meilleur crédit immobilier ?
Réaliser une simulation gratuite

Maison à AGHIONE
Maison à AGHIONE
Maison à AGHIONE
Ce site est protégé par reCAPTCHA la Politique de confidentialité et les Conditions d’utilisation de Google s’appliquent.
Obtenir un prêt immobilier au meilleur taux ?

En poursuivant votre navigation sans modifier vos paramètres, vous acceptez l'utilisation de cookies susceptibles de réaliser des statistiques de visite. Cliquez ici pour plus d'informations