Maison en viager - bravone

— Linguizzetta 20230 —
265 000 €
233 m² / 5 420 m²
8 pièces
parkingbalcon/terrassejardinaccès handicapé

Maison en Viager Occupé - EXCLUSIVITÉ
Située dans un environnement calme, à seulement 5 minutes des plages et à 200 mètres de l’école, cette vaste maison édifiée sur un terrain arboré de 5400 m² offre de multiples atouts.

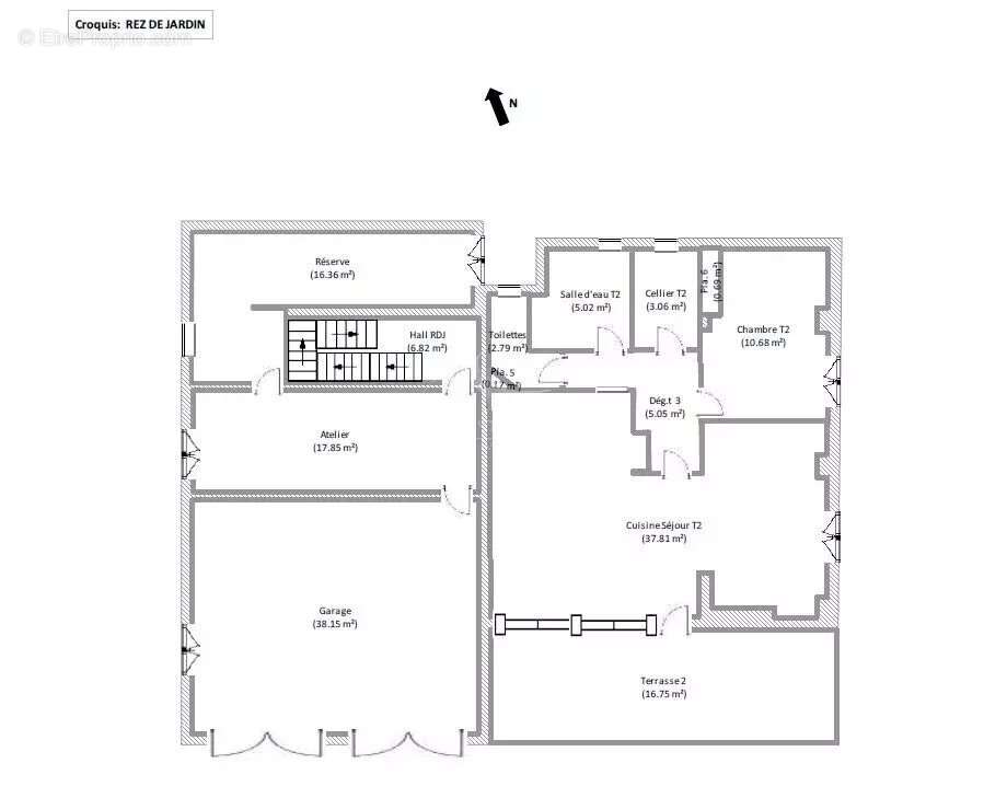
La propriété se compose de trois niveaux. En rez-de-jardin, un appartement indépendant comprenant cuisine, salon, chambre, buanderie, salle d’eau et WC séparés, idéal pour accueillir famille, amis ou générer un revenu locatif. Ce niveau dispose également d’un double garage et d’un atelier de 35 m².

Au rez-de-chaussée, vous trouverez une entrée, une cuisine, un salon avec cheminée, une salle à manger avec cheminée, ainsi que trois chambres, chacune dotée de sa salle d’eau et de son WC privatifs. Un cellier complète l’ensemble. Toutes les pièces sont équipées de climatisation pour un confort optimal.

À l’extérieur, un superbe jardin arboré avec puits, une terrasse d’environ 60 m² exposée sud-est et la possibilité de créer une piscine invitent à la détente.

Enfin, le R+1, d’une surface de 100 m² sur dalle béton, reste entièrement aménageable selon vos projets.

Details du Viager:
Viager Occupé par une femme de 83 ans et un homme de 87 ans.
Bouquet 265 000€ dont 250 000€ net vendeur et 15 000€ d'honoraires d'agence.
Rente mensuelle 450€ (revisable annuellement selon indice INSEE).

Travaux à prévoir : crépis, remplacement des menuiseries et mise aux normes électriques. Une belle opportunité à saisir !
Voir plus

Référence: 00264JLV
DPE
A
B
C
D
E
F
G
GES
A
B
C
D
E
F
G

Prêt immobilier

Vous souhaitez connaître votre capacité d’emprunt et trouver le meilleur crédit immobilier ?
Réaliser une simulation gratuite

Maison à LINGUIZZETTA
Maison à LINGUIZZETTA
Maison à LINGUIZZETTA
Maison à LINGUIZZETTA
Maison à LINGUIZZETTA
Maison à LINGUIZZETTA
Maison à LINGUIZZETTA
Maison à LINGUIZZETTA
Maison à LINGUIZZETTA
Maison à LINGUIZZETTA
Maison à LINGUIZZETTA
Maison à LINGUIZZETTA
Maison à LINGUIZZETTA
Maison à LINGUIZZETTA
Maison à LINGUIZZETTA
Maison à LINGUIZZETTA
Maison à LINGUIZZETTA
Maison à LINGUIZZETTA
Maison à LINGUIZZETTA
Ce site est protégé par reCAPTCHA la Politique de confidentialité et les Conditions d’utilisation de Google s’appliquent.
Obtenir un prêt immobilier au meilleur taux ?

En poursuivant votre navigation sans modifier vos paramètres, vous acceptez l'utilisation de cookies susceptibles de réaliser des statistiques de visite. Cliquez ici pour plus d'informations