Bénéficiez des services de nos partenaires locaux soigneusement sélectionnés
pour vous accompagner dans votre parcours d'achat immobilier

Terrain -ormesson sur marne- 332 m2

— Ormesson-Sur-Marne 94490 —
260 000 €
332 m²
jardin

Nos partenaires locaux
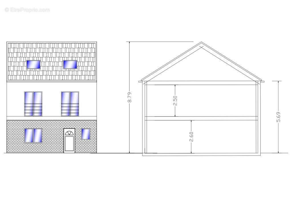
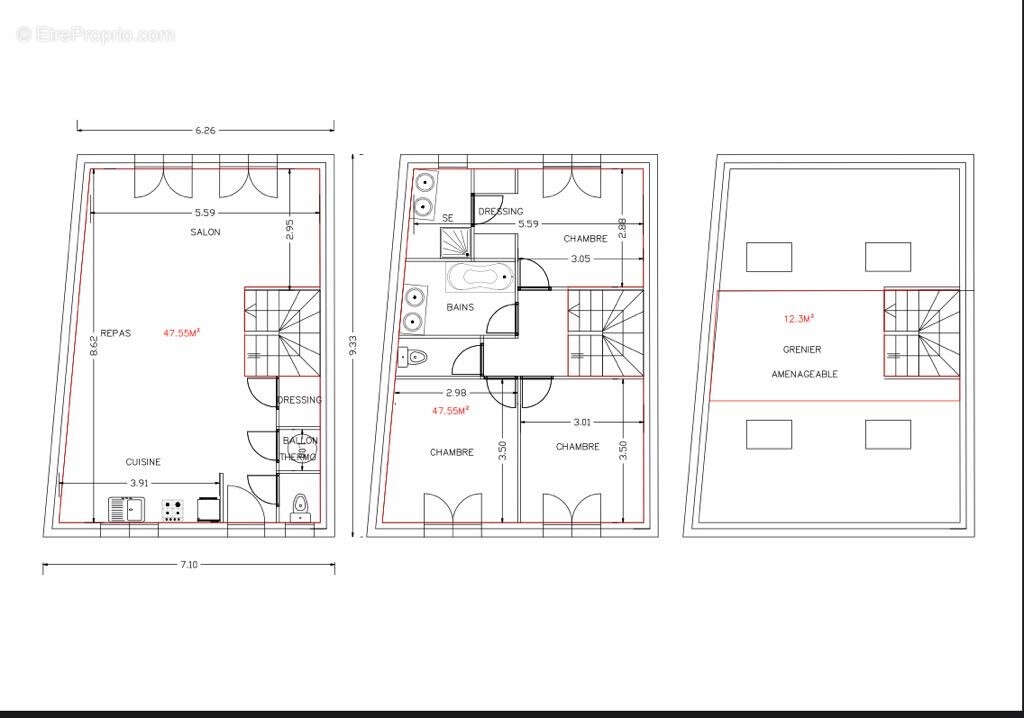
Mise en vente vous propose de découvrir sur le secteur privilégié d'Ormesson Sur Marne, ce terrain plat à bâtir de 332m². A 5 minutes à pieds des commerces, commodités, écoles primaire et maternelle. Permis accordé et purgé !! Possibilité de faire une maison expo Est-Ouest d''environ 120m² R+1 + Combles + Sous-sol LIBRE CONSTRUCTEUR ! Possibilité de mise en relation avec des constructeurs de maisons individuelles.

Barème des honoraires

Prêt immobilier

Vous souhaitez connaître votre capacité d’emprunt et trouver le meilleur crédit immobilier ?
Réaliser une simulation gratuite

Terrain à ORMESSON-SUR-MARNE
Terrain à ORMESSON-SUR-MARNE
Terrain à ORMESSON-SUR-MARNE
Ce site est protégé par reCAPTCHA la Politique de confidentialité et les Conditions d’utilisation de Google s’appliquent.
Obtenir un prêt immobilier au meilleur taux ?

En poursuivant votre navigation sans modifier vos paramètres, vous acceptez l'utilisation de cookies susceptibles de réaliser des statistiques de visite. Cliquez ici pour plus d'informations