Bénéficiez des services de nos partenaires locaux soigneusement sélectionnés
pour vous accompagner dans votre parcours d'achat immobilier

Maison de village route des vins

— Voegtlinshoffen 68420 —
215 000 €
120 m² / 110 m²
5 pièces
parkingbalcon/terrassejardin

Nos partenaires locaux
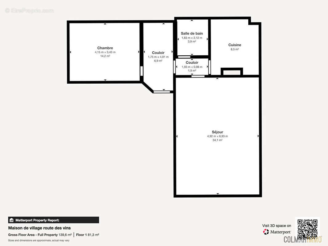
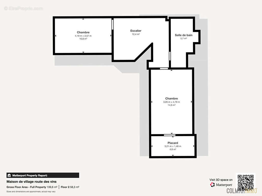
Située au coeur du village de Voegtlinshoffen, cette maison datant des années 1800 séduit par son authenticité et ses beaux volumes. Élevée sur trois niveaux et d'une surface habitable d'environ 120 m² au sol, elle offre un cadre chaleureux et fonctionnel. Au rez-de-chaussée, vous trouverez un sous-sol complet comprenant cave, buanderie, garage et espace de stockage. Au 1er niveau, une terrasse vous accueille avant de découvrir une entrée desservant une chambre, un couloir, une salle d'eau avec WC, une cuisine indépendante et un vaste salon-séjour lumineux. A l'étage, un palier dessert deux chambres supplémentaires, dont une avec espace dressing, un dégagement et une salle d'eau avec toilettes. Idéal pour un premier achat ou pour un projet de résidence secondaire (7.50 % honoraires TTC à la charge de l'acquéreur.)
Voir plus

Référence: 741
Honoraires d'agence de 7.5% à la charge de l'acquéreur
Barème des honoraires
DPE
A
B
C
D
E
F
G
GES
A
B
C
D
E
F
G

Prêt immobilier

Vous souhaitez connaître votre capacité d’emprunt et trouver le meilleur crédit immobilier ?
Réaliser une simulation gratuite

Maison à VOEGTLINSHOFFEN
Maison à VOEGTLINSHOFFEN
Maison à VOEGTLINSHOFFEN
Maison à VOEGTLINSHOFFEN
Maison à VOEGTLINSHOFFEN
Maison à VOEGTLINSHOFFEN
Maison à VOEGTLINSHOFFEN
Maison à VOEGTLINSHOFFEN
Maison à VOEGTLINSHOFFEN
Maison à VOEGTLINSHOFFEN
Maison à VOEGTLINSHOFFEN
Maison à VOEGTLINSHOFFEN
Ce site est protégé par reCAPTCHA la Politique de confidentialité et les Conditions d’utilisation de Google s’appliquent.
Obtenir un prêt immobilier au meilleur taux ?

En poursuivant votre navigation sans modifier vos paramètres, vous acceptez l'utilisation de cookies susceptibles de réaliser des statistiques de visite. Cliquez ici pour plus d'informations