Bénéficiez des services de nos partenaires locaux soigneusement sélectionnés
pour vous accompagner dans votre parcours d'achat immobilier

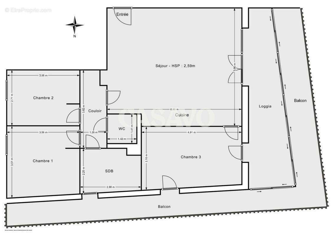
Vente appartement 4 pièces de 83m² - 44000 nantes

— Nantes 44000 —
285 000 €
83 m²
4 pièces
parkingbalcon/terrasseascenseur

Nos partenaires locaux
Casavo vous propose à la vente cet appartement de 83 m² avec jardin d'hiver, balcon filant et parking sécurisé, situé au 5ᵉ étage d'une résidence récente (2018) avec ascenseur.
Dès l'entrée, vous serez séduit par sa spacieuse pièce de vie de 36 m² avec cuisine ouverte, et prolongée par un agréable jardin d'hiver de 14 m² exposé plein sud, modulable grâce à ses baies vitrées.
Côté nuit, l'appartement dispose de deux grandes chambres (11,8 m² et 14,1 m²), d'un bureau de près de 9 m² pouvant aisément être transformé en 3ᵉ chambre, ainsi qu'une salle de bain et des WC indépendants.
À l'extérieur, profitez d'un balcon filant de 14 m² offrant une vue dégagée sur la Loire et ses environs
Une place de parking en sous-sol sécurisé vient compléter ce bien.
Son emplacement est idéal : écoles, commerces et transports se trouvent à quelques pas seulement, vous garantissant un quotidien pratique et agréable.

Intéressé par ce bien ? Plus d'informations sur le site de Casavo.
Voir plus

Référence: 45727
Bien en copropriété. Nombre de lots : 88.
Honoraires à la charge du vendeur.
DPE
A
B
C
D
E
F
G
GES
A
B
C
D
E
F
G

Prêt immobilier

Vous souhaitez connaître votre capacité d’emprunt et trouver le meilleur crédit immobilier ?
Réaliser une simulation gratuite

Appartement à NANTES
Appartement à NANTES
Appartement à NANTES
Appartement à NANTES
Appartement à NANTES
Appartement à NANTES
Appartement à NANTES
Appartement à NANTES
Appartement à NANTES
Appartement à NANTES
Appartement à NANTES
Appartement à NANTES
Ce site est protégé par reCAPTCHA la Politique de confidentialité et les Conditions d’utilisation de Google s’appliquent.
Obtenir un prêt immobilier au meilleur taux ?

En poursuivant votre navigation sans modifier vos paramètres, vous acceptez l'utilisation de cookies susceptibles de réaliser des statistiques de visite. Cliquez ici pour plus d'informations