Bénéficiez des services de nos partenaires locaux soigneusement sélectionnés
pour vous accompagner dans votre parcours d'achat immobilier

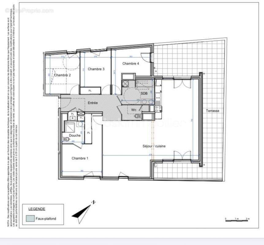
43 m2 de terrasse en triple exposition !

— Caluire-Et-Cuire 69300 —
595 000 €
122 m²
6 pièces
balcon/terrasseascenseur

Nos partenaires locaux
RARE A LA VENTE !
Nouvellement construit dans le quartier prisé et résidentiel de Crépieux.
Dans une belle résidence récente, labellisée RT2012 , cet appartement LUMINEUX, au 3e étage sur 4, vous séduira par ses volumes.
Une pièce de vie de 52 m2 s'ouvrant sur une TERRASSE EN TRIPLE EXPOSITION de 43 m2 !
T6 avec 4 chambres, dont une suite parentale accédant à la terrasse, avec salle d'eau et dressing.
Une 5e chambre est possible tout en gardant un séjour de très belle taille.
Une salle de bain avec baignoire, WC séparé.
Une vue dégagée, sans vis à vis, sur le jardin paysagé de la résidence.

Le chauffage est individuel, au gaz, avec robinets thermostatiques et programmateur d'ambiance.
Volets roulants électriques.
Visiophone.
Ascenseur.

Situé dans un quartier paisible, à l'esprit village, en proximité immédiate de toutes les commodités (écoles, transports, commerces).

GARAGE DOUBLE en sous sol possible.

Cette annonce référence 238327 vous est présentée par votre agent commercial BSK Immobilier CORINNE FISCHER (EI) immatriculé au RSAC de LYON-7E-ARRONDISSEMENT (69007) sous le numéro 91413011700015.

Prix du bien : 595 000,00 €
Les honoraires d'agence sont à la charge du vendeur.

A propos des performances énergétiques :
Date de réalisation du diagnostic énergétique : 06/02/2024
Score DPE : 56 kWhEP/m²/an
Score GES : 11 kgepCO2/m²/an
Montant estimé des dépenses annuelles d'énergie pour un usage standard : entre 669.00 € et 904.00 € par an. Prix moyens des énergies indexés sur l'année 2021 (abonnements compris).

Les informations sur les risques auxquels ce bien est exposé sont disponibles sur le site Géorisques : www.georisques.gouv.fr
Voir plus

Référence: 238327_1
Honoraires à la charge du vendeur.
DPE
A
B
C
D
E
F
G
GES
A
B
C
D
E
F
G

Prêt immobilier

Vous souhaitez connaître votre capacité d’emprunt et trouver le meilleur crédit immobilier ?
Réaliser une simulation gratuite

Appartement à CALUIRE-ET-CUIRE
Appartement à CALUIRE-ET-CUIRE
Appartement à CALUIRE-ET-CUIRE
Appartement à CALUIRE-ET-CUIRE
Appartement à CALUIRE-ET-CUIRE
Appartement à CALUIRE-ET-CUIRE
Appartement à CALUIRE-ET-CUIRE
Appartement à CALUIRE-ET-CUIRE
Ce site est protégé par reCAPTCHA la Politique de confidentialité et les Conditions d’utilisation de Google s’appliquent.
Obtenir un prêt immobilier au meilleur taux ?

En poursuivant votre navigation sans modifier vos paramètres, vous acceptez l'utilisation de cookies susceptibles de réaliser des statistiques de visite. Cliquez ici pour plus d'informations