Garches - golf de saint-cloud - duplex de charme - 8 pièces - 245m² - 4 chambres - terrasse 78,10m²

— Garches 92380 —
1 350 000 €
245 m²
8 pièces
parkingbalcon/terrasse

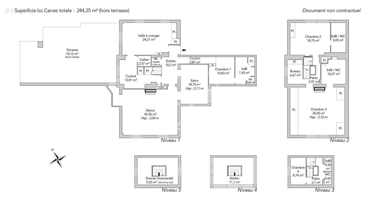
Comme une maison, ce duplex de charme prend place au sein d’une superbe bâtisse historique de style anglo-normand, nichée dans un écrin de verdure.

Dès l’entrée, on découvre une élégante salle à manger ouverte sur une vaste terrasse privative, exposée plein ouest, idéale pour savourer les journées ensoleillées. Le grand salon, agrémenté d’une cheminée, offre une atmosphère à la fois chaleureuse et raffinée. Un petit salon intimiste, une cuisine indépendante, des toilettes invités, ainsi qu’une chambre avec salle de bains et toilettes complètent ce niveau.

À l'étage, deux très belles chambres disposent chacune de leur point d’eau, accompagnées d’un bureau, parfait pour le télétravail ou les moments de concentration.

Au second étage, installé dans la tour, une quatrième chambre ainsi qu’une salle de bains offrent un cadre unique et plein de caractère. Tout en haut, un dernier niveau propose un espace atypique baigné de lumière, pouvant faire office d’atelier ou de bureau, avec une vue panoramique à 360° sur la tour Eiffel et le Mont Valérien.

Une cave vient parfaire ce bien rare, qui séduira les amateurs d’authenticité, de calme et de discrétion, à l’abri des regards.

Possibilité d'acquérir un box.

Isabelle CHETOCHINE (EI) Agent commercial - Numéro RSAC : 509 894 747 - PARIS 1,285,715 € Honoraires d'agence non inclus - Honoraires agence: 5%TTC Honoraires à la charge de l'acquéreur - Nombre de lots dans la copropriété: 7 - Montant moyen de la quote-part de charges courantes 8,040 €/an - Montant estimé des dépenses annuelles d'énergie pour un usage standard, établi à partir des prix de l'énergie de l'année 2023 : 10550€ ~ 14320€ - Isabelle CHETOCHINE - Agent commercial - EI - RSAC PARIS 509 894 747 1,285,715 € Honoraires d'agence non inclus - Honoraires agence: 5%TTC Honoraires à la charge de l'acquéreur - Nombre de lots dans la copropriété: 7 - Montant moyen de la quote-part de charges courantes 8,040 €/an - Montant estimé des dépenses annuelles d'énergie pour un usage standard, établi à partir des prix de l'énergie de l'année 2023 : 10550€ ~ 14320€ - Isabelle CHETOCHINE - Agent commercial - EI - RSAC PARIS 509 894 747
Voir plus

Référence: 1012CLOCHE
Barème des honoraires
DPE
A
B
C
D
E
F
G
GES
A
B
C
D
E
F
G

Prêt immobilier

Vous souhaitez connaître votre capacité d’emprunt et trouver le meilleur crédit immobilier ?
Réaliser une simulation gratuite

Appartement à GARCHES
Appartement à GARCHES
Appartement à GARCHES
Appartement à GARCHES
Appartement à GARCHES
Appartement à GARCHES
Appartement à GARCHES
Appartement à GARCHES
Appartement à GARCHES
Appartement à GARCHES
Appartement à GARCHES
Appartement à GARCHES
Appartement à GARCHES
Appartement à GARCHES
Ce site est protégé par reCAPTCHA la Politique de confidentialité et les Conditions d’utilisation de Google s’appliquent.
Obtenir un prêt immobilier au meilleur taux ?

En poursuivant votre navigation sans modifier vos paramètres, vous acceptez l'utilisation de cookies susceptibles de réaliser des statistiques de visite. Cliquez ici pour plus d'informations