Maison 86m² à luzenac

— Luzenac 09250 —
145 000 €
86 m² / 487 m²
4 pièces
jardin

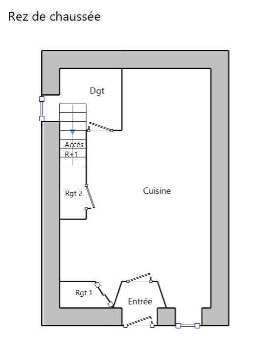
LUZENAC, Maison de village T4 de 86.3 m² dans un village paisible de montagne, située à 5 minutes d'AX-LES-THERMES. Comprenant, au rez-de-chaussée, entrée cuisine-séjour, coin salon et rangement sous escaliers. Au 1er étage, palier avec placard, chambre, pièce avec douche, wc séparé et salle d'eau. Au 2ème étage, palier avec placards, deux chambres et wc. Exposée Sud-Est AVEC joli jardin de 487 m² ensoleillé en bord de rivière avec dépendance et abris bois. Honoraires à la charge du vendeur. Logement à consommation énergétique excessive. Montant estimé des dépenses annuelles d'énergie pour un usage standard : entre 3 050 et 4 190 euros. Prix moyens des énergies indexés en 2022.
Voir plus

Référence: 1656
DPE
A
B
C
D
E
F
G
GES
A
B
C
D
E
F
G

Prêt immobilier

Vous souhaitez connaître votre capacité d’emprunt et trouver le meilleur crédit immobilier ?
Réaliser une simulation gratuite

  - Maison à LUZENAC
  - Maison à LUZENAC
  - Maison à LUZENAC
  - Maison à LUZENAC
  - Maison à LUZENAC
  - Maison à LUZENAC
  - Maison à LUZENAC
  - Maison à LUZENAC
  - Maison à LUZENAC
  - Maison à LUZENAC
  - Maison à LUZENAC
  - Maison à LUZENAC
  - Maison à LUZENAC
  - Maison à LUZENAC
  - Maison à LUZENAC
  - Maison à LUZENAC
  - Maison à LUZENAC
  - Maison à LUZENAC
  - Maison à LUZENAC
  - Maison à LUZENAC
  - Maison à LUZENAC
  - Maison à LUZENAC
  - Maison à LUZENAC
  - Maison à LUZENAC
  - Maison à LUZENAC
  - Maison à LUZENAC
  - Maison à LUZENAC
  - Maison à LUZENAC
  - Maison à LUZENAC
  - Maison à LUZENAC
  - Maison à LUZENAC
  - Maison à LUZENAC
  - Maison à LUZENAC
Ce site est protégé par reCAPTCHA la Politique de confidentialité et les Conditions d’utilisation de Google s’appliquent.
Obtenir un prêt immobilier au meilleur taux ?

En poursuivant votre navigation sans modifier vos paramètres, vous acceptez l'utilisation de cookies susceptibles de réaliser des statistiques de visite. Cliquez ici pour plus d'informations