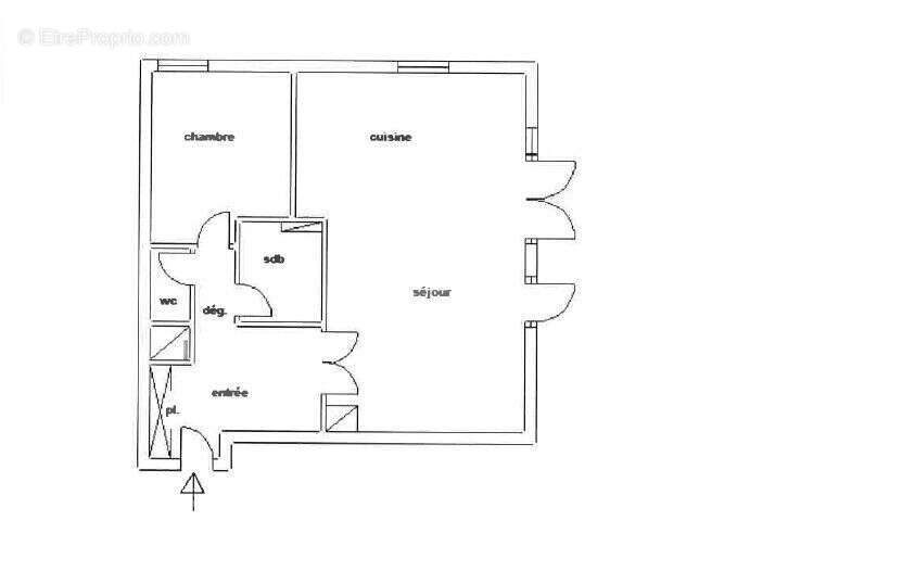
Lyon 9ème, au calme, à 2mn des tcl, appartement t2 de 54m², avec jardin clos de 52m² sans vis à vis.

— Lyon-9e 69009 —
215 000 €
54 m² / 52 m²
2 pièces
balcon/terrassejardinascenseur

*EXCLUSIVITÉ PRIMMO* Lyon 9ème, au calme absolu dans une impasse, lumineux Appartement de 2 pièces en rez de chaussée surélevé de 54m² avec un jardin de 52m² clos sans vis à vis. Il se situe à 2mn à pied d'un arrêt de bus et bénéficie d'un accès rapide aux grands axes . Le hall d'entrée équipé d'un grand placard vestiaire dessert une spacieuse pièce de vie de 32m² avec cuisine aménagée qui ouvre par une large baie sur la terrasse et le jardin. Un dégagement mène à l'espace nuit, composé d'une chambre, d'une salle de bains et de toilettes indépendants. Chauffage individuel au gaz, porte 5 points, huisseries double vitrage et volets roulants. Petite copropriété clôturée (23 lots) de 2003, équipée d'un garage à vélo. Les atouts de ce bien : Calme, belle luminosité, accès rapide aux grands axes Possibilité d'acquérir en sus un garage double en sous sol (20 000 euros). Les informations sur les risques auxquels ce bien est exposé sont disponibles sur le site Géorisques : www.georisques.gouv.fr Copropriété de 23 lots - dont 23 lots habitation. Charges annuelles : 1810 euros.
Voir plus

Référence: 1649
Bien en copropriété. Nombre de lots : 23. Charges de copropriété : 1810 €. Procédure en cours : Procédure en cours.
Honoraires à la charge du vendeur.
Barème des honoraires
DPE
A
B
C
D
E
F
G
GES
A
B
C
D
E
F
G

Prêt immobilier

Vous souhaitez connaître votre capacité d’emprunt et trouver le meilleur crédit immobilier ?
Réaliser une simulation gratuite

Appartement à LYON-9E
Appartement à LYON-9E
Appartement à LYON-9E
Appartement à LYON-9E
Appartement à LYON-9E
Appartement à LYON-9E
Appartement à LYON-9E
Appartement à LYON-9E
Appartement à LYON-9E
Ce site est protégé par reCAPTCHA la Politique de confidentialité et les Conditions d’utilisation de Google s’appliquent.
Obtenir un prêt immobilier au meilleur taux ?

En poursuivant votre navigation sans modifier vos paramètres, vous acceptez l'utilisation de cookies susceptibles de réaliser des statistiques de visite. Cliquez ici pour plus d'informations