Bénéficiez des services de nos partenaires locaux soigneusement sélectionnés
pour vous accompagner dans votre parcours d'achat immobilier

Maison t3 - la teste de buch

— La Teste-De-Buch 33260 —
249 000 €
65 m² / 121 m²
3 pièces
parkingbalcon/terrassejardin

Nos partenaires locaux
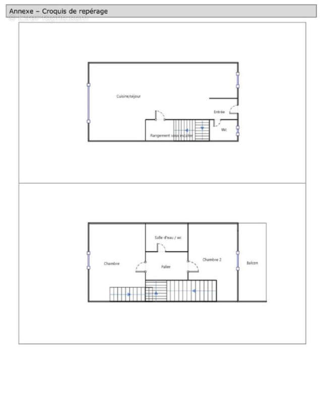
Dans un environnement résidentiel, pour votre résidence principale ou tout projet d'investissement, nous vous proposons cette maison T3 au sein d'une petite copropriété de 3 lots, au coeur de la commune de La Teste de Buch et à quelques encablures du Bassin d'Arcachon. D'une surface habitable de 65 m² dont 57 m² Carrez, elle comprend : au rez-de-chaussée, une entrée, un séjour avec cuisine, l'ensemble ouvrant sur un jardin privatif et clôturé ainsi qu'un wc individuel. A l'étage, vous retrouverez une première chambre avec son balcon privatif, une seconde avec sa mezzanine, ainsi qu'une salle d'eau avec wc. L'ensemble est accompagné de 2 places de stationnement. N'hésitez pas à nous contacter pour tout renseignement complémentaire. Copropriété de 3 lots (Pas de procédure en cours). Charges annuelles : 330 euros.
Voir plus

Bien en copropriété. Nombre de lots : 3. Charges de copropriété : 330 €.
Honoraires à la charge du vendeur.
Barème des honoraires
DPE
A
B
C
D
E
F
G
GES
A
B
C
D
E
F
G

Prêt immobilier

Vous souhaitez connaître votre capacité d’emprunt et trouver le meilleur crédit immobilier ?
Réaliser une simulation gratuite

Maison à LA TESTE-DE-BUCH
Maison à LA TESTE-DE-BUCH
Maison à LA TESTE-DE-BUCH
Maison à LA TESTE-DE-BUCH
Maison à LA TESTE-DE-BUCH
Maison à LA TESTE-DE-BUCH
Maison à LA TESTE-DE-BUCH
Maison à LA TESTE-DE-BUCH
Maison à LA TESTE-DE-BUCH
Maison à LA TESTE-DE-BUCH
Ce site est protégé par reCAPTCHA la Politique de confidentialité et les Conditions d’utilisation de Google s’appliquent.
Obtenir un prêt immobilier au meilleur taux ?

En poursuivant votre navigation sans modifier vos paramètres, vous acceptez l'utilisation de cookies susceptibles de réaliser des statistiques de visite. Cliquez ici pour plus d'informations