Bénéficiez des services de nos partenaires locaux soigneusement sélectionnés
pour vous accompagner dans votre parcours d'achat immobilier

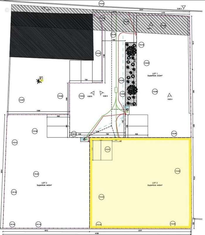
Terrain 448m² à mallemort

— Mallemort 13370 —
178 000 €
448 m²

Nos partenaires locaux
Situé sur un emplacement privilégié à 400m à pied du centre de Mallemort, au 133 Avenue de Craponne, terrain plat et constructible orienté Sud d'une surface de 448 m². Commodités, transports et établissements scolaires à proximité.

Terrain vendu :
- Entièrement viabilisé à neuf (Eau AEP - EDF - tout à l'égout EU / EV - PTT) ;
- Avec un permis de construire accepté réalisé par un architecte : maison individuelle T5 en R + 1 de 120.57 m², garage de 26.7 m², terrasse de 37.02 m², piscine et deux places de stationnements devant le garage. Permis modifiable ;
- LIBRE CONSTRUCTEUR ;
- Avec chemin d'accès, espace vert et local poubelle créés à neuf (communs pour le lotissement de 3 lots).

PLU zone UB : L'emprise au sol totale des constructions est limitée à 40% de la superficie du terrain, la hauteur maximale des constructions est limitée à 7 m à l'égout de la toiture (1 étage), et la hauteur maximale des annexes est limitée à 3 mètres à l'égout et 5 m au faitage. Piscinable. Les espaces non imperméabilisés (traités et plantés) ou éco aménageables doivent représenter au moins 30% de la superficie du terrain.

Terrain lot n°2 résultant de la création du 'Lotissement Les jardins de Gaia' (3 terrains constructibles à vendre, voir ma page), suite au permis d'aménager PA01305323P0002 accordé.

Dossier sur demande. N'hésitez pas à me contacter.

Les informations sur les risques auxquels ce bien est exposé sont disponibles sur le site Géorisques : www.georisques.gouv.fr
Prix de vente : 178 000 ¤
Honoraires charge vendeur

Contactez votre conseiller SAFTI : Mathias SOULIER, Tél. : [Coordonnées masquées], E-mail : [Coordonnées masquées] - EI - Agent commercial immatriculé au RSAC de AIX EN PROVINCE sous le numéro 879663607.
Informations LOI ALUR :
Honoraires charge vendeur. (gedeon_26118_31817765)
Voir plus

Référence: 1319195
Honoraires à la charge du vendeur.
Barème des honoraires

Prêt immobilier

Vous souhaitez connaître votre capacité d’emprunt et trouver le meilleur crédit immobilier ?
Réaliser une simulation gratuite

Photo 1 - Terrain à MALLEMORT
Photo 1
Photo 2 - Terrain à MALLEMORT
Photo 2
Photo 3 - Terrain à MALLEMORT
Photo 3
Photo 4 - Terrain à MALLEMORT
Photo 4
Photo 5 - Terrain à MALLEMORT
Photo 5
Photo 6 - Terrain à MALLEMORT
Photo 6
Photo 7 - Terrain à MALLEMORT
Photo 7
Ce site est protégé par reCAPTCHA la Politique de confidentialité et les Conditions d’utilisation de Google s’appliquent.
Obtenir un prêt immobilier au meilleur taux ?

En poursuivant votre navigation sans modifier vos paramètres, vous acceptez l'utilisation de cookies susceptibles de réaliser des statistiques de visite. Cliquez ici pour plus d'informations