Terrain 650m² à bedarrides

— Bedarrides 84370 —
199 000 €
650 m²

Iad France - Franck Rescanieres vous propose : BEDARRIDES - Le terrain idéal pour votre projet de vie

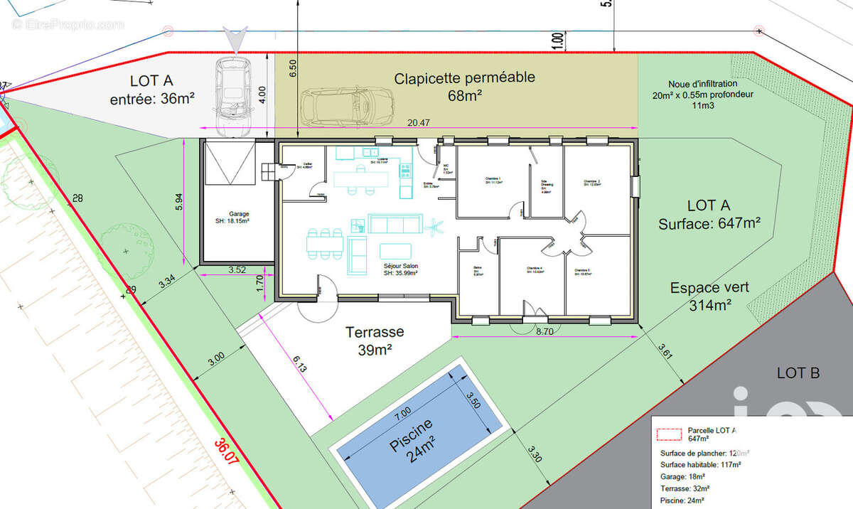
Chemin du Plan du Rhône, découvrez ce terrain de 647 m² qui bénéficie déjà d'un permis de construire validé. Une villa de 153 m² de surface plancher avec garage, piscine et terrasse est autorisée : un gain de temps précieux pour démarrer rapidement votre projet.

- Détails du projet
Maison de plain-pied de 117 m² habitables + garage de 18 m²
Piscine de 24 m² + terrasse de 32 m²
Terrain bien exposé, avec noue d'infiltration et aménagement paysager prévus
Viabilisation en bordure (eau et électricité)
Défense incendie validée et aire de retournement intégrée

Un atout majeur : tout est pensé et déjà validé, vous n'avez plus qu'à lancer votre construction dans un cadre agréable, calme et résidentiel.

Contactez-moi dès aujourd'hui pour plus d'informations ou pour visiter le site.

Honoraires d'agence à la charge du vendeur.
Bien non soumis au DPE. Les informations sur les risques auxquels ce bien est exposé, y compris l'obligation légale de débroussaillement, sont disponibles sur le site Géorisques : http://www.georisques.gouv.fr.
La présente annonce immobilière a été rédigée sous la responsabilité éditoriale de M Franck Rescanieres mandataire indépendant en immobilier (sans détention de fonds), agent commercial de la SAS I@D France immatriculé au RSAC de AVIGNON sous le numéro 911398204, titulaire de la carte de démarchage immobilier pour le compte de la société I@D France SAS.
Informations LOI ALUR :
Honoraires charge vendeur. (gedeon_6727_31832145)
Voir plus

Référence: 1836975
Honoraires à la charge du vendeur.

Prêt immobilier

Vous souhaitez connaître votre capacité d’emprunt et trouver le meilleur crédit immobilier ?
Réaliser une simulation gratuite

Photo 1 - Terrain à BEDARRIDES
Photo 1
Photo 2 - Terrain à BEDARRIDES
Photo 2
Photo 3 - Terrain à BEDARRIDES
Photo 3
Photo 4 - Terrain à BEDARRIDES
Photo 4
Photo 5 - Terrain à BEDARRIDES
Photo 5
Photo 6 - Terrain à BEDARRIDES
Photo 6
Photo 7 - Terrain à BEDARRIDES
Photo 7
Photo 8 - Terrain à BEDARRIDES
Photo 8
Photo 9 - Terrain à BEDARRIDES
Photo 9
Ce site est protégé par reCAPTCHA la Politique de confidentialité et les Conditions d’utilisation de Google s’appliquent.
Obtenir un prêt immobilier au meilleur taux ?

En poursuivant votre navigation sans modifier vos paramètres, vous acceptez l'utilisation de cookies susceptibles de réaliser des statistiques de visite. Cliquez ici pour plus d'informations