Bénéficiez des services de nos partenaires locaux soigneusement sélectionnés
pour vous accompagner dans votre parcours d'achat immobilier

Appartement 114m² à lorient

— Lorient 56100 —
420 000 €
114 m²
5 pièces
parkingbalcon/terrasseascenseur

Nos partenaires locaux
Vue panoramique, volumes généreux et emplacement rare… découvrez ce duplex exceptionnel de 114m2, dans une résidence avec ascenseur, en plein coeur de Lorient.
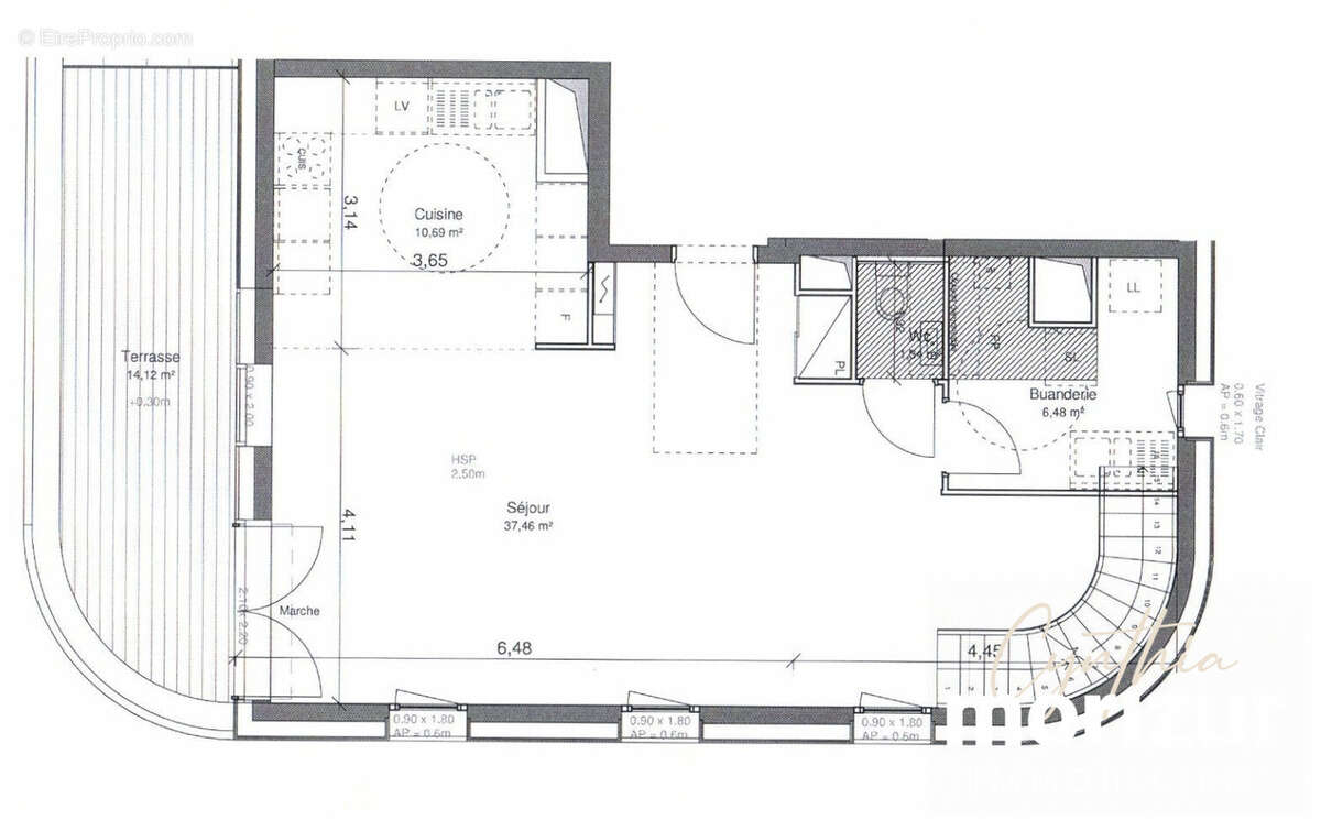
Le rez-de-chaussée accueille une pièce de vie de 37 m² baignée de lumière, s'ouvrant sur une terrasse offrant une vue imprenable sur Lorient et l'île de Groix. La cuisine aménagée et équipée, ouverte sur le séjour, est complétée par une buanderie.
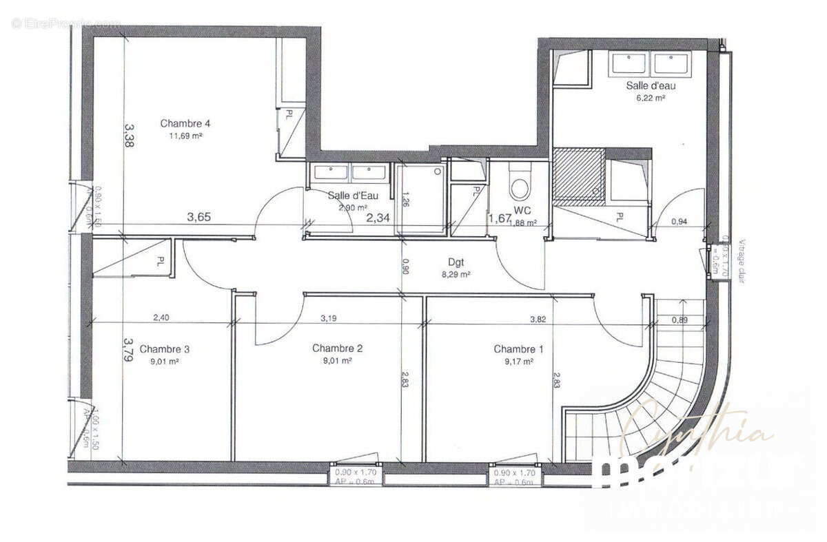
À l'étage, l'espace nuit propose quatre chambres, dont une suite avec salle d'eau privative, une seconde salle d'eau, un WC. Il dispose d'un garage et d'une place de parking en souterrain. Venez le visiter.

Honoraires inclus de 5% TTC à la charge de l'acquéreur. Prix hors honoraires 400 000 €. Dans une copropriété de 29 lots. Aucune procédure n'est en cours. Classe énergie B, Classe climat B Montant estimé des dépenses annuelles d'énergie pour un usage standard : entre 666.00 € et 900.00 € sur les années 2021, 2022 et 2023 (abonnements compris). Les informations sur les risques auxquels ce bien est exposé sont disponibles sur le site Géorisques : georisques.gouv.fr.
.
Les informations sur les risques auxquels ce bien est exposé sont disponibles sur le site Géorisques : www.georisques.gouv.fr.
Voir plus

Référence: VA1931-CYNTHIAMORIZURIMMOBILIER
Bien en copropriété. Nombre de lots : 29.
Honoraires d'agence de 5% à la charge de l'acquéreur
Barème des honoraires
DPE
A
B
C
D
E
F
G
GES
A
B
C
D
E
F
G

Prêt immobilier

Vous souhaitez connaître votre capacité d’emprunt et trouver le meilleur crédit immobilier ?
Réaliser une simulation gratuite

Appartement à LORIENT
Appartement à LORIENT
Appartement à LORIENT
Plan Rez-de-Chaussée - Appartement à LORIENT
Plan Rez-de-Chaussée
Plan Etage - Appartement à LORIENT
Plan Etage
Ce site est protégé par reCAPTCHA la Politique de confidentialité et les Conditions d’utilisation de Google s’appliquent.
Obtenir un prêt immobilier au meilleur taux ?

En poursuivant votre navigation sans modifier vos paramètres, vous acceptez l'utilisation de cookies susceptibles de réaliser des statistiques de visite. Cliquez ici pour plus d'informations