Bénéficiez des services de nos partenaires locaux soigneusement sélectionnés
pour vous accompagner dans votre parcours d'achat immobilier

Maison lentilly – proximité de la gare

— Lentilly 69210 —
455 000 €
156 m² / 592 m²
6 pièces
parkingbalcon/terrassejardin

Nos partenaires locaux
À Lentilly, à deux pas de la gare (sans nuisance) et à seulement 15 minutes de Lyon Saint-Paul, venez découvrir cette maison pleine de charme d'environ 140 m², édifiée sur une parcelle de 592 m².
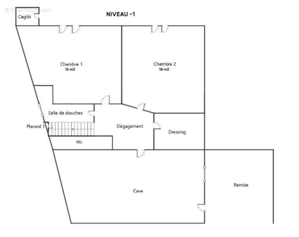
Répartie sur trois niveaux, elle propose au rez-de-jardin une belle pièce de vie lumineuse avec cuisine ouverte et un WC, à l'étage trois chambres et une salle de bain avec WC, ainsi qu'un sous-sol semi-ouvert sur l'extérieur offrant deux chambres supplémentaires, un dressing, une salle d'eau, un WC indépendant, un dégagement et une cave.
Située dans un quartier calme et résidentiel tout en restant proche des commodités et des transports, cette maison dispose d'un agréable jardin plat et arboré, idéal pour profiter de moments conviviaux en famille.
Un bien rare sur le secteur, à visiter sans tarder.
Référence agence : 462
Voir plus

Référence: 2J2R-90S-QXA
Honoraires à la charge du vendeur.
Barème des honoraires
DPE
A
B
C
D
E
F
G
GES
A
B
C
D
E
F
G

Prêt immobilier

Vous souhaitez connaître votre capacité d’emprunt et trouver le meilleur crédit immobilier ?
Réaliser une simulation gratuite

Maison à LENTILLY
Maison à LENTILLY
Maison à LENTILLY
Maison à LENTILLY
Maison à LENTILLY
Maison à LENTILLY
Maison à LENTILLY
Maison à LENTILLY
Maison à LENTILLY
Maison à LENTILLY
Maison à LENTILLY
Maison à LENTILLY
Maison à LENTILLY
Maison à LENTILLY
Maison à LENTILLY
Maison à LENTILLY
Ce site est protégé par reCAPTCHA la Politique de confidentialité et les Conditions d’utilisation de Google s’appliquent.
Obtenir un prêt immobilier au meilleur taux ?

En poursuivant votre navigation sans modifier vos paramètres, vous acceptez l'utilisation de cookies susceptibles de réaliser des statistiques de visite. Cliquez ici pour plus d'informations