Bénéficiez des services de nos partenaires locaux soigneusement sélectionnés
pour vous accompagner dans votre parcours d'achat immobilier

Vente loft 5 pièces de 291m² - 75010 paris

— Paris-10e 75010 —
2 920 000 €
291 m²
5 pièces

Nos partenaires locaux
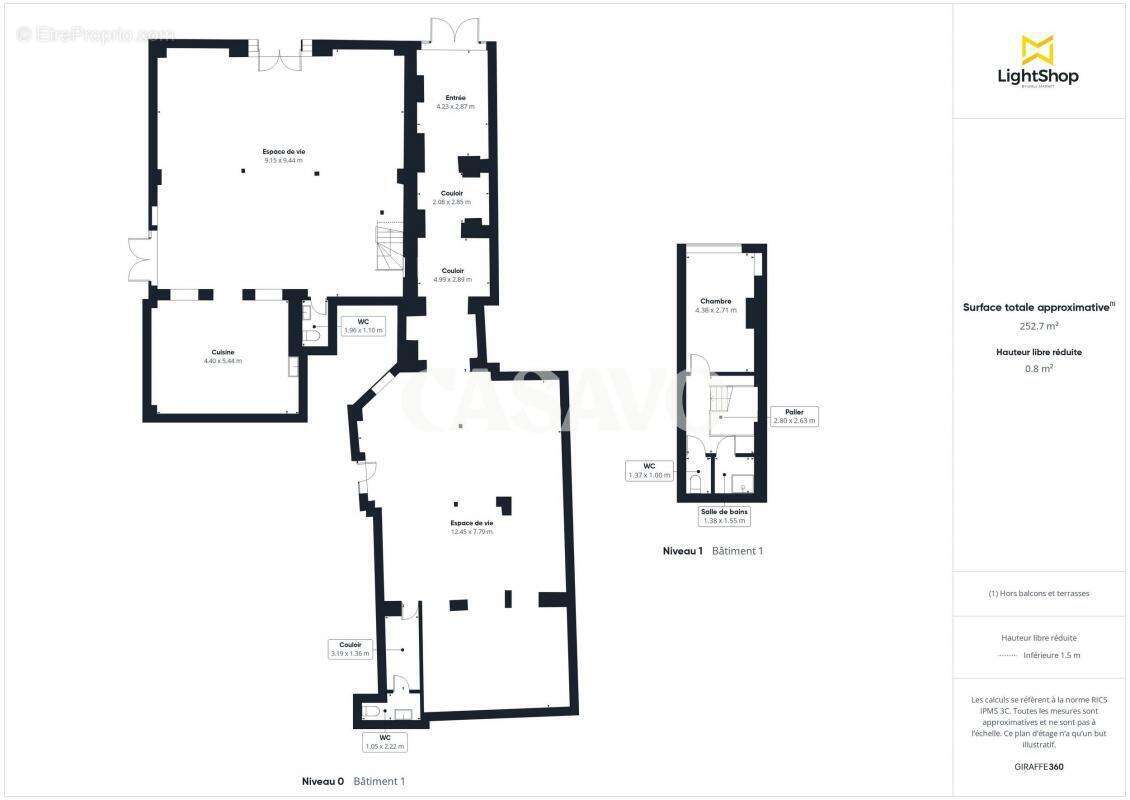
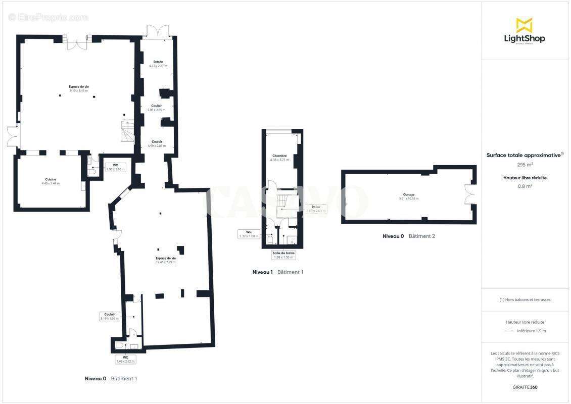
Casavo vous propose à la vente ces locaux commerciaux de 291.m² localisé à la mairie du Xème.

Ce bien se situe au rez-de-chaussée d'un immeuble de 1900 bien entretenu, sécurisé par un interphone, un gardien et par un digicode.

Il se compose d'un premier plateau de 159m² composé d'une entrée desservant un grand open space sous verrière avec WC séparé et emplacement de cuisine et profite d'un accès rue et un accès cour.

Le second plateau pouvant etre ouvert sur le premier fait quand à lui 90m² et profite également d'une entrée sur rue et une autre sur cour. Il se compose en rez-de-chaussée d'un grand open space avec point d'eau et à l'étage d'un bureau, WC séparé et un espace salle de douche.

Enfin, en fond de cour un atelier/remise de 42m2 complètement ouvert.

Produit rare sur le marché et idéal pour les projets d'investissement, de création de loft, atelier photo ou bureaux atypiques en plein coeur de Paris et du village St Martin.

Les locaux disposent d'eau chaude et chauffage individuel électrique.
Proximité immédiate des lignes de Métro 4, 5, 8 et 9. ( Stations Jacques Bonsergent, Chateau d'eau, Strasbourg Saint-Denis)

Une cave complète ce bien.
Charges de copropriété : 1333€/ mois.
Taxe foncière : 1909€ par an

Ce bien est commercialisé par Casavo.

Intéressé par ce bien ? Plus d'informations sur le site de Casavo.
Voir plus

Référence: 45443
Bien en copropriété. Nombre de lots : 40. Charges de copropriété : 1357 €.
Honoraires à la charge du vendeur.

Prêt immobilier

Vous souhaitez connaître votre capacité d’emprunt et trouver le meilleur crédit immobilier ?
Réaliser une simulation gratuite

Appartement à PARIS-10E
Appartement à PARIS-10E
Appartement à PARIS-10E
Appartement à PARIS-10E
Appartement à PARIS-10E
Appartement à PARIS-10E
Appartement à PARIS-10E
Appartement à PARIS-10E
Appartement à PARIS-10E
Appartement à PARIS-10E
Appartement à PARIS-10E
Appartement à PARIS-10E
Appartement à PARIS-10E
Appartement à PARIS-10E
Appartement à PARIS-10E
Appartement à PARIS-10E
Appartement à PARIS-10E
Appartement à PARIS-10E
Appartement à PARIS-10E
Appartement à PARIS-10E
Appartement à PARIS-10E
Ce site est protégé par reCAPTCHA la Politique de confidentialité et les Conditions d’utilisation de Google s’appliquent.
Obtenir un prêt immobilier au meilleur taux ?

En poursuivant votre navigation sans modifier vos paramètres, vous acceptez l'utilisation de cookies susceptibles de réaliser des statistiques de visite. Cliquez ici pour plus d'informations