Bénéficiez des services de nos partenaires locaux soigneusement sélectionnés
pour vous accompagner dans votre parcours d'achat immobilier

Maison familiale 155 m2 8 pièces champs-sur-marne

— Champs-Sur-Marne 77420 —
579 000 €
155 m² / 385 m²
8 pièces
parkingbalcon/terrassejardin

Nos partenaires locaux
Anne MAUDUIT vous présente :
Cette belle maison, construite en 1997, d'une superficie de 155m2 située à Champs-sur-Marne, dans un secteur résidentiel proche des commodités, du Château de Champs-sur-Marne et du Parc de Noisiel.
Elle se compose au RDC :
- Salon/Séjour lumineux de 45 m2 avec une cheminée à insert
- Cuisine ouverte et équipée de 13 m2
- Bureau de 11 m2 et salle de jeux de 7.5 m2 (possibilité de réunir les 2 pour une grande chambre au RDC)
- 1 WC
- Une buanderie de 9,5 m2, pratique et bien agencée
- Un garage de 40 m2 permettant de stationner deux véhicules (portes de garage éléctriques) + 2 stationnements extérieurs

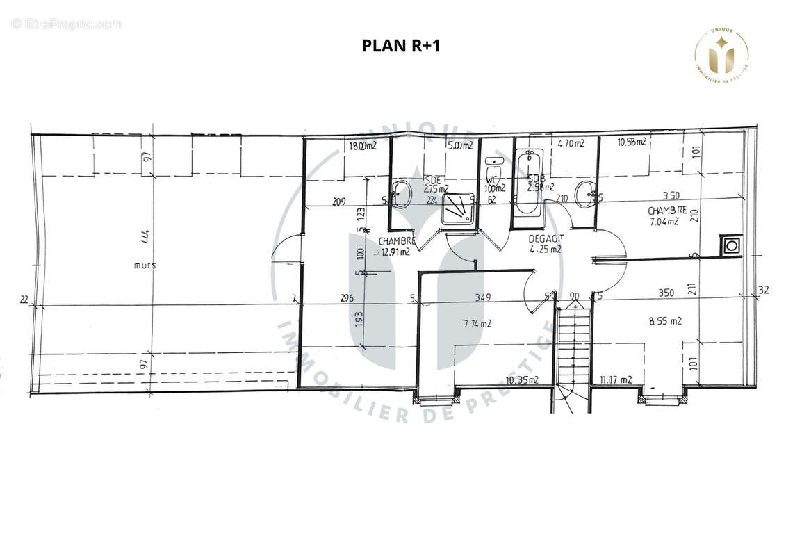
A l'étage :
- 4 chambres dont une chambre parentale avec salle d'eau
- 1 espace supplémentaire de 17m2 prêt à l'emploi et à transformer en chambre ou dressing selon vos envies
- 1 WC
La maison bénéficie d'une belle terrasse d'environ 30 m2 exposée plein sud avec un jardin clos situé sur un terrain de 385 m2.
Confort et prestations : - Double vitrage, chauffage individuel électrique
- Volets électriques centralisés
- Exposition plein sud

RER A à proximité, accès rapide aux commerces, écoles et loisirs.
Contactez-moi dès aujourd’hui pour découvrir cette maison familiale, lumineuse et idéalement située à Champs-sur-Marne !
Vous trouverez également dans cette annonce une vidéo de la maison et de son environnement.
Une visite s’impose pour en saisir tout le potentiel.
Voir plus

Référence: 7361
Barème des honoraires
DPE
A
B
C
D
E
F
G
GES
A
B
C
D
E
F
G

Prêt immobilier

Vous souhaitez connaître votre capacité d’emprunt et trouver le meilleur crédit immobilier ?
Réaliser une simulation gratuite

Maison à CHAMPS-SUR-MARNE
Maison à CHAMPS-SUR-MARNE
Maison à CHAMPS-SUR-MARNE
Maison à CHAMPS-SUR-MARNE
Maison à CHAMPS-SUR-MARNE
Maison à CHAMPS-SUR-MARNE
Maison à CHAMPS-SUR-MARNE
Maison à CHAMPS-SUR-MARNE
Maison à CHAMPS-SUR-MARNE
Maison à CHAMPS-SUR-MARNE
Maison à CHAMPS-SUR-MARNE
Maison à CHAMPS-SUR-MARNE
Maison à CHAMPS-SUR-MARNE
Maison à CHAMPS-SUR-MARNE
Maison à CHAMPS-SUR-MARNE
Maison à CHAMPS-SUR-MARNE
Maison à CHAMPS-SUR-MARNE
Maison à CHAMPS-SUR-MARNE
Ce site est protégé par reCAPTCHA la Politique de confidentialité et les Conditions d’utilisation de Google s’appliquent.
Obtenir un prêt immobilier au meilleur taux ?

En poursuivant votre navigation sans modifier vos paramètres, vous acceptez l'utilisation de cookies susceptibles de réaliser des statistiques de visite. Cliquez ici pour plus d'informations