Bénéficiez des services de nos partenaires locaux soigneusement sélectionnés
pour vous accompagner dans votre parcours d'achat immobilier

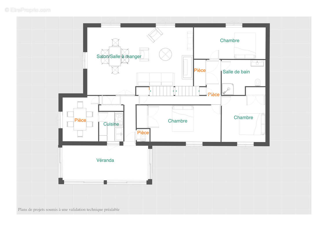
Maison sur sous-sol 136 m2, secteur antoigné, châtellerault (86100)

— Chatellerault 86100 —
219 900 €
136 m²
6 pièces
parking

Nos partenaires locaux
Située à Antoigné, quartier recherché de Châtellerault, cette maison familiale sur sous-sol complet offre 136 m2 habitables, implantée sur un terrain clos et arboré de 1 800 m2. Un cadre verdoyant qui allie espace, confort et potentiel d’aménagement.

La maison se compose de 6 pièces dont 4 chambres, une salle d'eau, ainsi qu’une vaste pièce de 37 m2 au sol à aménager selon vos besoins : suite parentale, salle de jeux, bureau, atelier… À cela s’ajoutent une véranda lumineuse et un balcon pour profiter de l’extérieur en toute saison.

Côté équipements, vous apprécierez le portail et la porte de garage motorisés, ainsi qu’un système de chauffage par pompe à chaleur récent (moins de 2 ans), gage de confort et d’économies d’énergie.

Un bien rare dans ce secteur prisé, idéal pour une famille en quête d’un cadre de vie agréable, spacieux et proche de toutes commodités.
Voir plus

Barème des honoraires
DPE
A
B
C
D
E
F
G
GES
A
B
C
D
E
F
G

Prêt immobilier

Vous souhaitez connaître votre capacité d’emprunt et trouver le meilleur crédit immobilier ?
Réaliser une simulation gratuite

Maison à CHATELLERAULT
Maison à CHATELLERAULT
Maison à CHATELLERAULT
Maison à CHATELLERAULT
Maison à CHATELLERAULT
Maison à CHATELLERAULT
Maison à CHATELLERAULT
Maison à CHATELLERAULT
Maison à CHATELLERAULT
Maison à CHATELLERAULT
Maison à CHATELLERAULT
Maison à CHATELLERAULT
Maison à CHATELLERAULT
Maison à CHATELLERAULT
Maison à CHATELLERAULT
Maison à CHATELLERAULT
Maison à CHATELLERAULT
Ce site est protégé par reCAPTCHA la Politique de confidentialité et les Conditions d’utilisation de Google s’appliquent.
Obtenir un prêt immobilier au meilleur taux ?

En poursuivant votre navigation sans modifier vos paramètres, vous acceptez l'utilisation de cookies susceptibles de réaliser des statistiques de visite. Cliquez ici pour plus d'informations