Garlin - maison 17 pièce(s)

— Garlin 64330 —
312 000 €
400 m²
17 pièces
parkingbalcon/terrasse

Ensemble Immobilier de 400 m² ? Ancien Hôtel-Restaurant

Au c½ur d'un village paisible, à la frontière du Gers et des Pyrénées-Atlantiques

Situé dans un environnement touristique recherché, cet ancien hôtel-restaurant offre un potentiel rare pour un projet d'investissement ou de réhabilitation. Entre vignobles du Madiran et coteaux du Béarn, vous profiterez d'un cadre idéal pour accueillir une clientèle en quête de nature, de patrimoine et de sérénité. À proximité, bastides, châteaux, dégustations de vins, mais aussi le circuit automobile d'Aydie? le tout à seulement 1h de Pau et de Mont-de-Marsan.

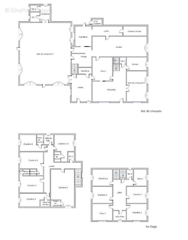
Description du bien

Rez-de-chaussée : vaste entrée, deux salles de restaurant, bureau, espace sanitaires, une chambre, cuisines équipées avec chambre froide, buanderie.

Étage (partie I) : 6 chambres, salle d'eau, WC.

Étage (partie II) : 7 chambres avec salle d'eau/WC privatifs, plus salle d'eau et WC communs sur le palier.

Extérieurs et annexes

Grande terrasse carrelée, jardin (bornage en cours de validation).

Deux hangars sécurisés avec portes séquentielles + abri attenant.

Cour et parking goudronnés, portail électrique.

Vue dégagée sur les coteaux du Béarn.

Atouts supplémentaires

Écoles et transports scolaires à proximité.
Secteur calme, cadre verdoyant
Un grand parking

Idéal pour : investisseurs, marchands de biens ou porteurs de projet souhaitant redonner vie à un établissement de caractère (hôtellerie, restauration, chambres d'hôtes, séminaires, événementiel, ...).

Une opportunité unique dans un cadre privilégié, à découvrir sans tarder !

Pour plus d'informations, contactez Evelyne au [Coordonnées masquées]
Annonce REF N° EMA2793 - Honoraires d'Agence à la charge du vendeur

Annonce rédigée par Evelyne MARTIN E.I., Agent Commercial, immatriculé RSAC du Tribunal de commerce de DAX sous le numéro : 899 976 922, pour le compte de MONZEO, marque déposée par NEAXIA dont le siège social se situe 2 rue des Phénix 64600 ANGLET, et détentrice de la carte T n° CPI 64[Coordonnées masquées]22 277 délivrée par la CCI de Bayonne Pays Basque
Les informations sur les risques auxquels ce bien est exposé sont disponibles sur le site Géorisques : www.georisques.gouv.fr
Voir plus

Référence: EMA2793
DPE
A
B
C
D
E
F
G
GES
A
B
C
D
E
F
G

Prêt immobilier

Vous souhaitez connaître votre capacité d’emprunt et trouver le meilleur crédit immobilier ?
Réaliser une simulation gratuite

Maison à GARLIN
Maison à GARLIN
Maison à GARLIN
Maison à GARLIN
Maison à GARLIN
Maison à GARLIN
Maison à GARLIN
Maison à GARLIN
Maison à GARLIN
Maison à GARLIN
Maison à GARLIN
Maison à GARLIN
Maison à GARLIN
Maison à GARLIN
Maison à GARLIN
Ce site est protégé par reCAPTCHA la Politique de confidentialité et les Conditions d’utilisation de Google s’appliquent.
Obtenir un prêt immobilier au meilleur taux ?

En poursuivant votre navigation sans modifier vos paramètres, vous acceptez l'utilisation de cookies susceptibles de réaliser des statistiques de visite. Cliquez ici pour plus d'informations