Bénéficiez des services de nos partenaires locaux soigneusement sélectionnés
pour vous accompagner dans votre parcours d'achat immobilier

Superbe 4 pièces proche des plages du midi dernier etage

— Cannes 06400 —
749 000 €
104 m²
4 pièces
balcon/terrasseascenseuraccès handicapé

Nos partenaires locaux
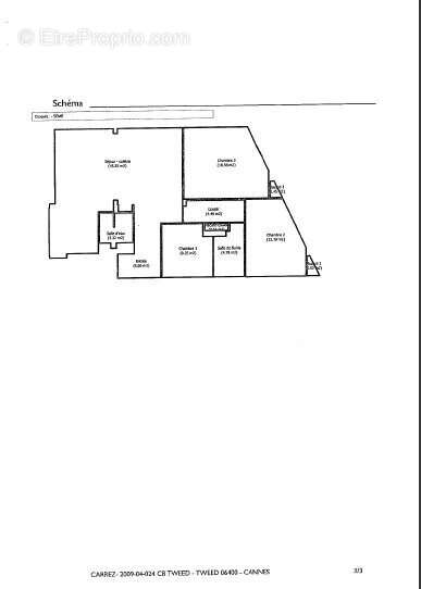
À quelques minutes du centre-ville et des magnifiques plages du Midi, cet appartement de 104m² au dernier étage vous séduira par sa luminosité et ses beaux volumes.

Il comprend un hall d'entrée, une cuisine américaine ouverte sur un vaste séjour, trois chambres spacieuses, une salle de bain, et une salle d'eau avec toilettes. Deux balcons filants offrent une vue dégagée sur la mer, parfaits pour profiter de l'extérieur et de la sérénité du cadre.

Ce bien est complété par une cave ; possibilité d'acheter un garage en plus

Situé dans une copropriété avec des charges annuelles de 4536 €, cet appartement offre un cadre de vie agréable et fonctionnel. Il se loue tes bien pour les Differents congres cannois .

Le prix inclut les honoraires de l’agence. Pour plus d'informations ou organiser une visite, n'hésitez pas à nous contacter.

Pour consulter les éventuels risques liés à ce bien, rendez-vous sur le site Géorisques : (https://georisques.gouv.fr/).
Voir plus

Référence: 1052
Barème des honoraires
DPE
A
B
C
D
E
F
G
GES
A
B
C
D
E
F
G

Prêt immobilier

Vous souhaitez connaître votre capacité d’emprunt et trouver le meilleur crédit immobilier ?
Réaliser une simulation gratuite

Appartement à CANNES
Appartement à CANNES
Appartement à CANNES
Appartement à CANNES
Appartement à CANNES
Appartement à CANNES
Appartement à CANNES
Appartement à CANNES
Appartement à CANNES
Appartement à CANNES
Appartement à CANNES
Appartement à CANNES
Ce site est protégé par reCAPTCHA la Politique de confidentialité et les Conditions d’utilisation de Google s’appliquent.
Obtenir un prêt immobilier au meilleur taux ?

En poursuivant votre navigation sans modifier vos paramètres, vous acceptez l'utilisation de cookies susceptibles de réaliser des statistiques de visite. Cliquez ici pour plus d'informations