Rue de la plaine/buzenval

— Paris-20e 75020 —
325 000 €
39 m²
1 pièce
ascenseur

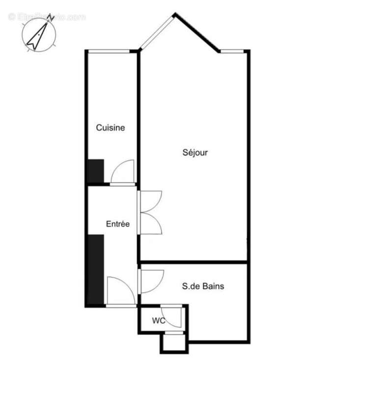
Proche Boulevard de Charonne, au 6e étage avec ascenseur d'un immeuble moderne et sécurisée, appartement calme et lumineux se composant d'une entrée, une pièce principale avec belle vue dégagée, une cuisine équipée (mur non porteur avec le séjour), une salle de bains et un wc séparé + une cave (possibilité achat d'un parking en sus) Fenêtres neuves (Double vitrage oscillo-battantes) , chauffage à restitution thermique, volets électriques, porte blindée. Mobilier séjour sur-mesure pouvant être retiré.
Voir plus

Référence: 86201733
Barème des honoraires
DPE
A
B
C
D
E
F
G
GES
A
B
C
D
E
F
G

Prêt immobilier

Vous souhaitez connaître votre capacité d’emprunt et trouver le meilleur crédit immobilier ?
Réaliser une simulation gratuite

Appartement à PARIS-20E
Appartement à PARIS-20E
Appartement à PARIS-20E
Appartement à PARIS-20E
Appartement à PARIS-20E
Appartement à PARIS-20E
Appartement à PARIS-20E
Appartement à PARIS-20E
Appartement à PARIS-20E
Appartement à PARIS-20E
Appartement à PARIS-20E
Appartement à PARIS-20E
Appartement à PARIS-20E
Appartement à PARIS-20E
Appartement à PARIS-20E
Appartement à PARIS-20E
Ce site est protégé par reCAPTCHA la Politique de confidentialité et les Conditions d’utilisation de Google s’appliquent.
Obtenir un prêt immobilier au meilleur taux ?

En poursuivant votre navigation sans modifier vos paramètres, vous acceptez l'utilisation de cookies susceptibles de réaliser des statistiques de visite. Cliquez ici pour plus d'informations