Bénéficiez des services de nos partenaires locaux soigneusement sélectionnés
pour vous accompagner dans votre parcours d'achat immobilier

Quartier basch (colombes) - 4 pièces à vendre avec grande terrasse

— Colombes 92700 —
490 000 €
80 m²
4 pièces
parkingbalcon/terrasseascenseuraccès handicapé

Nos partenaires locaux
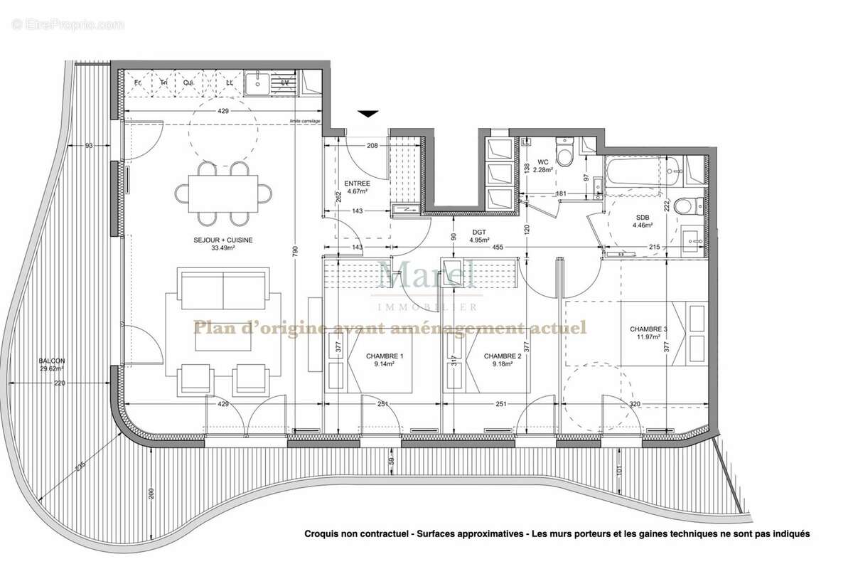
Exclusivité. Très bel appartement lumineux à proximité de La Défense, situé entre les arrêts du tram T2 Jacqueline Auriol et Victor Basch ; vous pourrez rejoindre le quartier des affaires en 10min et Saint Lazare moins de 30min. Au sein d'une belle copropriété sécurisée datant de fin 2019, ce bien de 80,19m² vous plaira pour sa grande terrasse de 29,5m², son agencement et la qualité des matériaux utilisés.

Il comprend un grand séjour avec cuisine ouverte, un bureau transformable en troisième chambre, deux autres chambres, une salle de douche avec WC, ainsi qu'un second WC avec un coin buanderie.

Deux emplacements de parking complètent ce bien.

Prestations Haut de Gamme. Cet appartement est aménagé et décoré avec des matériaux de qualité : cuisine meublée et équipée, dressings sur mesure, salle de douche entièrement rénovée, et WC suspendus.

Quelques mots sur l’immeuble. Christophe Rousselle, architecte plusieurs fois récompensé pour ses conceptions, a été choisi pour ce projet. L’agence d’architectes éponyme explique que « chaque étage est pensé en fonction de sa situation propre : orientation, voisinage et volumétrie des étages au-dessus et en-dessous ». En effet, les appartements sont répartis dans deux immeubles aux formes peu conventionnelles. Chaque étage a ainsi une forme et une taille différente, et les terrasses prennent la forme de courbes.

Sectorisation Scolaire. Pour vos enfants, vous serez dans le secteur de l'École Maternelle Anne Frank, de l'École Primaire Léon Bourgeois et du Collège Robert Paparemborde.

Les informations sur les risques auxquels ce bien est exposé sont disponibles sur le site Géorisques www.georisques.gouv.fr
Voir plus

Référence: 235
Barème des honoraires
DPE
A
B
C
D
E
F
G
GES
A
B
C
D
E
F
G

Prêt immobilier

Vous souhaitez connaître votre capacité d’emprunt et trouver le meilleur crédit immobilier ?
Réaliser une simulation gratuite

Appartement à COLOMBES
Appartement à COLOMBES
Appartement à COLOMBES
Appartement à COLOMBES
Appartement à COLOMBES
Appartement à COLOMBES
Appartement à COLOMBES
Appartement à COLOMBES
Appartement à COLOMBES
Appartement à COLOMBES
Appartement à COLOMBES
Appartement à COLOMBES
Appartement à COLOMBES
Ce site est protégé par reCAPTCHA la Politique de confidentialité et les Conditions d’utilisation de Google s’appliquent.
Obtenir un prêt immobilier au meilleur taux ?

En poursuivant votre navigation sans modifier vos paramètres, vous acceptez l'utilisation de cookies susceptibles de réaliser des statistiques de visite. Cliquez ici pour plus d'informations