Bénéficiez des services de nos partenaires locaux soigneusement sélectionnés
pour vous accompagner dans votre parcours d'achat immobilier

Haut de maison grasse 9 pièces 147 m² divisé en trois appartements sur 750 m² de jardin - ideal investisseur ou projet familial

— Grasse 06130 —
520 000 €
147 m² / 750 m²
9 pièces
parkingjardin

Nos partenaires locaux
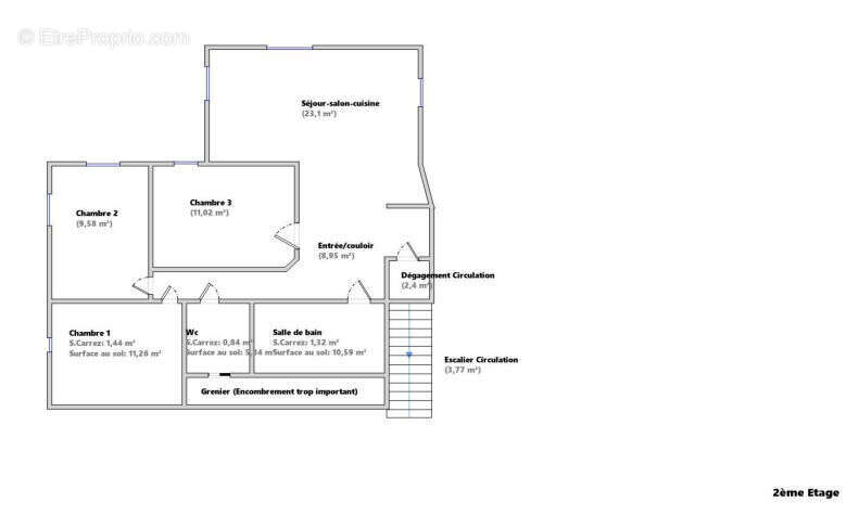
L'agence SIXIEME AVENUE l'immobilier par M6 vous propose a la vente dans le secteur recherché de Saint Mathieu à Grasse, un charmant haut de maison de style Bastide, comprenant trois appartements distincts. Dès l'entrée, vous accédez à deux logements indépendants : - Un 3 pièces lumineux de 55 m² avec cuisine ouverte sur séjour donnant sur terrasse, deux chambres, salle de bains et WC indépendant. - Un 2 pièces de 38 m² comprenant une cuisine ouverte sur séjour, une chambre et une salle de bains. A l'étage, un spacieux 4 pièces de 102 m² habitables (56,27 m² Carrez) propose une entrée, une cuisine ouverte sur un vaste séjour lumineux, trois chambres, une salle de bains et un WC indépendant. Vous serez séduits par le calme de l'environnement et son terrain plat de 750 m² joliment arboré d'oliviers et de palmiers. De nombreux stationnements viennent compléter ce bien. Idéal investisseurs en quête d'un rendement locatif attractif, ou parfait pour un projet familial. Coup de coeur assuré ! Les informations sur les risques auxquels ce bien est exposé sont disponibles sur le site Géorisques : www.georisques.gouv.fr GRASSE LES MEILLEURS AGENTS POUR VOUS TROUVEZ LE BON COIN OU SE LOGER A GRASSE, PEYMEINADE, MOUGINS. RSAC: 515108488 Copropriété de 2 lots - dont 2 lots habitation.(Pas de procédure en cours). Edith GALIANO (EI) Agent Commercial - Numéro RSAC : 515108488 - Grasse.
Voir plus

Référence: 5337
Bien en copropriété. Nombre de lots : 2.
Honoraires à la charge du vendeur.
Barème des honoraires
DPE
A
B
C
D
E
F
G
GES
A
B
C
D
E
F
G

Prêt immobilier

Vous souhaitez connaître votre capacité d’emprunt et trouver le meilleur crédit immobilier ?
Réaliser une simulation gratuite

Maison à GRASSE
Maison à GRASSE
Maison à GRASSE
Maison à GRASSE
Maison à GRASSE
Maison à GRASSE
Maison à GRASSE
Maison à GRASSE
Maison à GRASSE
Maison à GRASSE
Maison à GRASSE
Maison à GRASSE
Maison à GRASSE
Maison à GRASSE
Maison à GRASSE
Maison à GRASSE
Maison à GRASSE
Maison à GRASSE
Ce site est protégé par reCAPTCHA la Politique de confidentialité et les Conditions d’utilisation de Google s’appliquent.
Obtenir un prêt immobilier au meilleur taux ?

En poursuivant votre navigation sans modifier vos paramètres, vous acceptez l'utilisation de cookies susceptibles de réaliser des statistiques de visite. Cliquez ici pour plus d'informations