Maison 130m² à triel-sur-seine

— Triel-Sur-Seine 78510 —
449 000 €
130 m² / 600 m²
6 pièces
balcon/terrassejardin

Iad France - Matthieu Lagoutte vous propose : TRIEL-SUR-SEINE

Belle maison familiale idéale pour une famille nombreuse.
Elle présente tout le confort idéal pour une installation immédiate.
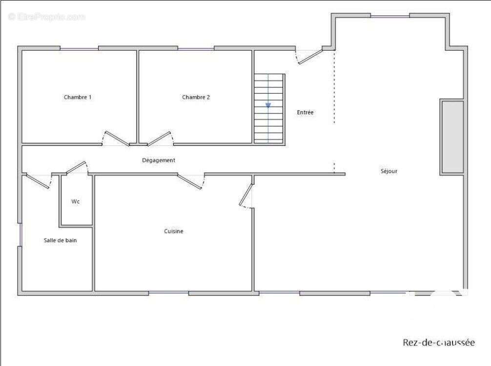
Au rez de chaussée, vous découvrez un salon avec une cheminée à foyer fermé, une salle à manger et une cuisine ouvrant sur une terrasse de 30 m², 2 chambres, une salle de bain et un WC.

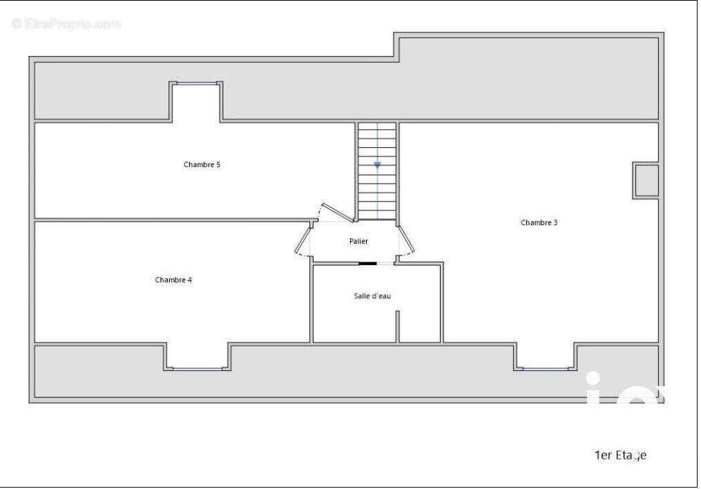
Au 1er étage, 3 chambres dont une de 17 m² et une salle d'eau.

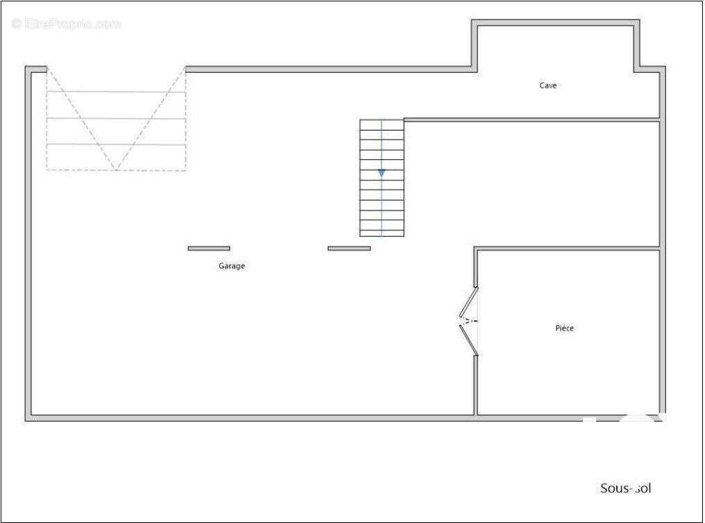
Un sous sol total de 70 m² carrelé en grande partie, permet de garer une voiture.
Vous trouverez également un point d'eau, de nombreux rangements fermés, une buanderie et une cave.

Un jardin paysagé complète ce bien. Il est équipé d'un arrosage automatique alimenté par une cuve de récupération d'eau de pluie.

SI vous recherchez une belle maison confortable où vous installer rapidement, n'hésitez pas à me contacter.


La presente annonce immobiliere vise 1 lot situé dans une copropriété de 2 lots au total et ne faisant l'objet d'aucune procédure en cours citée à l'article L. 721-1 du code de la construction et de l'habitation. Montant moyen mensuel de charges déclaré par le vendeur : 0¤ par mois (soit 0 ¤ annuel). Honoraires d'agence à la charge du vendeur.
Information d'affichage énergétique sur ce bien : classe ENERGIE D indice 246 et classe CLIMAT B indice 7. Les informations sur les risques auxquels ce bien est exposé, y compris l'obligation légale de débroussaillement, sont disponibles sur le site Géorisques : http://www.georisques.gouv.fr.
La présente annonce immobilière a été rédigée sous la responsabilité éditoriale de M Matthieu Lagoutte mandataire indépendant en immobilier (sans détention de fonds), agent commercial de la SAS I@D France immatriculé au RSAC de VERSAILLES sous le numéro 913834610, titulaire de la carte de démarchage immobilier pour le compte de la société I@D France SAS.
Informations LOI ALUR :
Soumis au régime de copropriété.
Nombre de lots : 2.
Honoraires charge vendeur. (gedeon_6727_31834642)
Voir plus

Référence: 1779532
Bien en copropriété. Nombre de lots : 2.
Honoraires à la charge du vendeur.
DPE
A
B
C
D
E
F
G
GES
A
B
C
D
E
F
G

Prêt immobilier

Vous souhaitez connaître votre capacité d’emprunt et trouver le meilleur crédit immobilier ?
Réaliser une simulation gratuite

Photo 1 - Maison à TRIEL-SUR-SEINE
Photo 1
Photo 2 - Maison à TRIEL-SUR-SEINE
Photo 2
Photo 3 - Maison à TRIEL-SUR-SEINE
Photo 3
Photo 4 - Maison à TRIEL-SUR-SEINE
Photo 4
Photo 5 - Maison à TRIEL-SUR-SEINE
Photo 5
Photo 6 - Maison à TRIEL-SUR-SEINE
Photo 6
Photo 7 - Maison à TRIEL-SUR-SEINE
Photo 7
Photo 8 - Maison à TRIEL-SUR-SEINE
Photo 8
Ce site est protégé par reCAPTCHA la Politique de confidentialité et les Conditions d’utilisation de Google s’appliquent.
Obtenir un prêt immobilier au meilleur taux ?

En poursuivant votre navigation sans modifier vos paramètres, vous acceptez l'utilisation de cookies susceptibles de réaliser des statistiques de visite. Cliquez ici pour plus d'informations