Bénéficiez des services de nos partenaires locaux soigneusement sélectionnés
pour vous accompagner dans votre parcours d'achat immobilier

Maison 111m² à jublains

— Jublains 53160 —
269 000 €
111 m² / 26 716 m²
5 pièces
jardin

Nos partenaires locaux
Iad France - Cathy Morenne vous propose : * JUBLAINS * MAISON 111 m² EN PLEINE CAMPAGNE * RÉNOVATION RÉCENTE * 2 CHAMBRES * 2 ANNEXES * PARCELLE 27 000 m² *

Bienvenue à Jublains, dans cette magnifique maison de campagne rénovée avec soin. Nichée au cOEur d'un vaste terrain d'environ 27 000 m², cette charmante propriété offre un cadre de vie paisible et bucolique, idéal pour les amoureux de la nature et de l'authenticité.

Dès l'entrée, vous serez séduits par l'atmosphère chaleureuse qui règne dans cette maison.
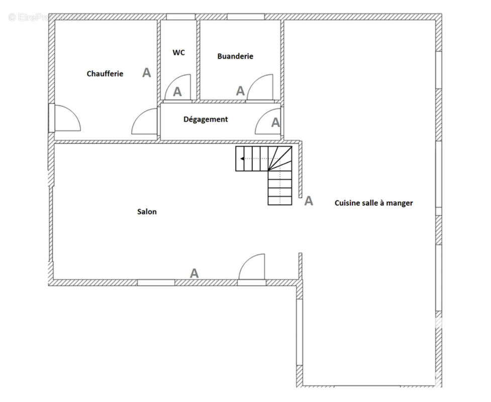
La pièce de vie de 67 m² se répartit sur 3 espaces ouverts : cuisine aménagée et équipée, séjour lumineux et salon cocooning.
La terrasse de 48 m² est l'endroit idéal pour profiter des beaux jours en admirant le vaste jardin arboré qui entoure la maison. Vous pourrez vous détendre au soleil, organiser des repas en extérieur ou simplement vous ressourcer en toute tranquillité.
Les expositions sud et est garantissent une belle luminosité tout au long de la journée, pour un bien-être absolu au sein de votre maison de campagne.
Une buanderie complète le rez-de-chaussée.
À l'étage, vous disposerez de 2 belles chambres, d'une salle d'eau et de toilettes séparées.

Vous êtes porteurs de projet, vous souhaitez pouvoir accueillir famille et amis. Une maisonnette de 60 m², (pièce de vie avec cuisine aménagée, 2 chambres, salle d'eau et WC), et un loft à finir de rénover répondront parfaitement à vos besoins.

À seulement quelques minutes des commodités et des centres d'intérêt, cette maison de campagne est le refuge idéal pour ceux qui recherchent calme et sérénité sans renoncer au confort et à la modernité. Une vraie pépite à découvrir sans tarder !

Honoraires d'agence à la charge du vendeur.
Information d'affichage énergétique sur ce bien : classe ENERGIE D indice 144 et classe CLIMAT D indice 33. Les informations sur les risques auxquels ce bien est exposé, y compris l'obligation légale de débroussaillement, sont disponibles sur le site Géorisques : http://www.georisques.gouv.fr.
La présente annonce immobilière a été rédigée sous la responsabilité éditoriale de Mme Cathy Morenne mandataire indépendant en immobilier (sans détention de fonds), agent commercial de la SAS I@D France immatriculé au RSAC de LAVAL sous le numéro 844755900, titulaire de la carte de démarchage immobilier pour le compte de la société I@D France SAS.
Informations LOI ALUR :
Honoraires charge vendeur. (gedeon_6727_31835390)
Voir plus

Référence: 1838356
Honoraires à la charge du vendeur.
DPE
A
B
C
D
E
F
G
GES
A
B
C
D
E
F
G

Prêt immobilier

Vous souhaitez connaître votre capacité d’emprunt et trouver le meilleur crédit immobilier ?
Réaliser une simulation gratuite

Photo 1 - Maison à JUBLAINS
Photo 1
Photo 2 - Maison à JUBLAINS
Photo 2
Photo 3 - Maison à JUBLAINS
Photo 3
Photo 4 - Maison à JUBLAINS
Photo 4
Photo 5 - Maison à JUBLAINS
Photo 5
Photo 6 - Maison à JUBLAINS
Photo 6
Photo 7 - Maison à JUBLAINS
Photo 7
Photo 8 - Maison à JUBLAINS
Photo 8
Photo 9 - Maison à JUBLAINS
Photo 9
Ce site est protégé par reCAPTCHA la Politique de confidentialité et les Conditions d’utilisation de Google s’appliquent.
Obtenir un prêt immobilier au meilleur taux ?

En poursuivant votre navigation sans modifier vos paramètres, vous acceptez l'utilisation de cookies susceptibles de réaliser des statistiques de visite. Cliquez ici pour plus d'informations