Bénéficiez des services de nos partenaires locaux soigneusement sélectionnés
pour vous accompagner dans votre parcours d'achat immobilier

Voir tous les partenaires locaux

Splendide maison avec 3 chambres, potentiellement 4 - charme bordelais - bordeaux, rue de pessac

— Bordeaux 33000 —
487 900 €
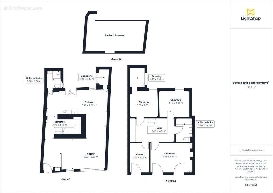
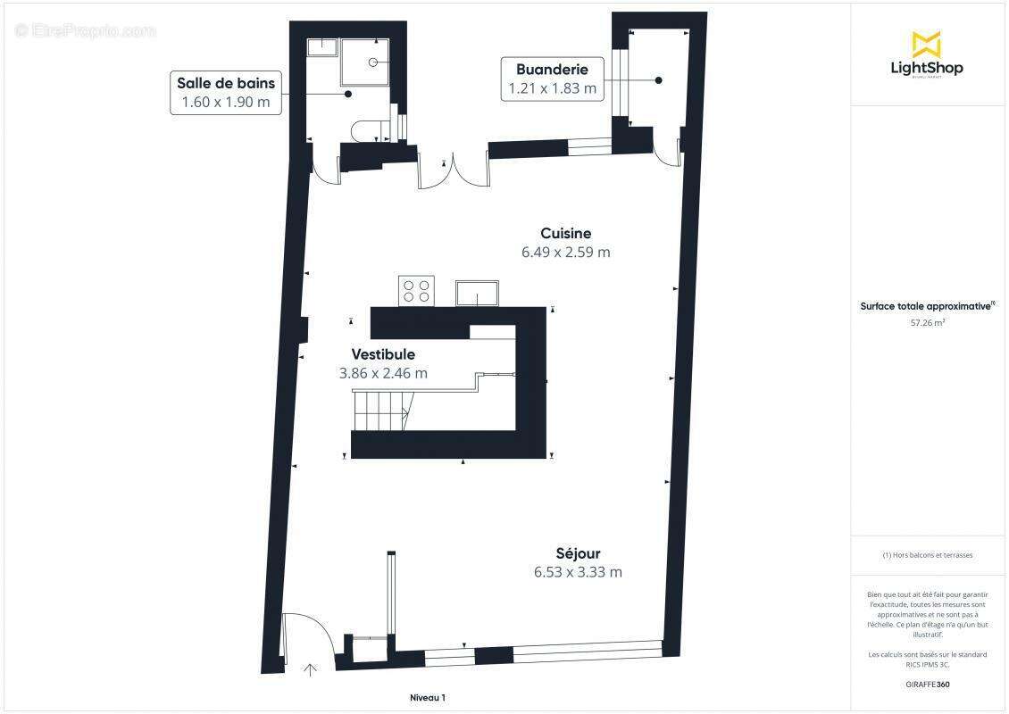
107 m² / 62 m²
5 pièces
balcon/terrasse

Nos partenaires locaux
Hosman vous propose cette charmante maison de 107 m² habitables à Bordeaux, située Rue de Pessac. Idéale pour une famille, elle offre trois chambres et un bureau pouvant être transformé en quatrième chambre.
Un petit balcon agrémente chaque chambre, exposée sud-est pour une belle luminosité naturelle.

Planifiez facilement votre visite en choisissant le créneau qui vous convient depuis le site d'Hosman.

Le rez-de-chaussée comprend un séjour spacieux et traversant, une cuisine ouverte et équipée, une buanderie fonctionnelle, ainsi qu'une salle d'eau avec toilettes. Accédez à une belle terrasse de 10 m² pour profiter des journées ensoleillées.

À l'étage, vous trouverez trois chambres confortables, dont une très spacieuse avec un dressing. Profitez d'une deuxième salle de bains avec toilettes à cet étage.
Vous trouverez également un bureau, pouvant servir de chambre d'appoint.

Cette maison bénéficie d'un sous-sol avec une cave, idéale pour le rangement et abritant la chaudière. Le système de chauffage et d'eau chaude est au gaz, assurant confort et économie d'énergie.

La taxe foncière annuelle s'élève à 2 278 €.

Idéalement située, cette maison est proche de toutes les commodités du quartier de Saint-Augustin. À deux pas de l'arrêt de tram Saint-Genès (ligne B) et des bus desservant le secteur. Écoles, commerces, restaurants et espaces verts à proximité, offrant à ses nouveaux propriétaires un cadre de vie paisible et agréable.

Hosman s'efforce de réinventer l'agence immobilière en offrant un service innovant et transparent aux acheteurs et aux vendeurs. Nos frais d'agence sont de 13 125 euros fixes à la charge du vendeur.

Si vous êtes un professionnel de l'immobilier (agent, mandataire ou chasseur immobilier), sachez que toutes les annonces Hosman sont ouvertes à la collaboration. N'hésitez pas à nous contacter pour en discuter.
Voir plus

Référence: 44dc22
Honoraires à la charge du vendeur.
DPE
A
B
C
D
E
F
G
GES
A
B
C
D
E
F
G

Prêt immobilier

Vous souhaitez connaître votre capacité d’emprunt et trouver le meilleur crédit immobilier ?
Réaliser une simulation gratuite

Maison à BORDEAUX
Maison à BORDEAUX
Maison à BORDEAUX
Maison à BORDEAUX
Maison à BORDEAUX
Maison à BORDEAUX
Maison à BORDEAUX
Maison à BORDEAUX
Maison à BORDEAUX
Maison à BORDEAUX
Maison à BORDEAUX
Maison à BORDEAUX
Maison à BORDEAUX
Maison à BORDEAUX
Maison à BORDEAUX
Maison à BORDEAUX
Maison à BORDEAUX
Maison à BORDEAUX
Maison à BORDEAUX
Maison à BORDEAUX
Ce site est protégé par reCAPTCHA la Politique de confidentialité et les Conditions d’utilisation de Google s’appliquent.
Obtenir un prêt immobilier au meilleur taux ?

En poursuivant votre navigation sans modifier vos paramètres, vous acceptez l'utilisation de cookies susceptibles de réaliser des statistiques de visite. Cliquez ici pour plus d'informations