A vendre exceptionnel en exclusivité, grand appartement t4 - t5 à tassin la demi lune limite point du jour

— Lyon-5e 69005 —
430 000 €
113 m²
5 pièces

Un écrin lumineux aux portes de Lyon, entre élégance et sérénité - appartement traversant - 2 balcons

A Tassin-la-Demi-Lune, Rue de Boyer, à la lisière du prestigieux 5ème arrondissement de Lyon (quartier Point du Jour -Minimes), découvrez un appartement d'exception de 113 m2, entièrement rénové, niché dans une résidence elle-même fraîchement réhabilitée. Ici, tout respire la qualité et le confort moderne, dans un environnement verdoyant et recherché.

A seulement 5 kms de la Presqu'île et à 12 minutes de la place Bellecour par le Tunnel de Fourvière, vous profitez d'une accessibilité optimale : lignes de bus rapides (C21 et C24 vers Gorge de Loup en 10 min, bus 14 vers la gare d'Oullins en 30 min, et le bus 46 au pied de la résidence vers Perrache en 25 min).

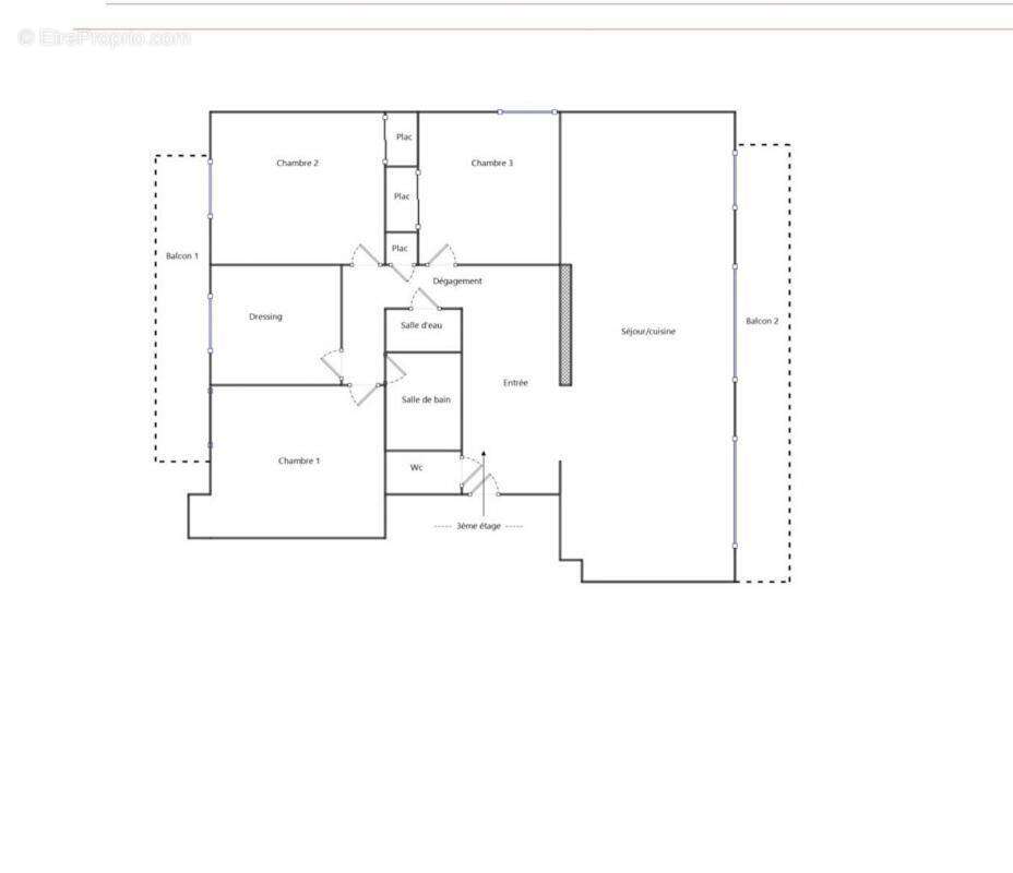
Dès l'entrée, les volumes généreux vous séduiront : 113 m² de lumière et d'espace, une vaste pièce de vie de près de 40 m² intégrant un séjour convivial, une salle à manger élégante et une cuisine haut de gamme installée en 2022 (marque de fabrication Française) pensée pour les amoureux de gastronomie et de beaux matériaux.

L'espace nuit, intelligemment séparé, offre trois belles chambres dont deux avec placards intégrés, un dressing indépendant modulable (en bureau, chambre bébé ou atelier créatif), ainsi qu'une salle de bains et une salle d'eau pour un confort quotidien sans compromis.

Les atouts ne s'arrêtent pas là : une grande cave et 2 terrasses dont 1 plein ouest offrant une vue panoramique sur les Monts du Lyonnais. Imaginez vos fins de journée baignées par la lumière dorée du coucher de soleil, un verre à la main, face à ce paysage apaisant.
1 Garage en sus : 20 000 euros (non dissociable de l'appartement).
Résidence sécurisée avec ascenseur, copropriété bien entretenue et cadre de vie privilégié : ce bien rare conjugue espace, modernité et emplacement stratégique aux portes de Lyon.

Un lieu où l'on s'installe pour longtemps et où chaque journée a un parfum de vacances.

Chauffage collectif au gaz
Charges de copro : Environ 480 euros/mois incluant eau et chauffage
Parkings visiteurs
Etat des Risques : parcelle en zone NON inondable
Copropriétés de 174 lots dont 122 lots d'habitation ou bureaux
Aucune procédure en cours.

PRIX APPARTEMENT : 430 000 euros (+20 000 euros en sus de garage) Honoraires charge vendeur

Pour toute visite ou demande d'information ; Votre conseillère Catherine PELLAUD

DPE : D - GES : D
Montant estimé des dépenses annuelles d'énergie pour un usage standard entre 1380 euros et 1910 euros indexées aux années 2021, 2022 et 2023
Pour visiter et vous accompagner dans votre projet, contactez Catherine PELLAUD, au [Coordonnées masquées] ou, par courriel à [Coordonnées masquées].
Selon l'article L.561.5 du Code Monétaire et Financier, pour l'organisation de la visite, la présentation d'une pièce d'identité vous sera demandée.
Cette présente annonce a été rédigée sous la responsabilité éditoriale de Catherine PELLAUD agissant en qualité de conseiller immobilier indépendant sous portage salarial auprès de SAS PROPRIETES PRIVEES, au capital de 44 920 euros, ZAC LE CHÊNE FERRÉ - 44 ALLÉE DES CINQ CONTINENTS 44120 VERTOU; SIRET 487 624 777 00040, RCS Nantes. Carte Professionnelle Transactions sur immeubles et fonds de commerce (T) et Gestion immobilière (G) n° CPI 44[Coordonnées masquées]10 388 délivrée par la CCI Nantes - Saint Nazaire. Compte séquestre n°3[Coordonnées masquées] BPA SAINT-SEBASTIEN-SUR-LOIRE (44230). Garantie GALIAN-SMABTP - 89 rue de la Boétie, 75008 Paris - n°28137 J pour 2 000 000 euros pour T et 120 000 euros pour G. Assurance responsabilité civile professionnelle par GALIAN-SMABTP n° de police 28137.J

Mandat réf : 418713 - Le professionnel garantit et sécurise votre projet immobilier.

Copropriété de 174 lots - dont 122 lots habitation. ().

Charges annuelles : 6000 euros.
Les informations sur les risques auxquels ce bien est exposé sont disponibles sur le site Géorisques : www. georisques. gouv. fr
Voir plus

Référence: 418713CPEL
Bien en copropriété. Nombre de lots : 174. Charges de copropriété : 500 €.
Honoraires à la charge du vendeur.
DPE
A
B
C
D
E
F
G
GES
A
B
C
D
E
F
G

Prêt immobilier

Vous souhaitez connaître votre capacité d’emprunt et trouver le meilleur crédit immobilier ?
Réaliser une simulation gratuite

Appartement à LYON-5E
Appartement à LYON-5E
Appartement à LYON-5E
Appartement à LYON-5E
Appartement à LYON-5E
Appartement à LYON-5E
Appartement à LYON-5E
Appartement à LYON-5E
Appartement à LYON-5E
Appartement à LYON-5E
Appartement à LYON-5E
Appartement à LYON-5E
Appartement à LYON-5E
Ce site est protégé par reCAPTCHA la Politique de confidentialité et les Conditions d’utilisation de Google s’appliquent.
Obtenir un prêt immobilier au meilleur taux ?

En poursuivant votre navigation sans modifier vos paramètres, vous acceptez l'utilisation de cookies susceptibles de réaliser des statistiques de visite. Cliquez ici pour plus d'informations