Maison 141m² à louveciennes

— Louveciennes 78430 —
620 000 €
141 m² / 470 m²
6 pièces
parkingjardin

78430 - LOUVECIENNES - MAISON - 6 PIECES - 4 CHAMBRES - 161 M2 au sol - PROXIMITE COMMERCES et TRANSPORT - QUARTIER VILLAGE

Efficity, l'Agence immobilière qui évalue votre bien en ligne, vous présente cette maison de 161 m² au sol, située sur un terrain verdoyant d'environ 470 m². Nichée dans le quartier prisé du Village, vous profiterez d'une proximité immédiate avec les commerces et les transports en commun (15 minutes de la gare Ligne L et 3 minutes du bus Express 1 "St Germain - Versailles") .
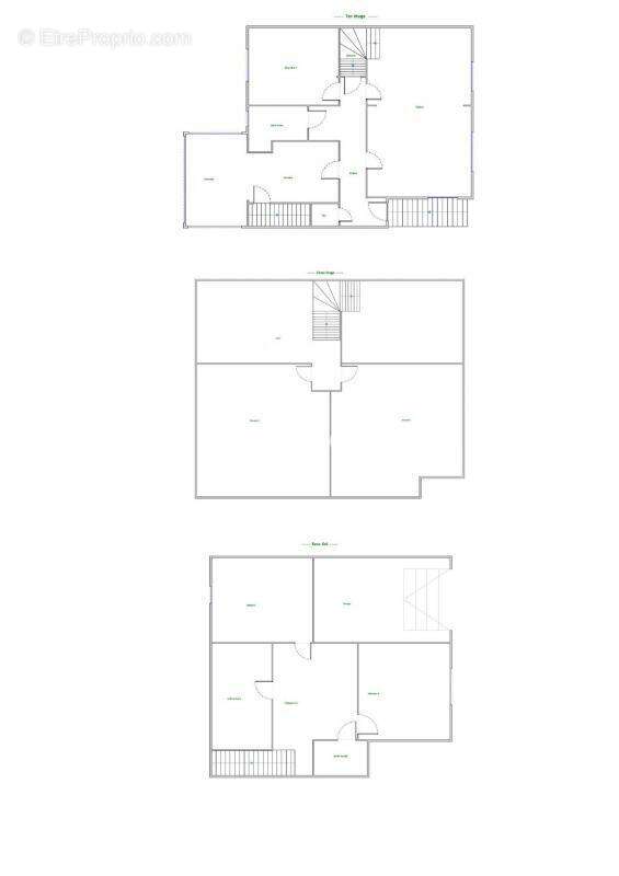
Idéale pour une famille, cette maison sur trois niveaux offre :
Au rez-de-chaussée : Une entrée desservant un séjour lumineux de 26 m² orienté sud-est, une cuisine séparée et aménagée de 10 m², prolongée par une véranda de 9 m² avec accès direct au jardin. Vous y trouverez également une chambre de 11 m², une salle d'eau et un WC séparé.
A l'étage : Deux belles chambres (12 et 11 m²) et un espace bureau sur la mezzanine.
Au sous-sol semi-enterré : Un espace de vie supplémentaire avec une chambre de 15 m², une salle de bain avec WC, un bureau de 11 m², un garde-manger et un garage sur une superficie totale de 56 m².
L'extérieur, principalement à l'arrière de la maison, dispose d'un jardin clos et arboré exposé à l'ouest.
Cette maison a été rénovée avec une Isolation Thermique par l'Extérieur (ITE) et est équipée de doubles vitrages pour un confort optimal. De plus, un récupérateur d'eau a été installé pour une gestion écologique des ressources.
N'hésitez pas à me contacter pour organiser votre visite!
Les informations sur les risques auxquels ce bien est exposé sont disponibles sur le site Georisque : georisques. gouv. fr
Isabelle Naudin - EI - est Agent Commercial mandataire en immobilier, immatriculé au Registre Spécial des Agents Commerciaux du Tribunal de Commerce de Versailles sous le n°431142207.
Siège social du mandant : effiCity, 48 avenue de Villiers - 75017 PARIS - Société par Actions Simplifiée, société au capital de 132 373,05 euros, immatriculée au RCS Paris 497 617 746 et titulaire de la Carte professionnelle CPI 75[Coordonnées masquées]02 025 - CCI Paris IDF - Caisse de Garantie : GALIAN Assurances 89 rue de la Boétie 75008 Paris
Voir plus

Référence: 193288
Honoraires d'agence de 3.81% à la charge de l'acquéreur
Barème des honoraires
DPE
A
B
C
D
E
F
G
GES
A
B
C
D
E
F
G

Prêt immobilier

Vous souhaitez connaître votre capacité d’emprunt et trouver le meilleur crédit immobilier ?
Réaliser une simulation gratuite

Maison à LOUVECIENNES
Maison à LOUVECIENNES
Maison à LOUVECIENNES
Maison à LOUVECIENNES
Maison à LOUVECIENNES
Maison à LOUVECIENNES
Maison à LOUVECIENNES
Maison à LOUVECIENNES
Maison à LOUVECIENNES
Maison à LOUVECIENNES
Maison à LOUVECIENNES
Maison à LOUVECIENNES
Maison à LOUVECIENNES
Maison à LOUVECIENNES
Maison à LOUVECIENNES
Maison à LOUVECIENNES
Maison à LOUVECIENNES
Ce site est protégé par reCAPTCHA la Politique de confidentialité et les Conditions d’utilisation de Google s’appliquent.
Obtenir un prêt immobilier au meilleur taux ?

En poursuivant votre navigation sans modifier vos paramètres, vous acceptez l'utilisation de cookies susceptibles de réaliser des statistiques de visite. Cliquez ici pour plus d'informations