Bénéficiez des services de nos partenaires locaux soigneusement sélectionnés
pour vous accompagner dans votre parcours d'achat immobilier

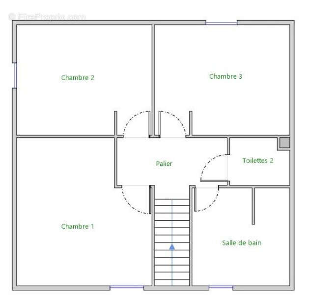
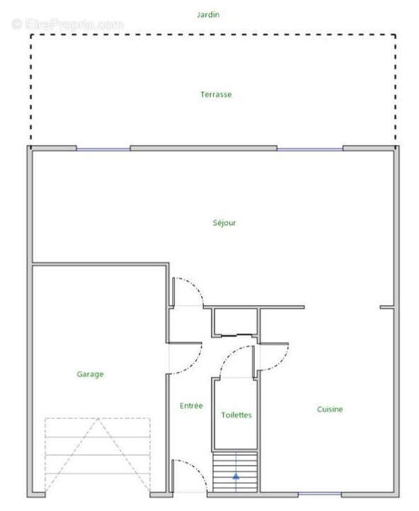
Nantes breil procé - maison 3 chambres 94m2 + garage

— Nantes 44100 —
336 000 €
94 m² / 160 m²
6 pièces
parkingbalcon/terrassejardin

Nos partenaires locaux
NANTES BREIL PROCÉ - Maison 3 chambres Garage
Julien Champalaune vous propose en exclusivité :
Maison familiale comprenant 3 belles chambres, 1 salle d'eau avec douche et baignoire, 2 WC, un pièce de vie avec cuisine semi ouverte neuve et équipée offrant une pièce à vivre de 38m2, orientée plein sud sur la terrasse de 30m2 et le jardin arboré.
Située dans une impasse et parfaitement au calme, cette maison a reçu des rénoavtons récentes : cuisine, peintures des murs et plafonds, sols rdc et étage, salle de bains ont été entièrement refaits dans les 3 dernières années.
Le garage fermé et la place de parking privative sont complétés par des parkings devant et à coté de la maison.
A deux pas des écoles et transports, cette charmante maison offre un cadre de vie idéal à une famille active, au coeur de la ville et parfaitement au calme.
Posez vos valises.
Pour vous accompagner dans votre projet, contactez Julien Champalaune au 07 - 82 - 15 - 61 - 17.
Copropriété de 39 lots individuels, charges annuelle de l'ASL 300€, taxe foncière 1500€
Prix du bien 336000€TTC FAI, soit 320000€ net vendeur, honoraires charge acquéreur 5% soit 16000€TTC
Voir plus

Référence: 292
Bien en copropriété. Nombre de lots : 1. Charges de copropriété : 300 €.
Honoraires d'agence de 5% à la charge de l'acquéreur
Barème des honoraires
DPE
A
B
C
D
E
F
G
GES
A
B
C
D
E
F
G

Prêt immobilier

Vous souhaitez connaître votre capacité d’emprunt et trouver le meilleur crédit immobilier ?
Réaliser une simulation gratuite

Maison à NANTES
Maison à NANTES
Maison à NANTES
Maison à NANTES
Maison à NANTES
Maison à NANTES
Maison à NANTES
Maison à NANTES
Maison à NANTES
Maison à NANTES
Maison à NANTES
Maison à NANTES
Ce site est protégé par reCAPTCHA la Politique de confidentialité et les Conditions d’utilisation de Google s’appliquent.
Obtenir un prêt immobilier au meilleur taux ?

En poursuivant votre navigation sans modifier vos paramètres, vous acceptez l'utilisation de cookies susceptibles de réaliser des statistiques de visite. Cliquez ici pour plus d'informations