Bénéficiez des services de nos partenaires locaux soigneusement sélectionnés
pour vous accompagner dans votre parcours d'achat immobilier

Appartement rénové au calme dans hameau a 5mn de porto-vecchio

— Porto-Vecchio 20137 —
349 000 €
75 m²
3 pièces
parkingbalcon/terrasse

Nos partenaires locaux
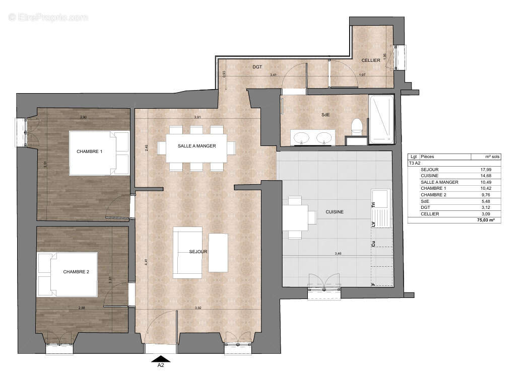
CASA CHA Immobilier® partenaire du réseau Interkab Porto-Vecchio vous propose en EXCLUSIVITÉ à 5 minutes de Porto-Vecchio un appartement T3 entièrement rénové d'une superficie de 75m2 situé au rez de chaussée d’une maison de village, vendu avec une place de parking privatif.

Cet appartement offre une pièce de vie lumineuse, une cuisine indépendante et fonctionnelle, deux chambres confortables ainsi qu’une terrasse.

Les informations sur les risques auxquels ce bien est exposé sont disponibles sur le site Géorisques: https//www.georisques.gouv.fr

Agence immobilière immatriculée au RCS d'Ajaccio Siren 949401459 Carte T No20[Coordonnées masquées]00007

CASA CHA Immobilier®, a partner of the Interkab Porto-Vecchio network, offers you EXCLUSIVELY, a fully renovated 807ft2 two-bedroom apartment located on the ground floor of a village house, just 5 minutes from Porto-Vecchio. It comes with a private parking space.

This apartment offers a bright living room, a separate and functional kitchen, two comfortable bedrooms, and a terrace.

Information on the risks to which this property is exposed is available on the Géorisques website: https://www.georisques.gouv.fr

Real estate agency registered with the Ajaccio Trade and Companies Register (RCS) SIREN 949401459 T-card No. 20[Coordonnées masquées]00007 CASA CHA Immobilier® Porto-Vecchio à votre service
Voir plus

Référence: 72
Honoraires à la charge du vendeur.
Barème des honoraires
DPE
A
B
C
D
E
F
G
GES
A
B
C
D
E
F
G

Prêt immobilier

Vous souhaitez connaître votre capacité d’emprunt et trouver le meilleur crédit immobilier ?
Réaliser une simulation gratuite

Appartement à PORTO-VECCHIO
Appartement à PORTO-VECCHIO
Appartement à PORTO-VECCHIO
Appartement à PORTO-VECCHIO
Appartement à PORTO-VECCHIO
Appartement à PORTO-VECCHIO
Appartement à PORTO-VECCHIO
Appartement à PORTO-VECCHIO
Appartement à PORTO-VECCHIO
Appartement à PORTO-VECCHIO
Appartement à PORTO-VECCHIO
Appartement à PORTO-VECCHIO
Appartement à PORTO-VECCHIO
Appartement à PORTO-VECCHIO
Ce site est protégé par reCAPTCHA la Politique de confidentialité et les Conditions d’utilisation de Google s’appliquent.
Obtenir un prêt immobilier au meilleur taux ?

En poursuivant votre navigation sans modifier vos paramètres, vous acceptez l'utilisation de cookies susceptibles de réaliser des statistiques de visite. Cliquez ici pour plus d'informations