Bénéficiez des services de nos partenaires locaux soigneusement sélectionnés
pour vous accompagner dans votre parcours d'achat immobilier

Appartement 54m² à marseille-8e

— Marseille-8e 13008 —
249 000 €
54 m²
3 pièces
ascenseur

Nos partenaires locaux
' LITTLE PARADISE '

8ÈME - Périer / Paradis

Type 3 de 54m² + Cave

À proximité de nombreux commerces et commodités du quotidien, axes autoroutiers,
transports en commun et établissements scolaires.


Au 1er étage avec ascenseur d'un bel immeuble Art Déco ,
The Agency vous propose en exclusivité ce type 3 de 54m² refait avec goût.


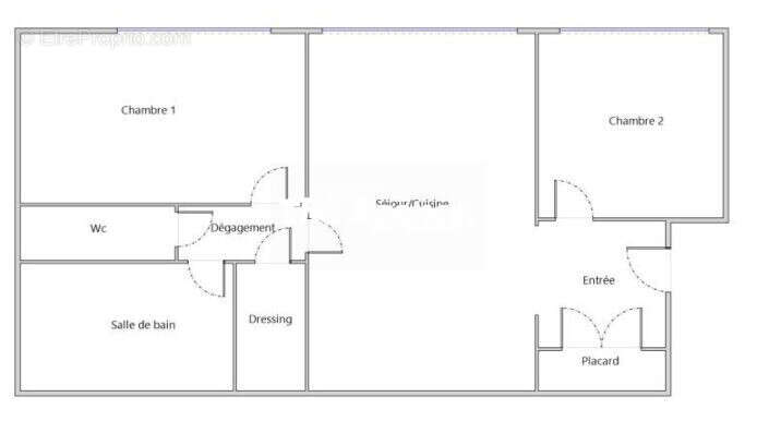
Il se compose de la manière suivante :


Une entrée avec placard de rangement, un séjour avec cuisine américaine, meublée,
deux chambres avec placards de rangement, un dressing, une salle d'eau avec coin buanderie et un WC indépendant.


Le bien est équipés d'huisseries en alu double vitrage et de volets roulants électriques,
tableau électrique aux normes et fibre optique.

Une cave de 2,45m² en sous-sol.

Charges : 150,00€ /mois
(Comprenant eau froide, entretien des parties communes, ascenseur, assurances copropriété et honoraires syndic)
Taxe foncière : 1 850,00€ /an

'The Agency, La Révolution immobilière...'


Honoraires inclus de 3.75% TTC à la charge de l'acquéreur. Prix hors honoraires 240 000 €. Dans une copropriété de 40 lots. Quote-part moyenne du budget prévisionnel 1 800 €/an. Aucune procédure n'est en cours. Classe énergie D, Classe climat D Montant estimé des dépenses annuelles d'énergie pour un usage standard : entre 980.00 € et 1370.00 € sur les années 2021, 2022 et 2023 (abonnements compris). Les informations sur les risques auxquels ce bien est exposé sont disponibles sur le site Géorisques : georisques.gouv.fr.

Votre conseiller The Agency : Meriem CORNET
Agent commercial (Entreprise individuelle)
Voir plus

Référence: VA3378-THEAGENCY
Bien en copropriété. Nombre de lots : 40. Charges de copropriété : 1800 €.
Honoraires d'agence de 3.75% à la charge de l'acquéreur
Barème des honoraires
DPE
A
B
C
D
E
F
G
GES
A
B
C
D
E
F
G

Prêt immobilier

Vous souhaitez connaître votre capacité d’emprunt et trouver le meilleur crédit immobilier ?
Réaliser une simulation gratuite

Appartement à MARSEILLE-8E
Appartement à MARSEILLE-8E
Appartement à MARSEILLE-8E
Appartement à MARSEILLE-8E
Appartement à MARSEILLE-8E
Appartement à MARSEILLE-8E
Ce site est protégé par reCAPTCHA la Politique de confidentialité et les Conditions d’utilisation de Google s’appliquent.
Obtenir un prêt immobilier au meilleur taux ?

En poursuivant votre navigation sans modifier vos paramètres, vous acceptez l'utilisation de cookies susceptibles de réaliser des statistiques de visite. Cliquez ici pour plus d'informations