Terrain 500 m2 viabilisé libre constructeur

— Cellieu 42320 —
115 000 €
500 m²
jardin

Sur la trés jolie et recherchée commune de CELLIEU
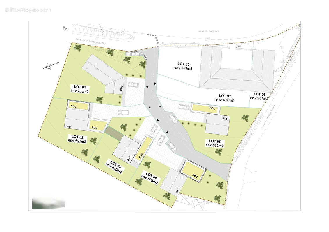
LOT 2 : Belle opportunité à saisir dans ce nouveau et petit lotissement avec ce terrain viabilisé de 500 m2.
Plusieurs lots disponible de 500 M2 à 571 M2 : Prix de 115 000 euros à 130 000 euros.
Plans et descriptif à disposition.
Accompagnement possible avec Maitre d'oeuvre ou constructeurs partenaires.
Les informations sur les risques auxquels ce bien est exposé sont disponibles sur le site Géorisques : www.georisques.gouv.fr
Voir plus

Référence: 142
Honoraires à la charge du vendeur.
Barème des honoraires

Prêt immobilier

Vous souhaitez connaître votre capacité d’emprunt et trouver le meilleur crédit immobilier ?
Réaliser une simulation gratuite

Terrain à CELLIEU
Terrain à CELLIEU
Terrain à CELLIEU
Ce site est protégé par reCAPTCHA la Politique de confidentialité et les Conditions d’utilisation de Google s’appliquent.
Obtenir un prêt immobilier au meilleur taux ?

En poursuivant votre navigation sans modifier vos paramètres, vous acceptez l'utilisation de cookies susceptibles de réaliser des statistiques de visite. Cliquez ici pour plus d'informations