Maison 135m² à aigne

— Aigne 34210 —
275 000 €
135 m² / 1 611 m²
7 pièces
parkingbalcon/terrassejardinpiscine

Villa indépendante (135 m²) avec vue dégagée, 3 chambres, 3 salles d'eau, climatisation, piscine, garage, abri voiture et jardin (1611 m²) à Aigne (34210 - Hérault)

Cette villa (anno 1993) avec jardin ensoleillé et plusieurs terrasses offre une belle vue dégagée. Située à la périphérie du village d'Aigne. Le grand terrain, à l'arrière du jardin avec des oliviers, offre encore diverses possibilités d'extension et de construction supplémentaire. La maison est en bon état.

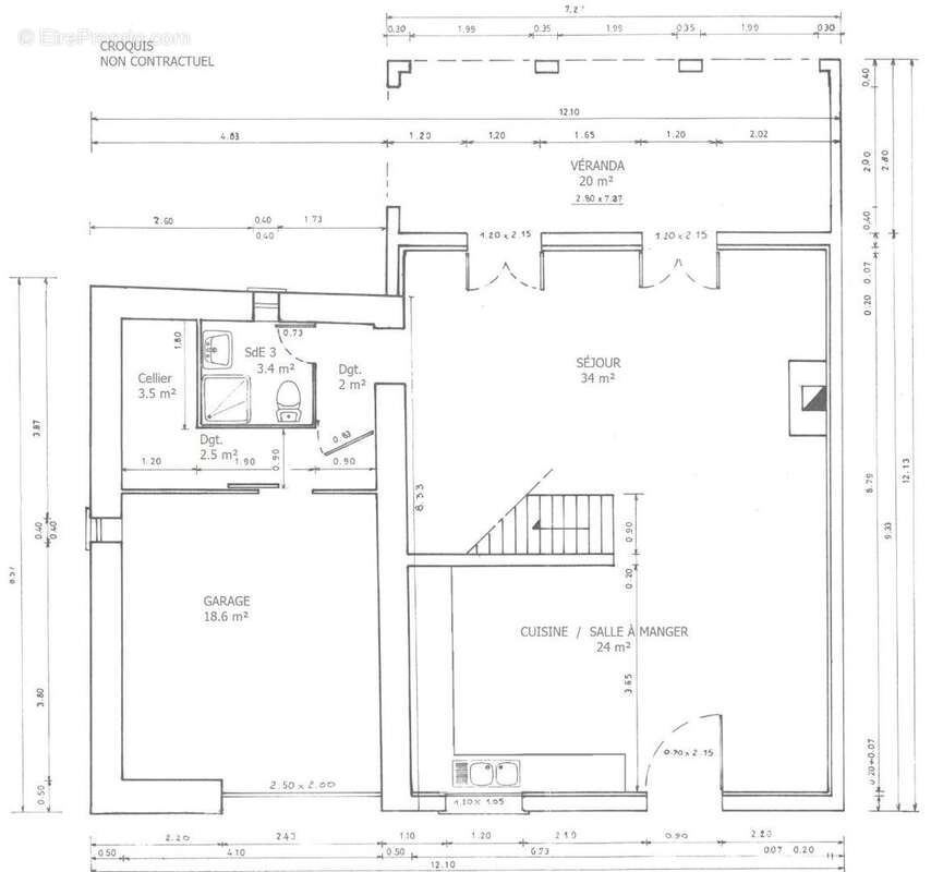
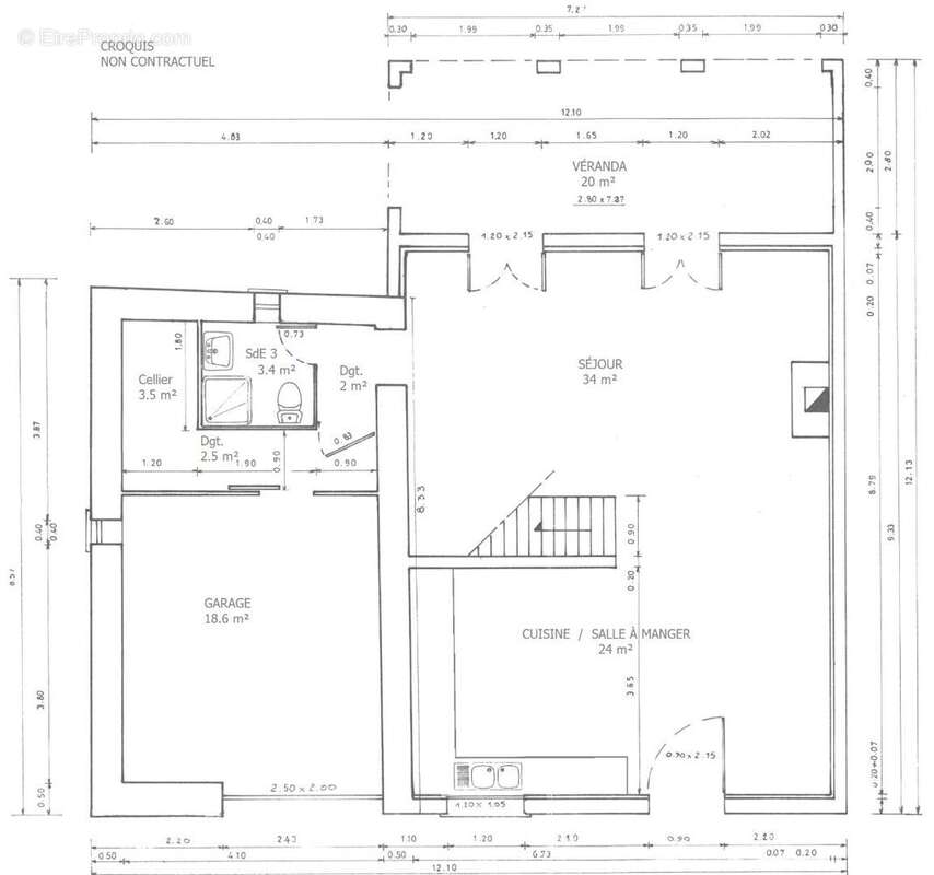
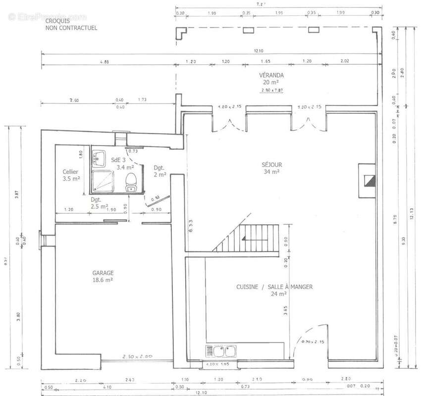
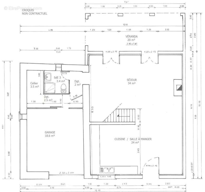
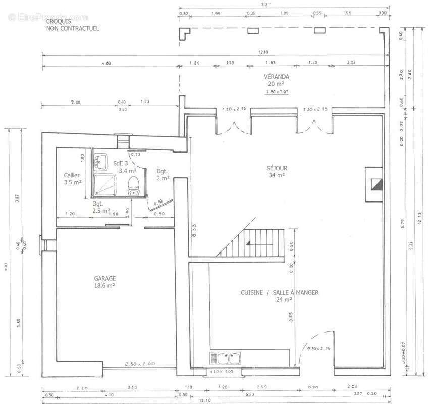
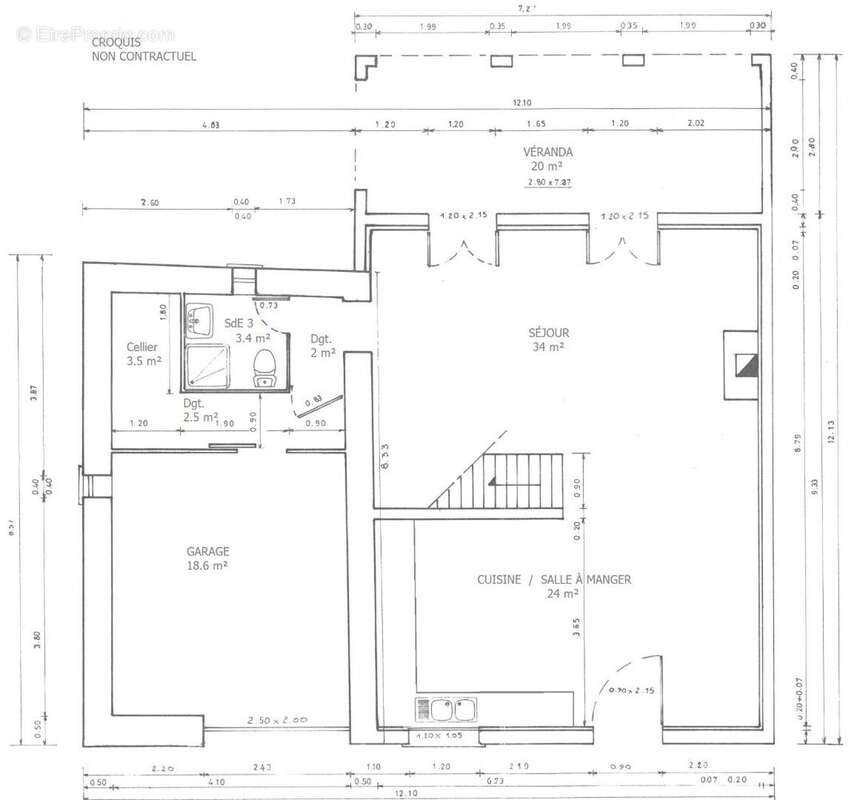
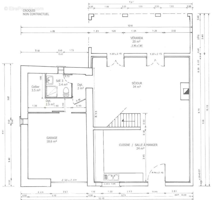
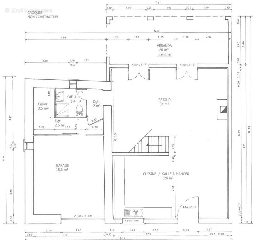
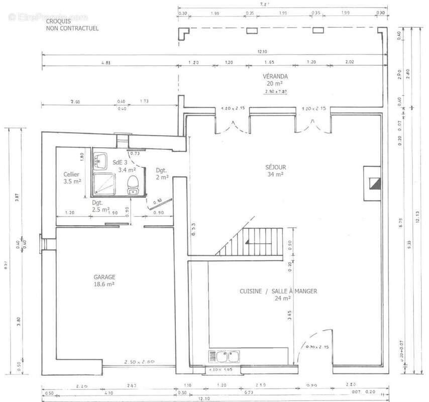
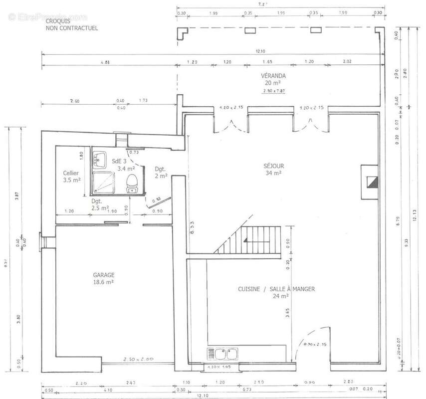
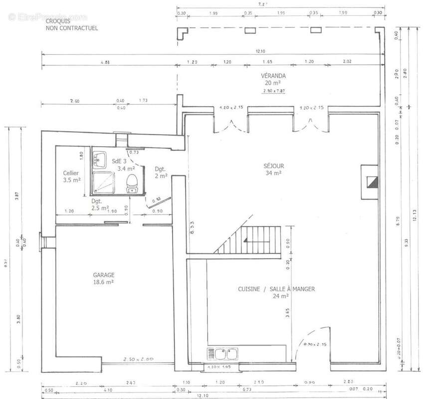
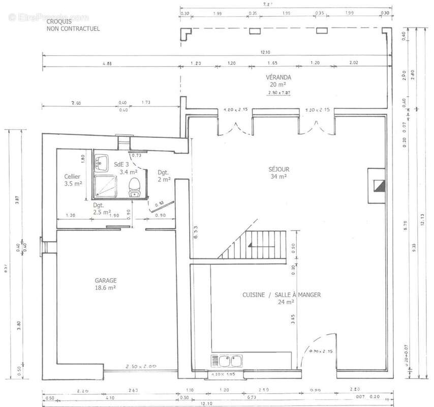
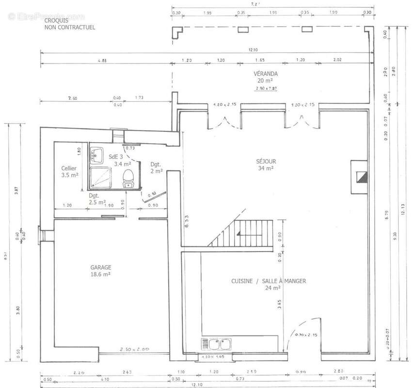
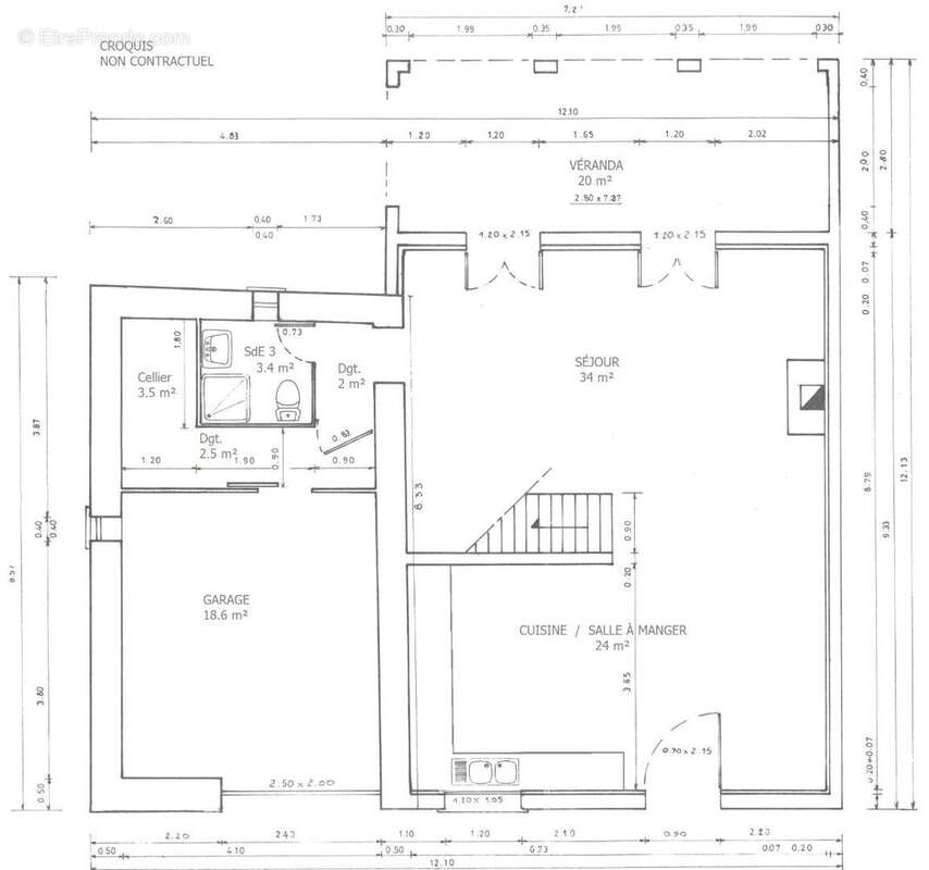
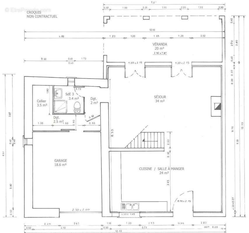
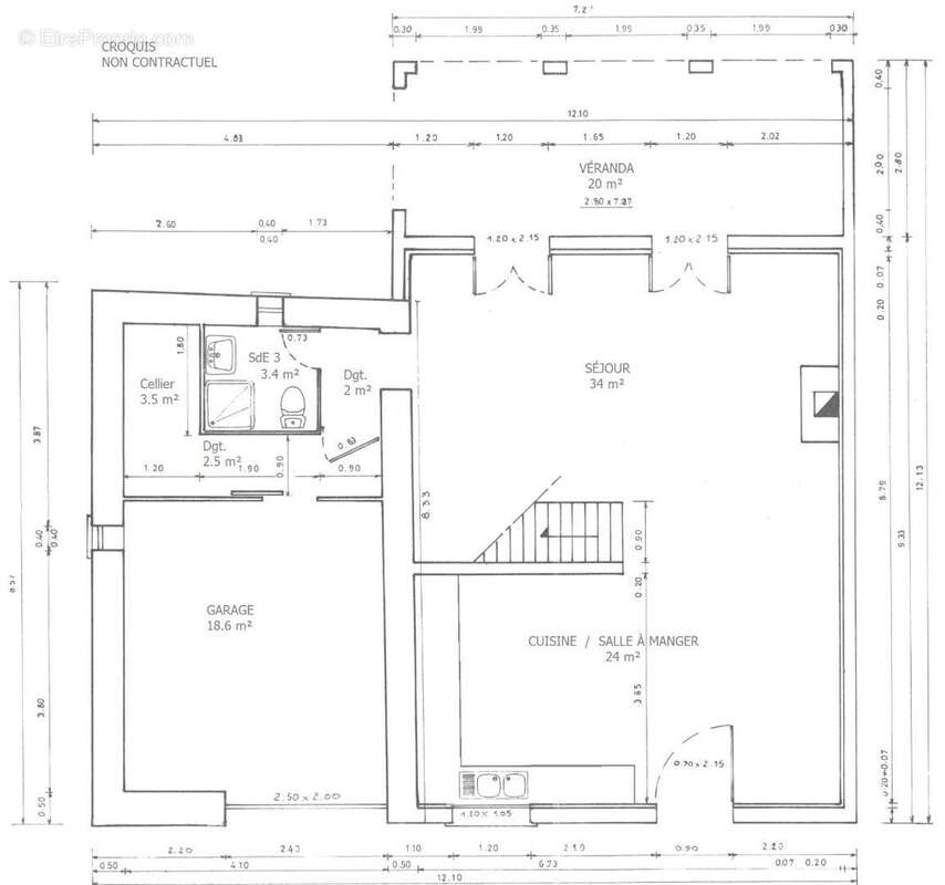
Rez-de-chaussée :
L'entrée donne directement sur la salle à manger et la cuisine ouverte (24 m²). La cuisine est équipée d'une cuisinière à gaz indépendante à cinq feux en acier inoxydable avec four et hotte aspirante, d'un réfrigérateur, d'un réfrigérateur à vin, d'un lave-vaisselle et d'un four à micro-ondes combiné.
Vient ensuite le salon (34 m²) avec son haut plafond à poutres apparentes et son poêle à bois chaleureux. Un escalier en bois mène à la mezzanine et deux doubles portes-fenêtres donnent sur la véranda (20 m²) avec des baies vitrées coulissantes.
Un petit couloir ouvert (2 m²) mène à la salle de bains avec douche, lavabo et toilettes (3.4 m²) et à un deuxième passage (2.5 m²), au garage (18.6 m²) et à l'arrière-cuisine (3.5 m²) avec lave-linge, congélateurs, chaudière à gaz pour le chauffage central et le chauffage au sol de la cuisine, de la salle à manger et du salon, et chauffe-eau.

Étage :
En haut de l'escalier, le palier (11 m²), deux chambres (2 x 14 m²) avec placards et salles de bains privatives (2 x 3.5 m²) avec douche, lavabo, toilettes, bidet et espace de rangement au-dessus. Mezzanine avec bureau (9 m²), à l'origine une chambre supplémentaire. Enfin, la troisième chambre (9.6 m²) avec placard. Dans la mezzanine, un climatiseur est installé pour rafraîchir l'ensemble de la maison.

À l'extérieur :
Devant la cuisine se trouve une terrasse ( m²) exposée au soleil du matin. Devant la véranda se trouve une terrasse abritée (28 m²) et à côté une terrasse (20 m²) avec barbecue fixe. Le portail d'entrée et la voie d'accès sont partagés avec la maison voisine et il y a suffisamment de place pour garer plusieurs voitures. Un abri pour 1 voiture et un espace de rangement supplémentaire se trouvent à côté de la maison.
Dans le jardin, un abri de jardin en pierre (9.9 m²) avec un abri à bois semi-ouvert (7.8 m²). Au fond du jardin se trouve la piscine ronde hors sol (4.75 m) avec un local (6.7 m²) pour le filtre à sable et les outils de jardinage.

Divers :
La maison est équipée de carrelage, de fenêtres et de portes en aluminium et en bois avec double vitrage et volets en bois. Raccordement au réseau d'égouts municipal et à Internet par fibre optique. La cuisine et les sanitaires sont équipés d'une ventilation centrale. Antenne parabolique ASTRA-1 et 3 pour la réception satellite.

Environnement :
Aigne possède un beau centre villageois du XIe siècle avec une église romane, un restaurant, un magasin et un bureau de poste. Petite supérette à 1 km à Aigues-Vives. À Olonzac (8 km), vous trouverez un grand supermarché, un marché le mardi matin, des banques, des pharmacies et d'autres magasins. À proximité de l'un des plus beaux villages de France, la cité cathare de Minerve et les Gorges de la Cesse et Brian. La mer Méditerranée, les aéroports et les villes de Narbonne, Béziers et Carcassonne sont accessibles en moins d'une heure en voiture.

Frais :
Taxes foncières : 974 € par an

« Les informations sur les risques auxquels ce bien est exposé sont disponibles sur le site Géorisques : www.georisques.gouv.fr »

AV TRANSACTION
Théodorus HARBERS
[Coordonnées masquées]
Votre agent commercial et conseiller(e) spécialiste en immobilier
RSAC N° 507 815 215 (EI)
Ville du greffe : Narbonne

Plus d'informations sur notre site av-transaction immo - Référence: 7501819288
Le réseau AV Transaction recrute des agents commerciaux dans toute la France. Percevez 100% de vos commissions. avtransaction-recrutement fr.

Honoraires charge vendeur.

Voir plus

Référence: 7501819288
Honoraires à la charge du vendeur.
Barème des honoraires
DPE
A
B
C
D
E
F
G
GES
A
B
C
D
E
F
G

Prêt immobilier

Vous souhaitez connaître votre capacité d’emprunt et trouver le meilleur crédit immobilier ?
Réaliser une simulation gratuite

Maison à AIGNE
Maison à AIGNE
Maison à AIGNE
Maison à AIGNE
Maison à AIGNE
Maison à AIGNE
Maison à AIGNE
Maison à AIGNE
Maison à AIGNE
Maison à AIGNE
Maison à AIGNE
Maison à AIGNE
Maison à AIGNE
Maison à AIGNE
Maison à AIGNE
Maison à AIGNE
Maison à AIGNE
Maison à AIGNE
Maison à AIGNE
Maison à AIGNE
Maison à AIGNE
Maison à AIGNE
Maison à AIGNE
Maison à AIGNE
Maison à AIGNE
Maison à AIGNE
Maison à AIGNE
Maison à AIGNE
Maison à AIGNE
Maison à AIGNE
Maison à AIGNE
Maison à AIGNE
Maison à AIGNE
Maison à AIGNE
Maison à AIGNE
Maison à AIGNE
Maison à AIGNE
Maison à AIGNE
Maison à AIGNE
Maison à AIGNE
Maison à AIGNE
Maison à AIGNE
Maison à AIGNE
Maison à AIGNE
Maison à AIGNE
Maison à AIGNE
Maison à AIGNE
Maison à AIGNE
Maison à AIGNE
Maison à AIGNE
Maison à AIGNE
Maison à AIGNE
Maison à AIGNE
Maison à AIGNE
Maison à AIGNE
Maison à AIGNE
Maison à AIGNE
Maison à AIGNE
Maison à AIGNE
Maison à AIGNE
Maison à AIGNE
Maison à AIGNE
Maison à AIGNE
Maison à AIGNE
Maison à AIGNE
Maison à AIGNE
Maison à AIGNE
Maison à AIGNE
Maison à AIGNE
Maison à AIGNE
Maison à AIGNE
Maison à AIGNE
Maison à AIGNE
Maison à AIGNE
Maison à AIGNE
Maison à AIGNE
Maison à AIGNE
Maison à AIGNE
Maison à AIGNE
Maison à AIGNE
Maison à AIGNE
Maison à AIGNE
Maison à AIGNE
Maison à AIGNE
Maison à AIGNE
Maison à AIGNE
Maison à AIGNE
Maison à AIGNE
Maison à AIGNE
Maison à AIGNE
Maison à AIGNE
Maison à AIGNE
Maison à AIGNE
Maison à AIGNE
Maison à AIGNE
Maison à AIGNE
Maison à AIGNE
Maison à AIGNE
Maison à AIGNE
Maison à AIGNE
Maison à AIGNE
Maison à AIGNE
Maison à AIGNE
Maison à AIGNE
Maison à AIGNE
Maison à AIGNE
Maison à AIGNE
Maison à AIGNE
Maison à AIGNE
Maison à AIGNE
Maison à AIGNE
Maison à AIGNE
Maison à AIGNE
Maison à AIGNE
Maison à AIGNE
Maison à AIGNE
Maison à AIGNE
Maison à AIGNE
Maison à AIGNE
Maison à AIGNE
Maison à AIGNE
Maison à AIGNE
Maison à AIGNE
Maison à AIGNE
Maison à AIGNE
Maison à AIGNE
Maison à AIGNE
Maison à AIGNE
Maison à AIGNE
Maison à AIGNE
Maison à AIGNE
Maison à AIGNE
Maison à AIGNE
Maison à AIGNE
Maison à AIGNE
Maison à AIGNE
Maison à AIGNE
Maison à AIGNE
Maison à AIGNE
Maison à AIGNE
Maison à AIGNE
Maison à AIGNE
Maison à AIGNE
Maison à AIGNE
Maison à AIGNE
Maison à AIGNE
Maison à AIGNE
Maison à AIGNE
Maison à AIGNE
Maison à AIGNE
Maison à AIGNE
Maison à AIGNE
Maison à AIGNE
Ce site est protégé par reCAPTCHA la Politique de confidentialité et les Conditions d’utilisation de Google s’appliquent.
Obtenir un prêt immobilier au meilleur taux ?

En poursuivant votre navigation sans modifier vos paramètres, vous acceptez l'utilisation de cookies susceptibles de réaliser des statistiques de visite. Cliquez ici pour plus d'informations