Maison montesson 5 pièce(s)-325m² de terrain

— Montesson 78360 —
589 000 €
113 m² / 325 m²
5 pièces
jardin

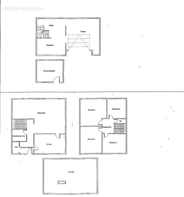
EXCLUSIVITÉ -MONTESSON LABORDE Venez découvrir cette belle maison implantée sur un magnifique terrain de 325m² exposé sud/ouest offrant en rez de chaussée: une entrée avec placards , un double séjour lumineux avec accès terrasse et jardin, une grande cuisine indépendante(possibilité US), une salle d'eau et un WC. A l'étage vous découvrirez un palier distribuant 3 chambres, une salle de bains et un WC indépendant, vous trouverez également des combles pour du rangements. En bonus un grand sous-sol total avec garage et buanderie. Au coeur d'un quartier calme et pavillonnaire et située a proximité des écoles et des commerces, cette maison n'attend plus que vous. Encore une perle rare chez l'Amirauté immobilier Sartrouville [Coordonnées masquées] Agent Commercial : Michael Maia (4.25 % honoraires TTC à la charge de l'acquéreur.)
Voir plus

Honoraires d'agence de 4.25% à la charge de l'acquéreur
Barème des honoraires
DPE
A
B
C
D
E
F
G
GES
A
B
C
D
E
F
G

Prêt immobilier

Vous souhaitez connaître votre capacité d’emprunt et trouver le meilleur crédit immobilier ?
Réaliser une simulation gratuite

Maison à MONTESSON
Maison à MONTESSON
Maison à MONTESSON
Maison à MONTESSON
Maison à MONTESSON
Maison à MONTESSON
Maison à MONTESSON
Maison à MONTESSON
Maison à MONTESSON
Maison à MONTESSON
Ce site est protégé par reCAPTCHA la Politique de confidentialité et les Conditions d’utilisation de Google s’appliquent.
Obtenir un prêt immobilier au meilleur taux ?

En poursuivant votre navigation sans modifier vos paramètres, vous acceptez l'utilisation de cookies susceptibles de réaliser des statistiques de visite. Cliquez ici pour plus d'informations